Moderne 1,5-Zi Wohnung mit Außenfläche U1-Nähe - provisionsfrei

Wohnung , 1100 Wien , Van-der-Nüll-Gasse


- U1 Reumannplatz in 12 Minuten zu Fuß erreichbar - Straßenbahnlinie 11, O in 5 Minuten zu Fuß erreichbar und viele weitere Straßenbahnlinien am Quellenplatz verfügbar - Einkaufsmöglichkeit BILLA PLUS in unmittelbarer Nähe

Beschreibung der Immobilie

Moderne 1,5-Zi Wohnung mit Außenfläche U1-Nähe - provisionsfrei

Sehr geehrte Damen und Herren,



die kürzlich errichteten Wohnhäuser befinden sich in einem beliebten Viertel des 10. Bezirks, das sich durch eine hervorragende Infrastruktur auszeichnet. Die U1-Station Reumannplatz liegt in unmittelbarer Nähe und bietet eine ausgezeichnete Anbindung an das öffentliche Verkehrsnetz.



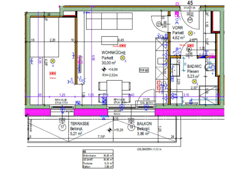
Die angebotene Wohnung befindet sich in einem modernen Neubaus und verfügt über ca. 39 m² Nutzfläche sowie einer Terrasse, die zusätzlichen Raum im Freien bietet.



Die Wohnung verfügt über:



  • 1,5 Zimmer
  • eine vollausgestattete Küche
  • ein Badezimmer
  • einer Terrasse


Die Umgebung überzeugt durch ein angenehmes, urbanes Wohnumfeld. Die Wohnhausanlage selbst bietet zahlreiche Annehmlichkeiten wie Fahrradräume, Kinderwagenabstellräume, Kellerabteile sowie eine Tiefgarage.



Highlights:



  • voll ausgestattete Einbauküche mit Elektrogeräten
  • elektrische Außenbeschattung
  • Parkettboden
  • Fußbodenheizung mittels Fernwärme
  • Wärmeschutzverglasung sorgt für niedrige Energiekosten
  • Kellerabteil
  • Tiefgaragenstellplätze bei Bedarf anmietbar


Kosteninformation:


Monatliche Gesamtkosten (brutto, inkl. Betriebskosten): EUR 949,00





Die abgebildeten Fotos dienen als Beispiel. Die Wohnung wird derzeit noch bewohnt, entspricht jedoch in Ausstattung und Stil den gezeigten Bildern.





Kontaktieren Sie uns gerne für nähere Informationen oder einen Besichtigungstermin.



Ich freue mich auf Ihre Nachricht!


Wir weisen darauf hin, dass zwischen dem Vermittler und dem zu vermittelnden Dritten ein familiäres oder wirtschaftliches Naheverhältnis besteht.


Der Immobilienmakler erklärt, dass er – entgegen dem in der Immobilienwirtschaft üblichen Geschäftsgebrauch des Doppelmaklers – einseitig nur für den Vermieter tätig ist.

Infrastruktur / Entfernungen

Gesundheit
Arzt <500m
Apotheke <500m
Klinik <500m
Krankenhaus <1.500m

Kinder & Schulen
Schule <250m
Kindergarten <500m
Universität <1.000m
Höhere Schule <2.250m

Nahversorgung
Supermarkt <250m
Bäckerei <500m
Einkaufszentrum <1.250m

Sonstige
Geldautomat <500m
Bank <500m
Post <500m
Polizei <750m

Verkehr
Bus <250m
U-Bahn <750m
Straßenbahn <500m
Bahnhof <750m
Autobahnanschluss <1.750m

Angaben Entfernung Luftlinie / Quelle: OpenStreetMap

Eckdaten Objektnr. 271545008

Art: Wohnung
Land: Österreich
Baujahr: 2021
Zustand: Neuwertig
Alter: Neubau
Gesamtmiete: 949,00
Kaltmiete (netto): 775,06 €
Kaltmiete: 862,72 €
Provision: Gemäß Erstauftraggeberprinzip bezahlt der Abgeber die Provision.
Betriebskosten: 87,66 €
MwSt Gesamt: 86,28 €
Nutzfläche: 39,85 m²
Zimmer: 1,50
Bäder: 1
WC: 1
Terrassen: 1
Heizwärmebedarf:  B  37,50 kWh/m²a
fGEE:  A  0,85
Immobilie merken Exposé

Ausstattung

Fliesen, Parkett, Fernwärme, Fußbodenheizung, Einbauküche, Wohnküche / offene Küche, Personenaufzug, Dusche, Garage, Tiefgarage


Immobilie anfragen


Ihre persönliche Beratung

Immobiliaris GmbH

Lea Leichtfried

Immobiliaris GmbH

T +43 664 1607111