| DREI ZIMMER | EIGENNUTZER | URBAN DAHEIM | VILLAGE IM DRITTEN | BAUFELD 13 | FERTIGSTELLUNG 2027

Wohnung - Dachgeschoß, 1030 Wien , Otto-Preminger-Straße


Beschreibung der Immobilie

| DREI ZIMMER | EIGENNUTZER | URBAN DAHEIM | VILLAGE IM DRITTEN | BAUFELD 13 | FERTIGSTELLUNG 2027

WOHNEN IM VILLAGE IM DRITTEN



Im dritten Wiener Gemeindebezirk entsteht mit dem VILLAGE IM DRITTEN ein neues Stück Stadt – eines der größten Stadtentwicklungsgebiete Wiens. Auf über elf Hektar entwickelt die ARE Austrian Real Estate gemeinsam mit der Stadt Wien und dem wohnfonds_wien ein lebendiges, nahezu autofreies Quartier mit rund 2.000 Wohnungen, Büro- und Gewerbeflächen, Kinderbetreuung, Bildungseinrichtungen und Nahversorgung.



Das grüne Herz bildet der über 2 Hektar große Bert-Brecht-Park – eine Oase für Erholung, Begegnung und Spiel. Alle Dächer, die nicht begehbar sind, werden begrünt. Sharing-Angebote, Einkaufsmöglichkeiten und Gastronomie liegen direkt vor der Haustüre. Nachhaltigkeit, kurze Wege und hohe Lebensqualität sind die Leitlinien dieses neuen Stadtviertels.



Mit dem Slogan „urban daheim“ verkörpert Baufeld 13 diese Idee in besonderer Weise: moderne Architektur, vielseitige Freiräume, Hobbyräume und Gemeinschaftsflächen – Wohnen mitten in Wien mit starker urbaner Identität und hohem Komfort.





Die ARE ist eine der größten Immobiliengesellschaften Österreichs und hat bereits einige der prägendsten Bauprojekte Wiens realisiert – darunter die Sanierung des historischen Palais Epstein am Ring sowie die markanten TrIIIple Tower am Donaukanal. Auch das VILLAGE IM DRITTEN reiht sich in diese Reihe innovativer Projekte ein.





ENERGIE MIT ZUKUNFT.



Im gesamten VILLAGE IM DRITTEN sorgt ein modernes Energienetz dafür, dass die einzelnen Gebäude miteinander verbunden sind und Energieflüsse effizient gesteuert werden. Auch Baufeld 13 ist Teil dieses innovativen Netzes – einer der modernsten Formen nachhaltiger Quartiersversorgung.



  • Erdsonden in Kombination mit Wärmepumpen liefern Energie zur Raumheizung im Winter und für die Temperierung (Grundkühlung) im Sommer.
  • Photovoltaikanlagen am Dach erzeugen erneuerbaren Strom.
  • Fußbodenheizung im Erdgeschoß und Bauteilaktivierung in den Obergeschoßen (über die jeweils darüberliegenden Geschoßdecke) sorgen für ein ausgeglichenes Raumklima.
  • Pendellüftungen mit Wärmerückgewinnung stellen kontinuierliche Frischluftzufuhr sicher.
  • Fernwärmeanschluss unterstützt die Versorgung in Spitzenzeiten sowie die Warmwasserbereitung.


So entsteht ein Zusammenspiel aus Komfort, Innovation und ökologischer Verantwortung – ein klarer Mehrwert für Bewohner:innen.





ARCHITEKTUR, DIE URBANITÄT LEBT.



Das Baufeld 13 umfasst drei Baukörper, die über ein gemeinsames Sockelgeschoss verbunden sind:



  • OPS 12 Stg. 1+2: fünf Obergeschosse
  • OPS 12 Stg. 3: acht Obergeschosse
  • HGP 5: zehn Obergeschosse


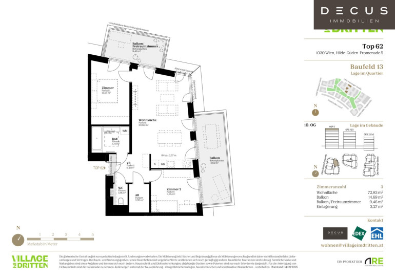
Insgesamt entstehen 143 Eigentumswohnungen mit Wohnflächen zwischen ca. 45m² und 110 m² und 2-5 Zimmern, sowie 2 Geschäftslokale. Zusätzlich werden 10 Hobbyräume zum Erwerb angeboten. Die kompakte Bauform sorgt großteils für zweiseitig belichtete Wohnungen, die jeweils über zwei Freiflächen verfügen:



  • ein Freiraumzimmer mit verschiebbaren Lochblech-Elementen für Privatsphäre und Beschattung
  • ein überdachter Balkon mit Nurglasbrüstung




Trockenen Fußes kommt man über der zentralen überdachten Gang vom Haupteingang in der Otto- Preminger-Straße zu den zwei hinteren Gebäuden bis zur Hilde-Güden-Promenade und dem direkten Zugang zum Park. Der Gang wird mit großzügigen Öffnungen zu den von oben belichtet und belüftet abgesetzten Atriumhöfe aufgeweitet. PKW und Fahrradgarage, Müllraum und Kinderwagenabstellräume sind ebenfalls unmittelbar über diesen zentralen Gang erreichbar. Zusätzliche Eingänge auf der Ebene des Parks ermöglichen gute fußläufige Zugänglichkeit aus allen Richtungen.





Architektonische Highlights



Die Architektur kombiniert urbane Klarheit mit wohnlicher Atmosphäre – ideal für alle, die mitten in der Stadt zuhause sein möchten und dennoch Rückzugsräume schätzen. 



  • Atriumhöfe bringen Licht und Luft ins Gebäudeinnere
  • Klinkerfassade mit verglasten Balkonen – hochwertig, modern und charakterstark
  • Vertikale Begrünung, begrünte Erschließungsgänge und bepflanzte Innenhöfe sorgen für Wohlfühlatmosphäre im Freien.
  • Fahrradgarage mit ebener Zufahrt von der Straße


Die Architektur kombiniert urbane Klarheit mit wohnlicher Atmosphäre – ideal für alle, die mitten in der Stadt zuhause sein möchten und dennoch Rückzugsräume schätzen.





WOHNQUALITÄT BIS INS DETAIL.



Jede Wohnung ist so gestaltet, dass sie sich flexibel an den Alltag ihrer Bewohner:innen anpasst – funktional, hochwertig und mit Wohlfühlfaktor.



Ausstattung im Überblick:



  • Gehobenes Materialkonzept: Parkett, Designfliesen
  • Mehrere wählbare Ausstattungspakete („Bundles“)
  • Raumhohe Holz-Alu Fenster  - für lichtdurchflutete Räume, außenliegender Sonnenschutz
  • Balkone als Freiraumzimmer mit verschiebbaren Lochblech-Elementen
  • Lichtkuppeln in Badezimmern der Dachgeschoß-Wohnungen
  • Türhöhen von ca. 2,20 m
  • Unterputzarmaturen in Bädern & Duschen
  • Großzügige Badewannen und bodenebene Duschen, elektr. Handtuchtrockner
  • Sicherheit: Eingangstüren WK3, ebenerdig zugängliche Fenster als  Einbruchschutzfenster RC2n und Vorrichtung für Alarmanlagen, Videosprechanlage
  • Dezentrale Wohnraumlüftungen mit Wärmerückgewinnung
  • Zusätzlich erwerbbare Hobbyräume (ab ca. 15 bis ca. 40 m²)
  • ankaufbaren Stellplätzen für E-Fahrräder mit absperrbaren Boxen und Lastenfahrrädern




ÜBERBLICK



  • 143 Eigentumswohnungen
  • 2 Geschäftslokale
  • 10 Hobbyräume (optional erwerbbar)
  • 92 Tiefgaragenplätze (Zufahrt über BP 14A; mit absperrbarer Steckdose auch zum Laden geeignet.)
  • 338 Fahrradabstellplätze, 3 Stellplätze für Lastenräder und 6 absperrbare Fahrradboxen mit Ladefunktion – zusätzlich erwerbbar
  • Partyraum, Gemeinschaftsraum, Kidszone, Jugendspielplatz, Waschsalon
  • Großteils großzügige Freiflächen


Fertigstellung: Sommer 2027





LAGE – URBAN UND GRÜN.



  • Direkt am rund 2 Hektar großen Bert-Brecht-Park – Natur und Erholung vor der Haustüre
  • Straßenbahn: Linie 18 (Wildgansplatz, 2 Min.), Linie 71 (St. Marx, 3 Min.)
  • S-Bahn: Station St. Marx (2 Min.), Quartier Belvedere (15 Min.)
  • U-Bahn: U3 Schlachthausgasse (15 Min.), U1 Hauptbahnhof (15 Min.)
  • Neue Straßenbahnlinie 18: bis Herbst 2026 direkte Verbindung von Schlachthausgasse (U3) zur U2
  • Stadion – damit neue Direktanbindung in den grünen Prater
  • Hauptbahnhof Wien: 7 Minuten mit der Straßenbahn
  • City Stephansplatz: ca. 20 Minuten erreichbar
  • Autobahn A23, Anschlussstelle Landstraßer Gürtel / St. Marx: 3 Minuten
  • Flughafen Wien: ca. 30 Minuten mit Auto oder Schnellbahn




Nahversorgung & Freizeit:



  • Einkaufs- und Gastronomieflächen im Quartier, unter anderem in den DOCKS
  • Vielfältige Einkaufsmöglichkeiten im Rennweg Center, in „The Mall“ Wien Mitte sowie am Hauptbahnhof
  • Kulturelle Highlights: Belvedere, Botanischer Garten, Stadtpark, Hundertwasserhaus, Neu Marx
  • Eventhalle
  • Erholung in Gehweite: Schweizergarten, Donaukanal, Prater




Nähere Informationen zu den Wohnungen auch online unter: https://villageimdritten.at/wohnungsfinder/





Disclaimer:



Alle Informationen, Angaben, Pläne und Visualisierungen in diesem Exposé sind unverbindlich. Änderungen vorbehalten. Kein Rechtsanspruch ableitbar. Dargestellte Grundrisse und Ansichten beruhen auf Daten, die den aktuellen Planungsstand repräsentieren und im Zuge der weiteren Planungs- und Ausführungsphase variieren können. Alle gezeigten Ansichten der



Gebäude sowie der Einrichtungen sind Symbolbilder und freie künstlerische Darstellungen. Allenfalls dargestellte Einrichtungsgegenstände dienen ausschließlich der Veranschaulichung und werden nicht von der Verkäuferin zur Verfügung gestellt. Die Inhalte dieses Exposés wurden mit größtmöglicher Sorgfalt und unter Beachtung von Rechten Dritter (z. B. Urheberrecht) erstellt. Zwar wird dieses Exposé regelmäßig auf Aktualität, Vollständigkeit und Richtigkeit überprüft. Dies kann jedoch trotzdem nicht jederzeit gewährleistet werden. Wir ersuchen daher, bei Unklarheiten direkt mit uns Kontakt aufzunehmen. Eine Verwendung der Inhalte dieses Exposés (insbesondere der Bilder) ohne unsere ausdrückliche Zustimmung ist nicht gestattet.


Wir weisen darauf hin, dass zwischen dem Vermittler und dem zu vermittelnden Dritten ein familiäres oder wirtschaftliches Naheverhältnis besteht.

DECUS Immobilien GmbH – Wir beleben Räume

Für weitere Informationen und Besichtigungen steht Ihnen gerne Frau  Linda Schmidtberger unter der Mobilnummer +43 660 75 75 013und per E-Mail unter schmidtberger@decus.at persönlich zur Verfügung.

www.decus.at | office@decus.at 

Wichtige Informationen

Bitte beachten Sie, dass per 13.06.2014 eine neue Richtlinie für Fernabsatz- und Auswärtsgeschäfte in Kraft getreten ist.

Ab 1.4.2024 entfallen die Grundbuchs- und Pfandrechtseintragungsgebühren vorübergehend für Eigenheime bis zu einer Bemessungsgrundlage von EUR 500.000,-. Voraussetzung ist das dringende Wohnbedürfnis, ausgenommen davon sind vererbte oder geschenkte Immobilien. Die Befreiung ist jedoch für den Einzelfall zu prüfen, DECUS Immobilien übernimmt hierzu keine Haftung.

Ab 01.07.2023 gilt das Erstauftraggeber-Prinzip bei Wohnungsmietverträgen, ausgenommen davon sind Dienst-/Natural-/Werkswohnungen. Wir dürfen gem. § 17 Maklergesetz darauf hinweisen, dass wir auf die Doppelmaklertätigkeit gem. § 5 Maklergesetz bei Wohnungsmietverträgen verzichten und nur noch einseitig tätig sind (bei den restlichen Vermittlungsarten nicht) und ein wirtschaftliches Naheverhältnis zu unseren Auftraggebern besteht. 

Im Falle eines Abschlusses mit Ihnen oder einem von Ihnen namhaft gemachten Dritten bzw. bei beidseitiger Willensübereinstimmung beträgt unser Honorar (lt. Honorarverordnung für Immobilienmakler) 2 Bruttomonatsmieten (BMM) bei Dienst-/Natural-/Werkwohnungen sowie Suchaufträgen, 3 BMM bei Gewerbe-, PKW-, Keller- und Lagermietverträgen sowie bei Kaufobjekten 3 % des Kaufpreises, zuzüglich der gesetzlichen Umsatzsteuer.

Dieses Objekt wird Ihnen unverbindlich und freibleibend angeboten. Oben angeführte Angaben basieren auf Informationen und Unterlagen des Eigentümers und sind unsererseits ohne Gewähr.

Nähere Informationen sowie unsere AGBs und die Nebenkostenübersichtsblatt finden Sie auf unserer Homepage www.decus.at unter "Service" - "Rechtliches zum FAGG" sowie im Anhang der zugesendeten Objekt-Exposés!

Infrastruktur / Entfernungen

Gesundheit
Arzt <500m
Apotheke <500m
Klinik <500m
Krankenhaus <750m

Kinder & Schulen
Schule <250m
Kindergarten <500m
Universität <500m
Höhere Schule <750m

Nahversorgung
Supermarkt <250m
Bäckerei <500m
Einkaufszentrum <500m

Sonstige
Geldautomat <250m
Bank <250m
Post <250m
Polizei <1.000m

Verkehr
Bus <250m
U-Bahn <1.000m
Straßenbahn <250m
Bahnhof <250m
Autobahnanschluss <1.000m

Angaben Entfernung Luftlinie / Quelle: OpenStreetMap

Eckdaten Objektnr. 1149890

Art: Wohnung - Dachgeschoß
Land: Österreich
Baujahr: 2027
Zustand: Erstbezug
Alter: Neubau
Kaufpreis: 719.000,00
Wohnfläche: 72,83 m²
Zimmer: 3
Bäder: 1
WC: 1
Balkone: 2
Keller: 3,27 m²
Heizwärmebedarf:  A  15,60 kWh/m²a
fGEE:  A+  0,57
Immobilie merken Exposé

Immobilie anfragen


Ihre persönliche Beratung

DECUS Immobilien GmbH

Linda Schmidtberger

DECUS Immobilien GmbH

T +43 660 75 75 013

H +43 660 75 75 013

F +43 1 35 600 10