RIESIGER POOLBEREICH MIT AUSBLICK ÜBER GRAZ! Exklusives Einfamilienhaus in Eggenberg mit Pool, XXL-Terrasse & Traumgarten – Ihre private Oase in Graz!

Haus , 8020 Graz , Bergstraße


In einer der vornehmsten Wohnlagen von Graz thront dieses charmante Einfamilienhaus am Fuße des Plabutsch – umgeben von altem Baumbestand, edlen Villen und beruhigendem Grün. Familien finden hier ein Refugium mit großzügigem Garten, ideal für entspannte Stunden und kindliches Entdecken. Die Umgebung strahlt Ruhe und Exklusivität aus, während zentrale Knotenpunkte des städtischen Lebens in greifbarer Nähe bleiben. Besonders für anspruchsvolle Berufstätige bietet dieser Standort kurze Wege zu essenziellen Einrichtungen, ohne Kompromisse beim Wohnkomfort. Ein seltenes Zusammenspiel aus Stil, Vertrautheit und erstklassiger Anbindung.

Beschreibung der Immobilie

RIESIGER POOLBEREICH MIT AUSBLICK ÜBER GRAZ! Exklusives Einfamilienhaus in Eggenberg mit Pool, XXL-Terrasse & Traumgarten – Ihre private Oase in Graz!

RIESIGER POOLBEREICH MIT AUSBLICK ÜBER GRAZ! Exklusives Einfamilienhaus in Eggenberg mit Pool, XXL-Terrasse & Traumgarten – Ihre private Oase in Graz!




📌 Lage & Umgebung



Diese traumhafte Liegenschaft befindet sich in einer der exklusivsten Wohnlagen von Graz. Ruhig, uneinsichtig und gleichzeitig nur wenige Minuten von der Innenstadt entfernt. Schulen, Nahversorger und Freizeitangebote sind bequem erreichbar. Die Sackgassenlage sorgt für Sicherheit, Ruhe und Privatsphäre – ein echtes Juwel für Menschen mit Anspruch.



🏆 Die 5 Highlights dieses Traumobjekts



🌄 1. Spektakulärer Panoramablick über Graz
Ein unverbaubarer Fernblick über die Stadt, wie auch über das UKH (Unfallkrankenhaus) – ein visuelles Erlebnis, das jeden Tag aufs Neue beeindruckt.



🏊‍♂️ 2. Privater Pool in Terrassen-Idylle
Ein 8 x 3,5 Meter großer Pool, stilvoll integriert in die untere Terrasse – exklusives Badevergnügen mit traumhafter Kulisse direkt vor der Tür. Perfekt für eine Abkühlung!



🌞 3. Zwei XXL-Terrassen mit ca. 165 m² Gesamtfläche
Grillen, feiern, entspannen – die traumhafte und teils überdachte Terrasse mit direktem Zugang von der Küche bietet Raum für große Tafeln. Die Poolterrasse darunter ergänzt den Lifestyle perfekt.



🌳 4. Premiumlage in ruhiger Sackgasse mit Gartenparadies
Diskret, grün und außergewöhnlich: Die edle Hanglage mit eigener Einfahrt, gepflegtem Garten und zusätzlichem Stellplatz verleiht dem Objekt Villencharakter pur.



🔧 5. Top-Zustand & Ausstattung die begeistert!
Bezugsbereit ohne Sanierungsbedarf! Mit solider Bausubstanz, Klimaanlage, sowie Kachelofen im großzügigen und lichtdurchfluteten Wohnbereich!




🔍 11 eindrucksvolle Fakten zur Immobilie




  1. Wohnfläche: Ca. 185 m² – optimal aufgeteilt auf 6 Zimmer (davon 5 Schlafzimmer & 1 großer Wohn-/ Koch-/ Essbereich).



  2. Grundstück: 1.428 m² – herrlich eingebettet in den Hang mit ganztägiger Sonneneinstrahlung.



  3. Pool: 8 x 3,5 m, integriert in die untere Terrasse + Außendusche – ein privates Spa mit Aussicht



  4. Terrassenfläche: Insgesamt ca. 165 m² – zwei große Außenbereiche auf zwei Ebenen mit einem zusätzlichen Balkon welcher vom Haupt-Schlafzimmer betreten werden kann.



  5. Carport & Parkplätze: Überdachung für 2 Autos plus ein zusätzlicher Außenstellplatz.



  6. Garten & Einfahrt: Gepflegter, begrünter Garten mit automatischem Mähroboter, Gartenhütte und eigener Zufahrt.



  7. Sanitärkomfort: In jedem Stockwerk ein WC, sowie ein komplett saniertes Badezimmer im 1. OG mit großer Badewanne und großer Dusche.



  8. Kellerfläche: Ca. 45 m² Waschküche + Lagerfläche (WM/Trockner-Anschluss + Waschbecken), Lagerflächen, sowie Heizraum.



  9. Ausstattung: Außenliegender Sonnenschutz, Fliesen- & Parkettböden, moderne Kunststofffenster mit Doppel-/Mehrfachverglasung



  10. Klima & Energie: Öl-Zentralheizung, wunderschön-integrierter Kachelofen im Wohnbereich, Klimaanlage und die Möglichkeit zur Nachrüstung einer Wärmepumpe.



  11. Fußbodenheizung: Eine angenehme Fußbodenheizung im Erdgeschoß, wie auch im Badezimmer im 1.OG, sorgen für maximalen Wohnkomfort!





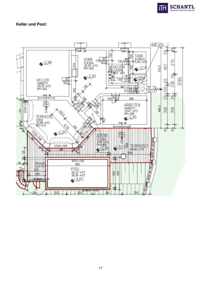
📐 Grundriss-Highlights




  • Erdgeschoss: Repräsentativer Wohn-/Essbereich mit Zugang zur Hauptterrasse, Küche, Garderobe, Gäste-WC



  • Obergeschoss: Drei Schlafzimmer, saniertes Bad, Balkon & weitere Terrasse mit Stadtblick



  • Untergeschoss: Zwei weitere Schlafzimmer/Lagerräume, Bad, Waschbereich, Technikbereich sowie direkter Zugang zur teils überdachten Poolterrasse






Angaben zur Wohnfläche sind der aktuellen Nutzung entsprechend und können den Grundrissen entnommen werden.




Worauf noch warten?



Vereinbaren Sie noch heute eine Besichtigung oder eine persönliche Beratung mit uns!



Sie wollen Ihre Immobilie verkaufen? Dann sind Sie bei uns goldrichtig!

Wir sind gerne für Sie da und unterstützen Sie unverbindlich bei der Bewertung Ihrer Immobilie. Mit viel Sorgfalt stellen wir Ihnen alle wichtigen Informationen und Unterlagen zusammen, damit Sie die besten Entscheidungen treffen können.



In Kooperation mit unserer SFI Vermögenstreuhand begleiten wir Sie bei der Verwirklichung Ihres Traumobjekts und unterstützen Sie beim nachhaltigen Vermögensaufbau. Mit unseren erfahrenen Experten sorgen wir dafür, dass Sie die besten Konditionen erhalten – damit Ihre Träume Wirklichkeit werden!



http://www.schantl-ith.at in Kooperation mit www.sfi-invest.com 



Die Angaben über das angebotene Objekt erfolgen mit der Sorgfalt eines ordentlichen Immobilienmaklers; für die Richtigkeit solcher Angaben, die auf Informationen der über das Objekt Verfügungsberechtigten beruhen, wird keine Gewähr geleistet!


Wir weisen darauf hin, dass zwischen dem Vermittler und dem zu vermittelnden Dritten ein familiäres oder wirtschaftliches Naheverhältnis besteht.


Der Vermittler ist als Doppelmakler tätig.

Infrastruktur / Entfernungen

Gesundheit
Arzt <250m
Apotheke <750m
Klinik <1.250m
Krankenhaus <500m

Kinder & Schulen
Schule <500m
Kindergarten <750m
Universität <1.750m
Höhere Schule <1.750m

Nahversorgung
Supermarkt <750m
Bäckerei <1.250m
Einkaufszentrum <2.250m

Sonstige
Geldautomat <1.250m
Bank <1.250m
Post <1.500m
Polizei <1.500m

Verkehr
Bus <250m
Straßenbahn <250m
Autobahnanschluss <4.250m
Bahnhof <2.000m

Angaben Entfernung Luftlinie / Quelle: OpenStreetMap

Eckdaten Objektnr. 293630

Art: Haus
Land: Österreich
Baujahr: 1999
Zustand: Gepflegt
Alter: Neubau
Kaufpreis: 1.149.000,00
Provision: 3% des Kaufpreises zzgl. 20% USt.
Wohnfläche: 204,00 m²
Grundstücksfl.: 1.428,00 m²
Zimmer: 6
Bäder: 2
WC: 3
Balkone: 1
Terrassen: 2
Stellplätze: 3
Keller: 45,00 m²
Heizwärmebedarf:  C  85,00 kWh/m²a
fGEE:  C  1,29
Immobilie merken Exposé

Ausstattung

Parkett, Fliesen, Öl, Fußbodenheizung, Zentralheizung, Wohnküche / offene Küche, Südbalkon, Dusche, Bad mit Fenster, Badewanne, DV-Verkabelung, Kabel/Satelliten-TV, Carport, Parkplatz, Swimmingpool, Wasch/Trockenraum


Immobilie anfragen


Ihre persönliche Beratung

Schantl ITH Immobilientreuhand GmbH

Nikolaus Kronabitter

Schantl ITH Immobilientreuhand GmbH

T +436645411047

H +43 664 2540410