Beschreibung der Immobilie
Zukunftssicheres Anlegerprojekt südlich von Wien
Anlegerinvestment in Mödling mit nachhaltiger Perspektive
Mit der Wohnhausanlage Am Fliegenspitz in Mödling entsteht südlich von Wien ein hochwertiges Wohnprojekt in einer der gefragtesten Wohnlagen des Wiener Umlands. Die ruhige, grüne Umgebung bei gleichzeitig ausgezeichneter Anbindung schafft ideale Voraussetzungen für eine stabile Nachfrage und langfristige Wertentwicklung – ein attraktives Fundament für eine nachhaltige Anlegerinvestition.
Das Projekt umfasst zehn moderne Baukörper mit drei bis vier Geschossen und insgesamt 116 schlüsselfertige Wohnungen mit 1 bis 5 Zimmern. Private Eigengärten, Balkone oder Terrassen sowie zwei belagsfertige Praxisräumlichkeiten erhöhen die Nutzungsvielfalt und Vermietbarkeit. Ein barrierefreies Erschließungskonzept, Einlagerungsräume zu jeder Wohneinheit und 177 Stellplätze im Untergeschoß sichern eine zeitgemäße, marktorientierte Ausstattung.
Großzügige Grün- und Freibereiche sowie Kinderspielplätze steigern die Wohnqualität nachhaltig und sprechen eine breite Zielgruppe an. Am Fliegenspitz in Mödling positioniert sich damit als zukunftssichere Wohnanlage mit klarer Ausrichtung auf langfristige Erträge, Wertstabilität und Vorsorge
In der hauseigenen Tiefgarage stehen Stellplätze zum Ankauf zur Verfügung.
Das Projekt
- 116 Eigentums- und Vorsorgewohnungen mit 1 bis 5 Zimmern
- Wohnungsgrößen von ca. 31 bis 130 m²
- Private Freiflächen wie Gärten, Balkone oder Terrassen
- Einlagerungsräume im Unter- und Dachgeschoß
- 2 Praxisräumlichkeiten (belagsfertige Ausführung/Edelrohbau)
- 177 Kfz-Stellplätze in der Tiefgarage
- Ziegelmauerwerk mit integriertem Dämmstoff kombiniert mit Stahlbeton
- Gemeinschaftliche Freibereiche wie Gärten und Kinderspielplätze
- Kinderwagen- und Fahrradabstellräume
Die Ausstattung
- Heizung und Warmwasser mittels Kombination aus Geothermie und Fernwärme
- Wärmeabgabe bzw. Temperierung im Sommer über Bauteilaktivierung
- Vorrüstung Klimaanlagen für Dachgeschoßwohnungen
- PV-Anlage
- Kunststoff-/Alufenster mit 3-fach-Verglasung
- Beschattung mittels elektrisch betriebener Außenraffstores
- Weitzer Parkett, Eiche Kaschmir in den Wohnräumen
- Feinsteinzeug Cerabella Bari in den Nassräumen
- Hochwertige Sanitärausstattung
Die Lage
Im grünen Mödling vereinen sich Natur, Stadtleben und Lebensqualität auf besondere Weise. Eine ausgezeichnete Infrastruktur vor Ort bietet alles, was den Alltag angenehm und unkompliziert macht. Gleichzeitig lädt der angrenzende Wienerwald mit vielfältigen Freizeit-, Kultur- und Naturangeboten zur Erholung ein. Dank der sehr guten Anbindung sowie der Nähe zu Bahnhof und Autobahn ist Wien in rund 45 Minuten bequem erreichbar.
Die Mödlinger Innenstadt liegt nur 5–10 Minuten mit dem Rad, Auto oder Bus entfernt und ist auch fußläufig in etwa 10–15 Minuten erreichbar, der Bahnhof in ca. 20 Minuten.
Als ehemaliger Sitz der Babenberger überzeugt Mödling mit einem lebendigen Mix aus Geschichte, Kultur und urbanem Leben. Entlang der charmanten Hauptstraße finden sich zahlreiche Nahversorger, Fachärzte, Bäcker, Restaurants, Cafés, Geschäfte, Fitnessstudios, Banken und Museen – alles, was das tägliche Leben bereichert.
Buslinien
- Linie 1 (Bahnhof – Prießnitztal)
- Linie 3 (Bahnhof – WIFI/Mödlinger Zentrum)
- Linie 263 (Bahnhof – Guntramsdorf)
Ganz in der Nähe der Anlage befindet sich ein weiteres Projekt – „Grüne Stadtvillen“ – in dem wir ebenso Eigentums- sowie Vorsorgewohnungen anbieten. Für nähere Informationen hierfür stehen wir selbstverständlich auch gerne zur Verfügung.
Kaufpreise der Vorsorgewohnungen
von EUR 212.710,00,- bis EUR 885.550,00,- netto zzgl. 20% USt.
Zu erwartender Mietertrag
von ca. EUR 13,50 bis EUR 15,50 netto/m²
Provisionsfrei für den Käufer
Fertigstellung: Ende 2026
Bei diesem Angebot handelt es sich um eine Vorsorgewohnung, die zu Vermietungszwecken erworben wird. Der angegebene Kaufpreis versteht sich daher zzgl. 20% USt. Diese Daten sind vorbehaltlich möglicher Änderungen.
Einen detaillierteren Einblick finden Sie auf unserer EHL-Projekthomepage!
Wir weisen darauf hin, dass zwischen dem Vermittler und dem zu vermittelnden Dritten ein familiäres oder wirtschaftliches Naheverhältnis besteht.
Der Vermittler ist als Doppelmakler tätig.
Infrastruktur / Entfernungen
Gesundheit
Arzt <650m
Apotheke <225m
Klinik <650m
Krankenhaus <1.625m
Kinder & Schulen
Schule <275m
Kindergarten <275m
Höhere Schule <350m
Nahversorgung
Supermarkt <225m
Bäckerei <1.125m
Einkaufszentrum <1.275m
Sonstige
Bank <775m
Geldautomat <775m
Post <775m
Polizei <1.075m
Verkehr
Bus <50m
U-Bahn <6.200m
Bahnhof <1.225m
Autobahnanschluss <3.400m
Straßenbahn <3.750m
Angaben Entfernung Luftlinie / Quelle: OpenStreetMap
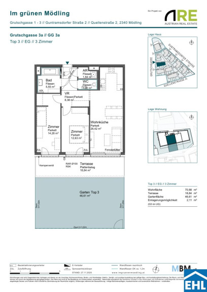
Eckdaten Objektnr. 92392
| Art: | Wohnung |
| Land: | Österreich |
| Baujahr: | 2026 |
| Zustand: | Erstbezug |
| Alter: | Neubau |
| Kaufpreis: | 422.750,00 € |
| Provision: | Provision bezahlt der Abgeber. |
| Wohnfläche: | 70,98 m² |
| Zimmer: | 3 |
| Bäder: | 1 |
| WC: | 1 |
| Terrassen: | 1 |
| Garten: | 46,61 m² |
| Keller: | 2,11 m² |
| Heizwärmebedarf: | A 24,10 kWh/m²a |
| fGEE: | A+ 0,60 |
Ausstattung
Fliesen, Parkett, Erdwärme, Fernwärme, Personenaufzug, Südbalkon, Badewanne
Ihre persönliche Beratung
Dieser Makler ist ein offizielles Mitglied des IR – ir.at Mehr Erfahren
