Projektgrundstück mit Aussicht in Weidlingbach

Haus - Einfamilienhaus, 3400 Weidlingbach


Weidlingbach gehört zu den grünsten und ruhigsten Teilen von Klosterneuburg – eingebettet zwischen Wald, Wiesen und Weingärten. Die Anbindung ist hervorragend: 10 Minuten nach Klosterneuburg Zentrum 25 Minuten in die Wiener Innenstadt Bushaltestelle 401 Richtung U4 Heiligenstadt Vis-à-Vis

Beschreibung der Immobilie

Projektgrundstück mit Aussicht in Weidlingbach

Sie träumen von einem modernen Zuhause im Grünen in Stadtnähe, aber mit absoluter Ruhe?



In der idyllischen Steinrieglstraße in 3400 Weidlingbach wartet ein großzügiges Grundstück mit Bestandshaus auf seine neue Bestimmung.

Mit einer Fläche von ca. 1.600  m² in sonniger Südhanglage, Blick ins Grüne und einer ruhigen Wohnumgebung bietet dieses Grundstück beste Voraussetzungen für die Errichtung von zwei Einfamilienhäusern oder einer großzügigen Villa. 
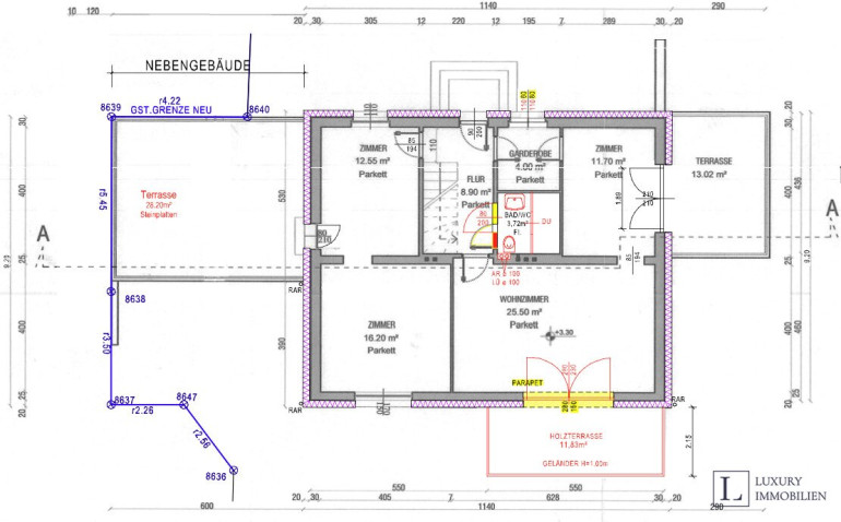
Auf dem Grundstück befindet sich ein charmanter Altbestand aus den 1960er-Jahren. Das jetzige Haus ist grundsätzlich bewohnbar und bietet viel Raum für eine umfassende Modernisierung. Die Fenster und Heizung wurden 2015 erneuert, eine neue Heiztherme wurde 2022 eingebaut. Die Wohnfläche beträgt ca. 200 m², ergänzt durch vier Terrassen mit rund 140 m². 



- Machen Sie hier eine 3D-Tour -



Die wichtigsten Eckdaten:




  • Grundstücksfläche: ca. 1.604 m²



  • Widmung: Bauland-Wohngebiet, max. 2 Wohneinheiten



  • Bauklasse: I & II (bis 8 m Gebäudehöhe)



  • Bebauungsweise: offen (freistehend)



  • Teilung möglich: in zwei Parzellen (vorbehaltlich Genehmigung)



  • Bestand: Einfamilienhaus mit Pool und Whirlpool



  • Lage: absolute Ruhelage, viel Sonne, schöne Nachbarschaft




Ob als Familienprojekt mit zwei Häusern oder als Investition in eine starke Lage mit Entwicklungspotenzial - hier beginnt etwas Neues!



Anna Pilnikova

+43 664 461 888 2
Luxury Immobilien GmbH 

ap@luxury-vienna.com

Instagram: @mangobluete 


Wir weisen darauf hin, dass zwischen dem Vermittler und dem zu vermittelnden Dritten ein familiäres oder wirtschaftliches Naheverhältnis besteht.


Der Vermittler ist als Doppelmakler tätig.

Infrastruktur / Entfernungen

Gesundheit
Arzt <5.000m
Apotheke <5.000m
Klinik <7.000m
Krankenhaus <8.000m

Kinder & Schulen
Schule <5.500m
Kindergarten <3.500m
Universität <5.000m
Höhere Schule <9.500m

Nahversorgung
Supermarkt <5.000m
Bäckerei <5.500m
Einkaufszentrum <7.500m

Sonstige
Geldautomat <5.500m
Bank <5.500m
Post <5.500m
Polizei <5.500m

Verkehr
Bus <500m
Straßenbahn <7.000m
U-Bahn <9.000m
Bahnhof <7.000m
Flughafen <10.000m
Autobahnanschluss <8.000m

Angaben Entfernung Luftlinie / Quelle: OpenStreetMap

Eckdaten Objektnr. 1790

Art: Haus - Einfamilienhaus
Land: Österreich
Baujahr: 1964
Zustand: Gepflegt
Möbliert: Teil
Alter: Neubau
Kaufpreis: 700.000,00
Provision: 3% des Kaufpreises zzgl. 20% USt.
Wohnfläche: 196,24 m²
Grundstücksfl.: 1.604,00 m²
Zimmer: 6
Bäder: 2
WC: 2
Terrassen: 4
Heizwärmebedarf:  C  82,00 kWh/m²a
fGEE:  C  1,28
Immobilie merken Exposé

Ausstattung

Gas, Kamin, Einbauküche, Sauna, Swimmingpool


Immobilie anfragen


Ihre persönliche Beratung

Luxury Immobilien GmbH

Anna Pilnikova

Luxury Immobilien GmbH

T +43 664 4618882