ERSTBEZUG nach Sanierung + Mietwohnung mit möblierter Küche + MURAU

Wohnung - Dachgeschoß, 8850 Murau


Zentrale Lage, nahe öffentlicher Anbindung, nahe Nahversorger

Beschreibung der Immobilie

ERSTBEZUG nach Sanierung + Mietwohnung mit möblierter Küche + MURAU

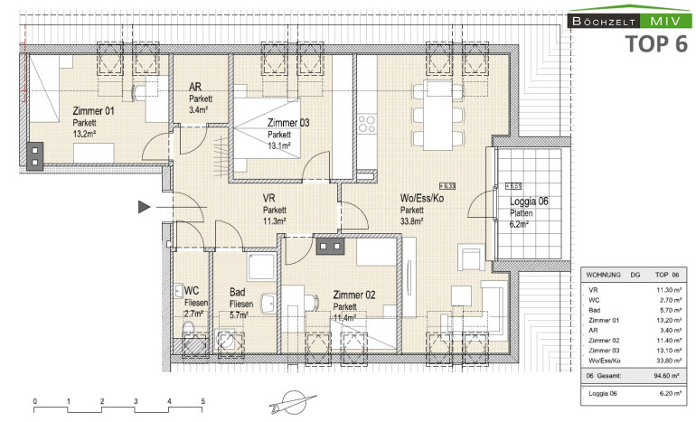
Zur Vermietung gelangt eine neu sanierte Mietwohnung mit ca. 94,60 m². Die Wohnung ist ab 01.04.2026 beziehbar und verfügt auch über eine ca. 6,2 m² große Loggia.



Die Raumaufteilung lautet wie folgt: geräumiger Vorraum, offene Küche mit Wohn-/Essbereich und Ausgang auf die Loggia, 3 Schlafzimmer, Badezimmer mit Dusche, separates WC und ein Abstellraum.



Die Küche sowie das Badezimmer (Spiegelschrank & Waschtischunterschrank) ist ausgestattet.



Die Geschäfte des alltägliche Bedarfs erreichen Sie in wenigen Gehminuten.



Überzeugen Sie sich selbst und vereinbaren Sie gerne einen Besichtigungstermin unter 03512/822 37!



 



Kriterien für eine Wohnungsvergabe - Förderung Land Steiermark:



Es handelt sich hierbei um eine vom Land Steiermark geförderte Mietwohnung. Die potentiellen Mieter müssen daher die vom Land vorgegebenen Kriterien erfüllen:



• Österreichische Staatsbürgerschaft, EU-Bürger oder diesen gleichgestellten Personen bzw. Aufenthalt länger als 5 Jahre in Österreich mit aufrechter Arbeitsbewilligung



• Das jährliche Familieneinkommen darf bei einer Person € 40.800,-- nicht überschreiten. Dieser Betrag erhöht sich für die zweite im Haushalt lebende nahestehende Person um 50%, für jede weitere derartige Person um € 5.400,--.



• Die geförderte Wohnung muss als Hauptwohnsitz bewohnt werden


Wir weisen darauf hin, dass zwischen dem Vermittler und dem zu vermittelnden Dritten ein familiäres oder wirtschaftliches Naheverhältnis besteht.


Der Immobilienmakler erklärt, dass er – entgegen dem in der Immobilienwirtschaft üblichen Geschäftsgebrauch des Doppelmaklers – einseitig nur für den Vermieter tätig ist.

Infrastruktur / Entfernungen

Gesundheit
Arzt <500m
Krankenhaus <1.500m
Apotheke <500m

Kinder & Schulen
Schule <500m
Kindergarten <500m

Nahversorgung
Supermarkt <500m
Bäckerei <7.500m
Einkaufszentrum <9.000m

Sonstige
Bank <500m
Geldautomat <500m
Polizei <1.000m
Post <500m

Verkehr
Bus <500m
Bahnhof <1.000m

Angaben Entfernung Luftlinie / Quelle: OpenStreetMap

Eckdaten Objektnr. 6349/1554

Art: Wohnung - Dachgeschoß
Land: Österreich
Zustand: Voll_saniert
Gesamtmiete: 1.108,73
Kaltmiete (netto): 661,66 €
Kaltmiete: 850,86 €
Provision: Gemäß Erstauftraggeberprinzip bezahlt der Abgeber die Provision.
Betriebskosten: 189,20 €
Heizkosten: 141,90 €
MwSt Gesamt: 115,97 €
Wohnfläche: 94,60 m²
Zimmer: 4
Bäder: 1
WC: 1
Stellplätze: 1
Immobilie merken Exposé

Ausstattung

Zentralheizung, Einbauküche, Personenaufzug, Dusche, Kabel/Satelliten-TV, Parkplatz


Immobilie anfragen


Ihre persönliche Beratung

Böchzelt Immobilien GmbH

Böchzelt Immobilien GmbH

Böchzelt Immobilien GmbH

T +43(0)3512/ 82237