Exklusive Villa zwischen Wien und den Weingärten

Haus - Villa, 2102 Hagenbrunn


Beschreibung der Immobilie

Exklusive Villa zwischen Wien und den Weingärten

Ein Haus für Menschen, die Klarheit schätzen.



Weingärten, Weinstraße und absolute Ruhe – eine Lage, die man nicht erklären muss.




Erleben Sie die Villa in Bewegung - Video
Ein exklusives Objektvideo vermittelt Ihnen ein erstes Raumgefühl und zeigt die Atmosphäre dieser besonderen Immobilie im Herzen Wiens.



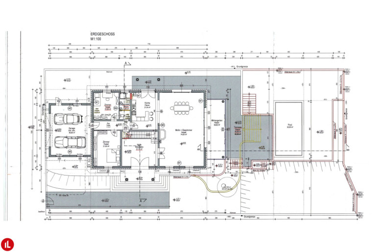
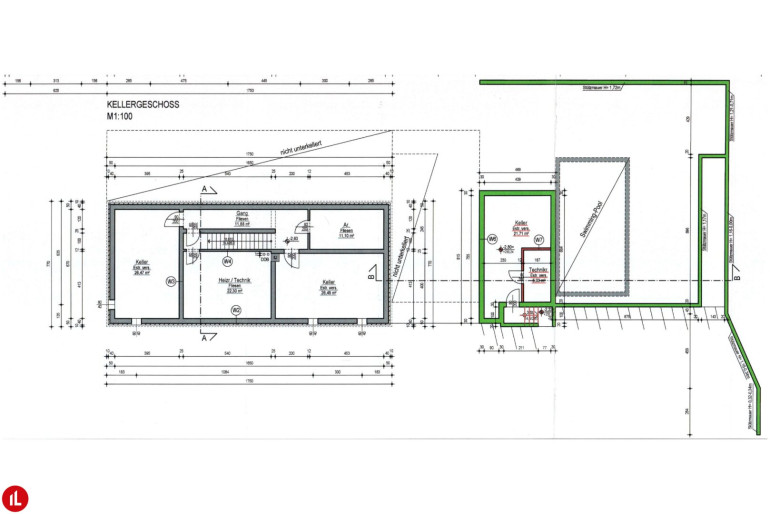
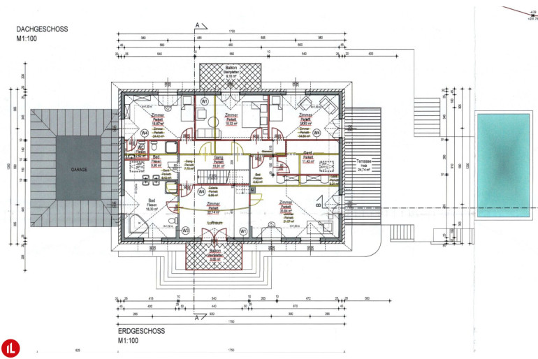
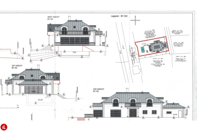
Klarheit auf einen Blick – der Grundrissplan
Der übersichtliche Grundriss gibt Ihnen einen strukturierten Eindruck der Raumaufteilung und des großzügigen Zuschnitts dieser stilvollen Altbauwohnung.



Erste Eindrücke, die bleiben
Hochwertige Fotografien fangen die Lichtstimmung, die architektonischen Feinheiten und die besondere Wohnqualität dieser Altbauperle eindrucksvoll ein.




Diese Villa in Hagenbrunn verbindet großzügiges, lichtdurchflutetes Wohnen mit der Ruhe und Qualität des Weinviertels – eingebettet in eine der begehrtesten Lagen entlang der Weinstraße.



Bereits beim Betreten des Hauses zeigt sich der Anspruch: ein repräsentatives Entrée mit Marmorboden und Säulen, klare Raumachsen und ein außergewöhnliches Maß an Helligkeit. Große Fensterflächen sorgen ganztägig für Sonne und eröffnen weite Blicke ins Grüne.



Der zentrale Wohn- und Essbereich öffnet sich fließend zur hochwertig ausgestatteten Küche. Maßgefertigte Einbauten, Natursteinoberflächen und moderne Technik treffen hier auf klassische Proportionen. Ein offener Kamin ergänzt das Ambiente auf zurückhaltende Weise.



Im gesamten Haus sorgen Fußbodenheizung, Holz-Alu-Fenster und hochwertige Materialien wie Nussholzböden und Steinbeläge für nachhaltigen Wohnkomfort. Die privaten Rückzugsbereiche im Obergeschoss sind ruhig, hell und mit Terrassenflächen ausgestattet.



Der Garten ist eben, sonnig und großzügig angelegt. Mittelpunkt ist der elegant integrierte Swimmingpool, ergänzt durch weitläufige Terrassen im Erdgeschoss – ein privater Rückzugsort mit ganztägiger Sonne.



Garage, Sicherheitstechnik und moderne Haustechnik sind vorhanden – unaufgeregt integriert, funktional gedacht.



Ein Zuhause für Menschen, die bewusst wohnen – nicht repräsentieren wollen.




Übergabe ab Kaufvertrag



Schauen Sie sich das Objektvideo zu dieser Immobilie an: Zum Objektvideo




LEINER KUNDEN HABEN'S BESSER! Ein GRATIS Übersiedlungsauto steht für Ihren Umzug bereit.




KONTAKTIEREN SIE UNS |  Paul Hanifl - 0664 125 11 11



Immobilientreuhänder | Immobilienmakler, Immobilienverwalter & Bauträger



Alleinbeauftragte Immobilienkanzlei



Unser Erfolgshonorar beträgt 3% zuzüglich 20% Umsatzsteuer



Ihre Anfrage ist uns wichtig und wertvoll!



In Entsprechung des FAGG (Fern- und Auswärtsgeschäfte-Gesetz) und des VRUG (Verbraucherrechte-Richtlinie-Umsetzungsgesetz) ist es uns nur möglich, Termine nach Erhalt einer schriftlichen Anfrage mit vollständigen Kontaktangaben (Name, Adresse, Telefon, Email) zu vereinbaren. Dies gilt auch für die Weitergabe relevanter Informationen des Objektes. Wir danken für Ihr Verständnis und freuen uns, Sie bald als Kunde begrüßen zu dürfen.

Infrastruktur / Entfernungen

Gesundheit
Arzt <1.000m
Apotheke <3.000m
Klinik <7.500m
Krankenhaus <5.000m

Kinder & Schulen
Schule <1.000m
Kindergarten <2.000m
Universität <4.500m
Höhere Schule <8.500m

Nahversorgung
Supermarkt <3.000m
Bäckerei <3.000m
Einkaufszentrum <4.500m

Sonstige
Bank <1.000m
Geldautomat <1.000m
Post <3.000m
Polizei <1.000m

Verkehr
Bus <500m
Straßenbahn <4.500m
U-Bahn <7.500m
Bahnhof <4.500m
Autobahnanschluss <3.500m

Angaben Entfernung Luftlinie / Quelle: OpenStreetMap

Eckdaten Objektnr. 21888

Art: Haus - Villa
Land: Österreich
Baujahr: 2017
Zustand: Erstbezug
Alter: Neubau
Kaufpreis: 3.750.000,00
Wohnfläche: 391,26 m²
Nutzfläche: 125,07 m²
Grundstücksfl.: 1.302,00 m²
Zimmer: 12
Bäder: 3
WC: 4
Balkone: 1
Terrassen: 1
Garten: 740,30 m²
Keller: 125,07 m²
Immobilie merken Exposé

Ausstattung

Parkett, Gas, Fußbodenheizung, Kamin, Einbauküche, Bad mit Fenster, Badewanne, Dusche, Parkplatz, Garage, Alarmanlage, Sicherheitskamera, Swimmingpool


Immobilie anfragen


Ihre persönliche Beratung

Immobilienwelt Leiner

Paul Hanifl

Immobilienwelt Leiner

H +43 664 125 11 11