Grünareal „Freie Mitte“ - Wunderschönes Apartment mit Balkon samt Panoramablick im trendigen Nordbahnviertel! Garage verfügbar!

Wohnung , 1020 Wien


Nordbahnviertel, Freie Mitte

Beschreibung der Immobilie

Grünareal „Freie Mitte“ - Wunderschönes Apartment mit Balkon samt Panoramablick im trendigen Nordbahnviertel! Garage verfügbar!

In einem hochwertig und soeben komplett neu errichteten Hochhaus gelangt ein Apartment mit Balkon zum Verkauf! Garage optional verfügbar!



Das Ende 2023 komplett neu errichtete sehr hochwertige Wohngebäude trägt das "bauXund schadstoffgeprüft" Prüfsiegel, das für besonders hohe bauökologische Standards bei der Errichtung bürgt.



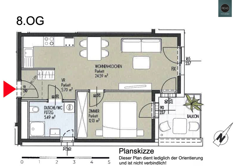
Das neuwertige Apartment befindet sich im 8. Stock (mit Lift) und besteht aus:



  • 1 Vorraum/Eingangsbereich/Garderobe
  • 1 BAD/WC mit Dusche samt Glaswand, WC, Waschbecken, Handtuchheizkörper, Waschmaschinenanschluss sowie einem Fenster
  • 1 Küche mit hochwertiger Einbauküche inkl. aller Geräte (Kühl-Gefrierkombi, E-Herd, E-Backofen, Dunstabzug, Geschirrspüler, Spüle) sowie einem Essbereich samt Tisch
  • 1 Wohn-Esszimmer mit Ausgang zum Balkon
  • 1 Schlafzimmer samt Einbauschrank vom Tischler mit Ausgang zum Balkon
  • 1 Balkon mit Pflanztrog

     
  • 1 Kellerabteil

     
  • 1 Garagenplatz in der hauseigenen Tiefgarage (Optional. Konditionen noch zu besprechen. E-Ladestation möglich. Betriebskosten + Rücklage: € 24,81 / Monat)
  • Weitere Garagenplätze in der hauseigenen Tiefgarage (Optional je nach Verfügbarkeit, Konditionen noch zu besprechen, E-Ladestationen möglich)


Die auf den Fotos abgebildeten sehr hochwertigen Tischlermöbel können in Absprache mit veräußert werden. Die Küche ist inkludiert.



Zur hochwertigen Ausstattung der Wohnung gehören unter anderem: WK3 Sicherheits-Eingangstüre mit Alarmanlagenvorbereitung, Deckenkühlung mittels Fernkälte, Fußbodenheizung mittels Fernwärme, Echtholzparkettböden, Feinsteinzeug im Badezimmer, 3-Fach verglaste Thermo-Fenster (Holz-Alu) inkl. Außenbeschattungen (elektrische Screens), Balkon mit Panorama-Blick samt Blumentrog und Beleuchtung, trockenes und großzügiges Kellerabteil, Video-Gegensprechanlage, uvm.



Zur hochwertigen Ausstattung des Hauses gehören unter anderem: Gemeinschaftsraum mit Küche sowie diversen Ausstattungen sowie Fitnessraum mit hochwertigen Geräten samt Sanitärräumen mit Dusche, Kinder- und Jugendspielplätze, Fahrrad- Kinderwagenabstellräume, Fahrradabstellplätze auch im Freien, Personenlift, Garage, Fernwärme- bzw. Fernkälteversorgung, zentrale Warmwasseraufbereitung, Bauteilaktivierung (Fußbodenheizung sowie Deckenkühlung), begrüntes Flachdach, optional E-Ladestation für die PKW Garagenplätze (optional) möglich, Paketboxen im Stiegenhaus-Eingangsbereich, uvm.



PROJEKT



Auf dem ehemaligen Bahnareal ist ein lebendiges Wohnviertel entstanden, das Spielplätze und großzügige Gemeinschaftsflächen bietet. Direkt vor der Haustür – Wiens wildeste Seite. Der Duft heimischer Pflanzen erfüllt die Luft und weckt Glücksgefühle. Das behutsam gestaltete Grün- und Naturareal der „Freien Mitte“ lädt zum Entspannen in einer neuen, sozialen und persönlichen Oase ein. Dieser dynamische Stadtteil bietet Menschen aller Generationen einen harmonischen Lebensmittelpunkt mit einem besonderen Wohlfühl-Faktor. Die direkt integrierten kleinen Geschäfte und Lokale schaffen ein Dorffeeling mitten in der Stadt. Hier haben die Geschichten des Lebens ihren einzigartigen Platz gefunden.



Die Wohnhausanlage besteht aus diversen Baukörpern und umfasst großzügige Wohnungen mit Balkonen, Terrassen oder Gärten. Die Architektur hebt sich durch eine markante Fassadengestaltung von herkömmlichen Lösungen ab und trägt zur modernen Erscheinung des gesamten Projekts bei. Hochwertiger Ausstattung und nachhaltige Bauweise findet sich in allen Baukörpern dieses Projektes wieder. 



Die Anlage umfasst attraktive Allgemeinbereiche wie einen Fitnessraum und einen Gemeinschaftsraum für Events. Eine Tiefgarage sowie großzügige Fahrrad-Abstellplätze, auch für Lastenfahrräder, stehen zur Verfügung. Das nachhaltige Konzept des Projekts umfasst außerdem Dachbegrünungen und teilweise Fassadenbegrünungen, die das Mikroklima verbessern.



LAGE



Das Immobilienprojekt liegt im Nordbahnviertel, direkt am naturbelassenen Grünraum „Freie Mitte“, einem 93.000 Quadratmeter großen Erholungsgebiet. Der Park bietet Naturflächen, die sowohl die lokale Pflanzen- als auch Tiervielfalt fördern. Zahlreiche Freizeitmöglichkeiten und unzählige neu gepflanzte Bäume machen „Freie Mitte“ zu einem zentralen Naherholungsraum.



Mit seiner zentralen Lage in Wien kombiniert das Projekt hohe Lebensqualität mit hervorragender Erreichbarkeit von Kultur, Freizeit und Natur. Die „Freie Mitte“ bietet nicht nur Erholung, sondern auch ein einzigartiges Lebensgefühl mitten in der Stadt. Die Anbindung an den öffentlichen Verkehr ist ideal: Die Straßenbahnlinie O führt direkt zum Praterstern, von dort sind U-Bahn- und Schnellbahnverbindungen schnell erreichbar. Schulen, Geschäfte und Cafés befinden sich ebenfalls in unmittelbarer Nähe.



Für Fragen und Besichtigungen stehen wir jederzeit gerne zur Verfügung.



Wir ersuchen Sie, bereits in Ihrer Anfrage Ihre vollständigen Kontaktdaten (Adresse, Mail, Telefon) anzugeben, damit wir Ihre Anfrage rascher bearbeiten können. Aufgrund der Nachweispflicht gegenüber dem Abgeber sind wir verpflichtet, vor Bekanntgabe der Adresse diese Daten aufzunehmen und ersuchen um Ihr Verständnis.



Der guten Ordnung halber halten wir fest, dass, sofern im Angebot nicht anders vermerkt, bei erfolgreichem Vertragsabschluss eine Provision anfällt, die den in der Immobilienmaklerverordnung BGBI. 262 und 297/1996 festgelegten Provisionssätzen entspricht. Diese Provisionspflicht besteht auch dann, wenn Sie die Ihnen überlassenen Informationen an Dritte weitergeben.



Einzelne Bilder oder Visualisierungen in den Vermarktungsunterlagen, Exposés oder Inseraten wurden unter Umständen digital, teilweise auch mithilfe von künstlicher Intelligenz (KI), bearbeitet und dienen ausschließlich der Veranschaulichung. Sie können vom tatsächlichen Zustand, der Ausstattung oder Ausführung der Immobilien abweichen. Verbindlich sind ausschließlich die Angaben im Kauf-/Mietangebot sowie bei Besichtigung vor Ort.



Sämtliche Ihnen hiermit übermittelte Angaben wurden uns, seitens des Abgebers bekannt gegeben. Eine Garantie auf Richtigkeit und Vollständigkeit können wir nicht übernehmen.

Noch nichts gefunden? Wir informieren Sie über geeignete Immobilienangebote noch vor allen anderen.
Legen Sie jetzt Ihren individuellen Suchagenten unter folgendem Link an. Wir schicken Ihnen passende Immobilien exklusiv vorab zu.

Suchagent anlegen - https://reas-realitaeten-asmus.service.immo/registrieren/de


Wir weisen darauf hin, dass zwischen dem Vermittler und dem zu vermittelnden Dritten ein familiäres oder wirtschaftliches Naheverhältnis besteht.


Der Vermittler ist als Doppelmakler tätig.

Infrastruktur / Entfernungen

Gesundheit
Arzt <500m
Apotheke <500m
Klinik <1.000m
Krankenhaus <1.500m

Kinder & Schulen
Schule <500m
Kindergarten <500m
Universität <1.500m
Höhere Schule <2.000m

Nahversorgung
Supermarkt <500m
Bäckerei <500m
Einkaufszentrum <1.500m

Sonstige
Geldautomat <1.000m
Bank <500m
Post <500m
Polizei <1.000m

Verkehr
Bus <500m
U-Bahn <1.000m
Straßenbahn <500m
Bahnhof <1.000m
Autobahnanschluss <1.500m

Angaben Entfernung Luftlinie / Quelle: OpenStreetMap

Eckdaten Objektnr. 4039

Art: Wohnung
Land: Österreich
Baujahr: 2023
Alter: Neubau
Kaufpreis: 410.000,00
Provision: 3% des Kaufpreises zzgl. 20% USt.
Betriebskosten: 111,80 €
MwSt Gesamt: 11,18 €
Wohnfläche: 47,91 m²
Nutzfläche: 47,91 m²
Zimmer: 2
Bäder: 1
WC: 1
Balkone: 1
Heizwärmebedarf:  A  21,60 kWh/m²a
fGEE:  A  0,77
Immobilie merken Exposé

Ausstattung

Fliesen, Parkett, Fußbodenheizung, Einbauküche, Personenaufzug, Dusche, Garage


Immobilie anfragen


Ihre persönliche Beratung

REAS Realitäten Asmus GmbH

REAS Immobilien

REAS Realitäten Asmus GmbH

T +43 664 24 77 08 7