PRAXIS / BÜRO RÄUME IN DER LEDERFABRIK - STILVOLLES ARBEITEN

Büro / Praxis , 4040 Linz


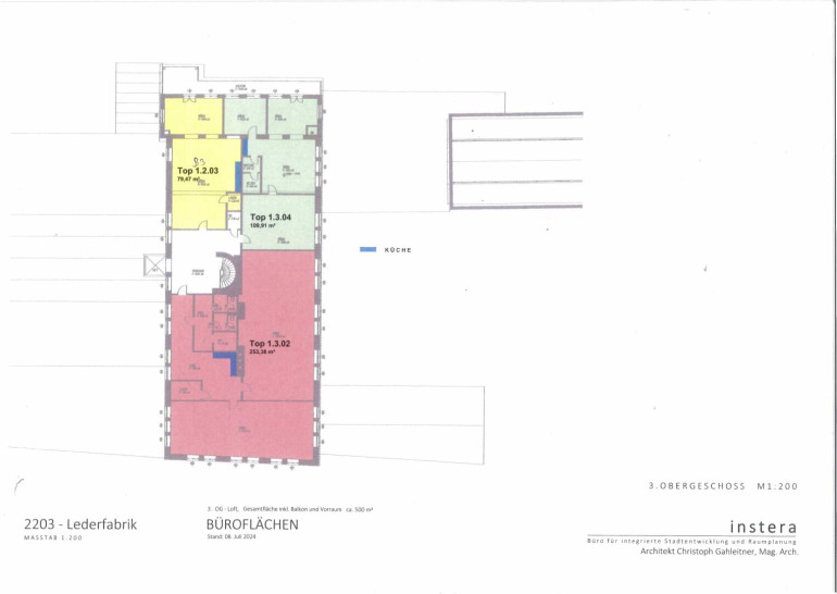
Diese Bürofläche befindet sich am Rand der Landeshauptstadt Linz in der historischen Lederfabrik.

Beschreibung der Immobilie

PRAXIS / BÜRO RÄUME IN DER LEDERFABRIK - STILVOLLES ARBEITEN

Diese attraktive Immobilie befindet sich in der 3. Etage eines gut gepflegten Gebäudes und bietet Ihnen mit ihren 2 Zimmern die perfekte Grundlage für Ihre geschäftlichen Ideen. Ob Sie ein innovatives Büro, eine Praxis für Ihre Klienten oder einfach einen kreativen Raum zur Verwirklichung Ihrer Visionen suchen – hier finden Sie die ideale Umgebung.



Die Räume sind hell und freundlich, sodass Sie ein angenehmes Arbeitsklima schaffen können.



Die Heiz-und Stromkosten werden vom Vermieter bzw. der Hausverwaltung vorgeschrieben und abgerechnet. Es sind ausreichend Parkplätze für Sie und Ihre Kunden vorhanden. 



Nutzen Sie diese einmalige Gelegenheit, um Ihre beruflichen Träume in einer der aufstrebendsten Städte Österreichs zu verwirklichen.


Wir weisen darauf hin, dass zwischen dem Vermittler und dem zu vermittelnden Dritten ein familiäres oder wirtschaftliches Naheverhältnis besteht.


Der Vermittler ist als Doppelmakler tätig.

Eckdaten Objektnr. 1937/7645978

Art: Büro / Praxis
Land: Österreich
Betriebskosten: 1.036,86 €
MwSt Gesamt: 207,37 €
Nutzfläche: 334,47 m²
Heizwärmebedarf: 60,00 kWh/m²a
fGEE: 1,12
Immobilie merken Exposé

Ausstattung

Einbauküche


Immobilie anfragen


Ihre persönliche Beratung

Silvia Loizenbauer

AREV Immobilien GmbH

T 0732/ 60 55 33 - 364

H 0664/ 81 85 330