ARZTPRAXIS IN DER LEDERFABRIK - PARKPLÄTZE VORHANDEN

Büro / Praxis , 4040 Linz


Diese attraktive Büro/Praxisfläche befindet sich in nahe Linz, Oberösterreich. Die unmittelbare Nähe zu Arztpraxen und öffentlichen Verkehrsanbindungen, wie Buslinien, macht die Immobilie äußerst praktisch für Ihre Klienten und Mitarbeiter. Genießen Sie die Vorteile einer gut erreichbaren Lage, die Ihnen sowohl berufliche als auch soziale Synergien bietet. Ideal für Dienstleister, die Wert auf Erreichbarkeit legen!

Beschreibung der Immobilie

ARZTPRAXIS IN DER LEDERFABRIK - PARKPLÄTZE VORHANDEN

Diese ansprechende Immobilie befindet sich in der 3. Etage eines gepflegten Gebäudes in 4040 Linz, Oberösterreich, und bietet Ihnen die perfekte Basis für Ihre geschäftlichen Aktivitäten.



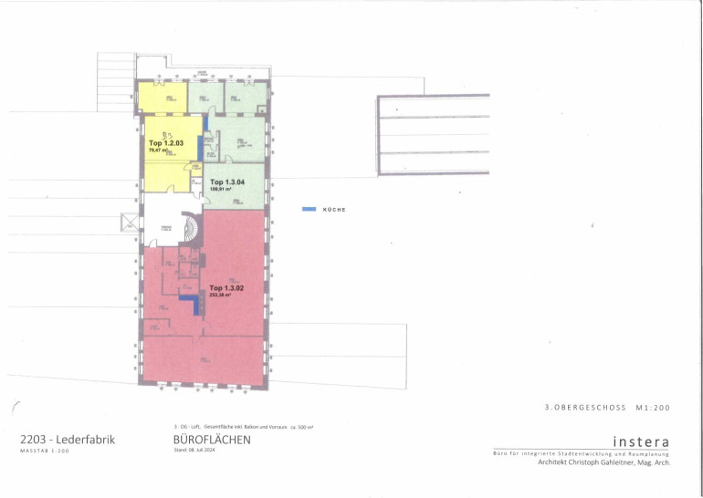
Die Büroeinheit erstreckt sich über drei helle und freundliche Zimmer, die sich ideal für verschiedene Nutzungsmöglichkeiten anbieten. Ob als modernes Büro, kreative Praxis oder Beratungsstelle – hier können Sie Ihre Ideen frei entfalten und Ihre Klienten in einem professionellen Ambiente empfangen. Die großzügigen Fenster sorgen für viel Tageslicht und schaffen eine angenehme Arbeitsatmosphäre, die sowohl Ihnen als auch Ihren Besuchern zugutekommt.



Die Heiz-und Stromkosten werden vom Vermieter bzw. der Hausverwaltung vorgeschrieben und abgerechnet. 



Die Lage ist nicht nur verkehrstechnisch attraktiv, sondern bietet auch eine hervorragende Infrastruktur. In unmittelbarer Nähe finden Sie einen Arzt sowie zahlreiche Geschäfte und Dienstleistungen, die Ihren Arbeitsalltag erleichtern. Egal, ob Sie eine kurze Pause einlegen oder wichtige Besorgungen erledigen möchten, alles ist nur einen kurzen Fußweg entfernt.



Nutzen Sie die Gelegenheit, in dieser dynamischen Umgebung Fuß zu fassen und Ihre Geschäftsideen zum Leben zu erwecken. Die Kombination aus optimaler Lage, ansprechendem Raumangebot und der Möglichkeit, in einer wachsenden Stadt wie Linz tätig zu sein, macht diese Büro- oder Praxisfläche zu einem idealen Standort für Ihre Zukunft.




Wir weisen darauf hin, dass zwischen dem Vermittler und dem zu vermittelnden Dritten ein familiäres oder wirtschaftliches Naheverhältnis besteht.


Der Vermittler ist als Doppelmakler tätig.

Eckdaten Objektnr. 1937/7645977

Art: Büro / Praxis
Land: Österreich
Provision: 3 Bruttomonatsmieten zzgl. 20% USt.
Betriebskosten: 790,50 €
MwSt Gesamt: 158,10 €
Nutzfläche: 253,38 m²
Heizwärmebedarf: 60,00 kWh/m²a
fGEE: 1,12
Immobilie merken Exposé

Immobilie anfragen


Ihre persönliche Beratung

Silvia Loizenbauer

AREV Immobilien GmbH

T 0732/ 60 55 33 - 364

H 0664/ 81 85 330