---BESTANDSFREIES UND NACH §70A BAUBEWILLIGTES ZINSHAUS - RARITÄT AM WIENER ZINSHAUSMARKT - BESTLAGE DES 17. WIENER GEMEINDEBEZIRKS - NÄCHST APFELBAUMPROJEKT---
Zinshaus Renditeobjekt
,
1170
Wien
Alser Straße U6, Josefstädter Straße U6, Elterleinplatz, Tram 9/43/44, Jörgerbad, Brunnenmarkt, Ortlieb Park, Pezzlpark, Huberpark, Lorenz-Bayer-Park, Hernalser Gymnasium Geblergasse, Kindergarten Nattergasse, St. Anna Kinderspital, Yppenmarkt, Yppenpark
Beschreibung der Immobilie
---BESTANDSFREIES UND NACH §70A BAUBEWILLIGTES ZINSHAUS - RARITÄT AM WIENER ZINSHAUSMARKT - BESTLAGE DES 17. WIENER GEMEINDEBEZIRKS - NÄCHST APFELBAUMPROJEKT---
Im charmanten 17. Wiener Gemeindebezirk wird dieses historische Zinshaus in bestandsfreiem und baubewilligten Zustand verkauft und übergeben.
Eckdaten:
WNFL Bestand: ca. 789,41 m² inkl. Gewichtungen der Außenflächen sowie der Lichthofüberbauung im Hoftrakt, welche bewilligt sind
WNFL DG-Ausbau: ca. 351,91 m² inkl. Gewichtung Außenflächen
Anteil: 1/1
Stockwerke: 4 zzgl. 2 Dachgeschoss-Ebenen (inkl. EG Fläche)
Wohneinheiten: 12, Bestand
Wohneinheiten: 16 Wohnungen nach Entwicklung
Lift: ja - geplant, Schacht wurde errichtet
Keller: ja
Fahrrad- und Kinderwagenabstellraum: ja - geplant
Heizung: Gas-Etagen / Luftwärmepumpe
Beschreibung:
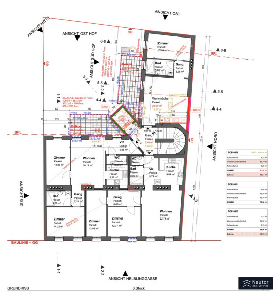
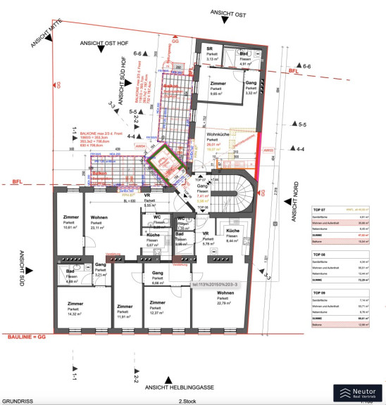
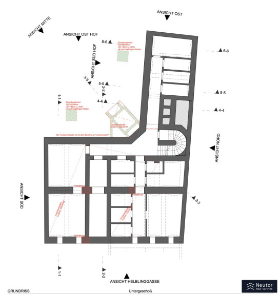
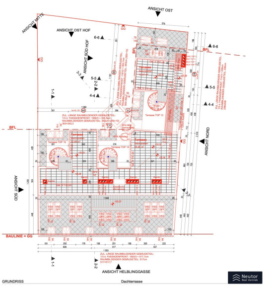
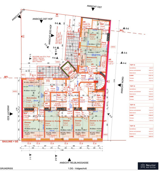
Dieses historische Zinshaus befindet sich in hervorragender Lage mit der Bauklasse III und wurde in geschlossener Bauweise errichtet. Es liegt eine Baubewilligung nach vereinfachtem Verfahren nach § 70a Wiener Bauordnung vor, welches das gesamte Gebäude umfasst. Im Kellergeschoss ist im Straßentrakt eine Fundamentplatte geplant für die Ertüchtigung für den bewilligten Dachgeschossausbau. Weitere statische Maßnahmen finden sich in der vorliegenden Vorstatik. Pro Etage befinden sich drei kompakt geschnittene Altbauwohnungen, wobei jeweils zwei Wohneinheiten mit Außenflächen geplant sind. Im Dachgeschoss sollen vier Wohneinheiten entstehen, welche als Maisonetten ausgestaltet sind.
Die angefangenen Arbeiten wurden vom vormaligen Eigentümer durchgeführt und stehen mit dem aktuellen Verkäufer in keinem Zusammenhang. Es finden derzeit keine Arbeiten am Haus statt.
Das Referenzobjekt Apfelbaum vom renommierten Bauprojektenwickler LIV befindet sich direkt gegenüber und spricht für diese Lage.
| EG | 1 | 45,00 m² | 15,61 m² Terrasse | 26,36 m² | 56,76 m² |
| EG | 2 | 64,31m² | - | 64,31 m² | |
| EG | 3 | 45,95 m² | 16,65 m² Terrasse | 28,2 m² | 58,51 m² |
| 1.OG | 4 | 46,05 m² | 15,54 m² Balkon | 53,82 m² | |
| 1.OG | 5 | 72,89 m² | - | 72,89 m² | |
| 1.OG | 6 | 68,36 m² | 12,99 m² Balkon | 74,86 m² | |
| 2.OG | 7 | 47,02 m² | 15,54 m² Balkon | 54,79 m² | |
| 2.OG | 8 | 72,29 m² | - | 72,29 m² | |
| 2.OG | 9 | 69,61m² | 12,99 m² Balkon | 76,11 m² | |
| 3.OG | 10 | 47,58 m² | 15,54 m² Balkon | 55,35 m² | |
| 3.OG | 11 | 73,38 m² | - | 73,38 m² | |
| 3.OG | 12 | 69,86 m² | 12,99 m² Balkon | 76,36 m² | |
| DG | 13 | 68,72 m² | 15,64 m² Balkon | 83,94 m² | |
| DG | 14 | 92,38 m² | - | 102,43 m² | |
| DG | 15 | 90,76 m² | 11,90 m² Balkon | 104,48 m² | |
| DG | 16 | 55,11m² | 11,90 m² Balkon | 55,11 m² |
Bestand:
12 Wohnungen auf 4 Etagen
WNFL: ca. 789,41 m² inkl. Gewichtungen der Außenflächen sowie der Lichthofüberbauung im Hoftrakt, welche bewilligt sind
DG-Ausbau:
4 Maisonette-Wohnungen auf 2 DG-Ebenen
WNFL ca. 351,91 m² inkl. Gewichtungen der Außenflächen, welche bewilligt sind
Kosten:
Kaufpreis: € 2.350.000,-
Provision: 3% des Kaufpreises zzgl. gesetzliche USt.
Vertragserrichtungkosten: 1,0% zzgl. Barauslagen und USt.
Lage + Infrastruktur:
Wohnen in Hernals - einem Stadtteil mit hoher Lebensqualität, großzügigen Grünflächen, Parkanlagen, vielen Freizeit, Sport und Erholungsmöglichkeiten. Die gleichzeitige Nähe zum Stadtzentrum und zu Freizeitorten wie dem Pezzlpark.
In dieser sehr lebenswerten Lage, sind Sie bestens an das öffentliche Verkehrsnetz angebunden. Die U6 Alser Straße ist in wenigen Minuten fußläufig erreichbar. Die Tramlinien 2/9/43 und 44 befinden sich ebenfalls in unmittelbarer Nähe. Für die Dinge des täglichen Lebens müssen Sie lediglich Ihre neue Haustüre verlassen. Im Bereich Bildung bietet diese Adresse viele Möglichkeiten wie die Volksschule Rötzergasse sowie das Hernalser Gymnasium Geblergasse. Für einen entspannten Nachmittag eignet sich der Lorenz-Bayer-Park, Huberpark oder der Pezzlpark hervorragend. In nur ca. 4 Gehminuten erreichen Sie den beliebten Yppenmarkt, welcher eine große Auswahl an frischen Lebensmitteln bietet. Eine tolle Wohnung in bestens angebundener Lage.
Wir dürfen gem. § 5 Maklergesetz darauf hinweisen, dass wir als Doppelmakler tätig sind und ein wirtschaftliches/familiäres Naheverhältnis zu unseren Auftraggebern besteht. Das wirtschaftliche Naheverhältnis ergibt sich aus regelmäßiger geschäftlicher Verbindung. Irrtum vorbehalten.
Hinweis gemäß Energieausweisvorlagegesetz: Ein Energieausweis wurde vom Eigentümer bzw. Verkäufer, nach unserer Aufklärung über die generell geltende Vorlagepflicht, sowie Aufforderung zu seiner Erstellung noch nicht vorgelegt. Daher gilt zumindest eine dem Alter und der Art des Gebäudes entsprechende Gesamtenergieeffizienz als vereinbart. Wir übernehmen keinerlei Gewähr oder Haftung für die tatsächliche Energieeffizienz der angebotenen Immobilie.
Infrastruktur / Entfernungen
Gesundheit
Arzt <500m
Apotheke <500m
Klinik <500m
Krankenhaus <1.000m
Kinder & Schulen
Schule <500m
Kindergarten <500m
Universität <1.500m
Höhere Schule <1.000m
Nahversorgung
Supermarkt <500m
Bäckerei <500m
Einkaufszentrum <500m
Sonstige
Geldautomat <500m
Bank <500m
Post <500m
Polizei <500m
Verkehr
Bus <500m
U-Bahn <500m
Straßenbahn <500m
Bahnhof <500m
Autobahnanschluss <3.500m
Angaben Entfernung Luftlinie / Quelle: OpenStreetMap
Eckdaten Objektnr. 4912
| Art: | Zinshaus Renditeobjekt |
| Land: | Österreich |
| Baujahr: | 1900 |
| Zustand: | Projektiert |
| Alter: | Altbau |
| Kaufpreis: | 2.350.000,00 € |
| Nutzfläche: | 1.135,37 m² |
Ausstattung
Gas
Ihre persönliche Beratung
Daniel Hausberger
Neutor Real GmbH
T +4315323730
H +436504440651