Moderne 1 Zimmer Wohnung im 10. Bezirk

Wohnung , 1100 Wien


Beschreibung der Immobilie

Moderne 1 Zimmer Wohnung im 10. Bezirk

Liebe Interessentin, lieber Interessent,



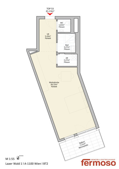
in attraktiver Lage am Laaer Wald 1 im 10. Bezirk erwartet Sie diese moderne 1-Zimmer-Wohnung mit ca. 41,13 m² Wohnfläche und einem Balkon mit ca. 7,21 m². Die Wohnung überzeugt durch eine durchdachte Raumaufteilung, helle Wohnbereiche und eine zeitgemäße Ausstattung – ideal für Singles, Pendler oder als Anlagewohnung.



Raumaufteilung & Flächen




  • Wohnküche: ca. 28,72 m² – großzügiger, offen gestalteter Wohn- und Schlafbereich mit direktem Zugang zum Balkon



  • Vorraum: ca. 5,24 m² – mit Platz für Garderobe



  • Abstellraum: ca. 2,27 m² – praktischer Stauraum



  • Badezimmer: ca. 3,27 m² – modern verfliest



  • Separates WC: ca. 1,63 m²



  • Balkon: ca. 7,21 m² – angenehme Freifläche für entspannte Stunden im Freien




Ausstattung




  • Parkettboden in Wohnküche und Vorraum



  • Verfliesung in Bad, WC und Abstellraum



  • Funktionaler Grundriss mit optimaler Nutzung der Wohnfläche



  • Balkon als zusätzlicher Wohnraum im Freien




Lage



Die Wohnung liegt in unmittelbarer Nähe zum Laaer Wald, einem beliebten Erholungsgebiet mit zahlreichen Freizeitmöglichkeiten. Nahversorgung, öffentliche Verkehrsmittel sowie die Anbindung an die Wiener Innenstadt sind sehr gut. Die Kombination aus ruhiger Grünlage und urbaner Infrastruktur macht diesen Standort besonders attraktiv.




📞 Kontakt:
Dean Banovic
📧 db@fermoso.at
📱 +43 676 926 15 29

Noch nichts gefunden? Wir informieren Sie über geeignete Immobilienangebote noch vor allen anderen.
Legen Sie jetzt Ihren individuellen Suchagenten unter folgendem Link an. Wir schicken Ihnen passende Immobilien exklusiv vorab zu.
Suchagent anlegen - https://fermoso-immobilientreuhand.service.immo/registrieren/de


Wir weisen darauf hin, dass zwischen dem Vermittler und dem zu vermittelnden Dritten ein familiäres oder wirtschaftliches Naheverhältnis besteht.


Der Immobilienmakler erklärt, dass er – entgegen dem in der Immobilienwirtschaft üblichen Geschäftsgebrauch des Doppelmaklers – einseitig nur für den Vermieter tätig ist.

Infrastruktur / Entfernungen

Gesundheit
Arzt <1.000m
Apotheke <500m
Klinik <1.000m
Krankenhaus <3.000m

Kinder & Schulen
Schule <500m
Kindergarten <500m
Universität <1.000m
Höhere Schule <2.500m

Nahversorgung
Supermarkt <500m
Bäckerei <500m
Einkaufszentrum <1.500m

Sonstige
Geldautomat <1.000m
Bank <1.000m
Post <1.000m
Polizei <1.500m

Verkehr
Bus <500m
U-Bahn <1.500m
Straßenbahn <500m
Bahnhof <1.000m
Autobahnanschluss <500m

Angaben Entfernung Luftlinie / Quelle: OpenStreetMap

Eckdaten Objektnr. 6674

Art: Wohnung
Land: Österreich
Baujahr: 2021
Zustand: Neuwertig
Alter: Neubau
Gesamtmiete: 799,00
Kaltmiete (netto): 602,97 €
Kaltmiete: 726,36 €
Provision: Gemäß Erstauftraggeberprinzip bezahlt der Abgeber die Provision.
Betriebskosten: 123,39 €
MwSt Gesamt: 72,64 €
Wohnfläche: 44,73 m²
Zimmer: 1
Bäder: 1
WC: 1
Balkone: 1
Heizwärmebedarf:  A  15,50 kWh/m²a
fGEE:  A+  0,65
Immobilie merken Exposé

Ausstattung

Fliesen, Parkett, Dusche


Immobilie anfragen


Ihre persönliche Beratung

Fermoso Immobilientreuhand GmbH

Dean Banovic

Fermoso Immobilientreuhand GmbH

T +43 676 9261 529

H +43 676 9261 529