Moderne 3-Zimmer-Wohnung mit Garten und Terrasse in 1050 Wien – Jetzt mieten!

Wohnung , 1050 Wien


Diese charmante Wohnung in 1050 Wien besticht durch ihre zentrale Lage und hervorragende Anbindung. In unmittelbarer Nähe finden Sie alles, was das Herz begehrt: Ärzte, Apotheken und Kliniken sorgen für Ihre Gesundheit, während Schulen und Kindergärten die ideale Umgebung für Familien bieten. Supermärkte, Bäckereien und ein Einkaufszentrum sind fußläufig erreichbar. Auch öffentliche Verkehrsmittel wie Bus, U-Bahn und Straßenbahn liegen direkt vor der Tür, was die Erkundung der Stadt zum Kinderspiel macht.

Beschreibung der Immobilie

Moderne 3-Zimmer-Wohnung mit Garten und Terrasse in 1050 Wien – Jetzt mieten!

Willkommen in Ihrem neuen Zuhause im Herzen des 5. Wiener Bezirks. Diese attraktive Wohnung verbindet urbanes Wohnen mit hoher Lebensqualität und bietet den idealen Rahmen für alle, die zentrales Wohnen schätzen, ohne auf Ruhe und Komfort verzichten zu wollen.



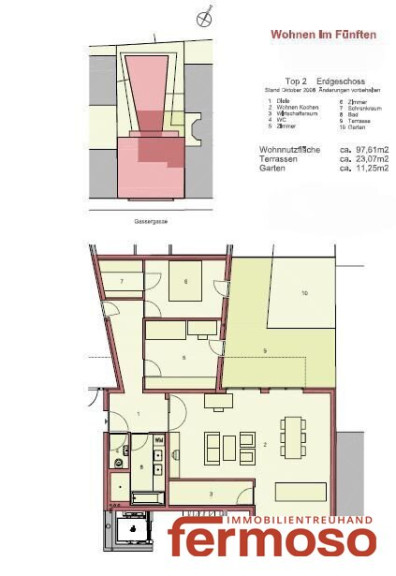
Auf rund 97,61 m² Wohnfläche verteilen sich drei helle, gut geschnittene Zimmer, die vielseitige Nutzungsmöglichkeiten bieten. Ob als Zuhause für Paare, Familien oder als großzügiger Wohnraum für Berufstätige – der durchdachte Grundriss sorgt dafür, dass jeder Quadratmeter optimal genutzt wird. Die Wohnung befindet sich im Erdgeschoss und überzeugt durch ihre angenehme Raumaufteilung.



Ein besonderes Plus ist der eigene Garten mit Terrasse. Dieser private Außenbereich lädt zum Entspannen, Verweilen und Abschalten ein und bietet eine seltene Kombination aus Stadtleben und Rückzug ins Grüne.



Die Ausstattung entspricht einem modernen Neubau-Standard und erfüllt hohe Ansprüche an zeitgemäßes Wohnen. Eine zentrale Heizungsanlage mit Fernwärme sorgt für effiziente und angenehme Wärme, während der hochwertige Parkettboden eine wohnliche Atmosphäre schafft. Ein Personenaufzug im Haus rundet den Komfort ab.



Auch die Verkehrsanbindung lässt keine Wünsche offen: Bus-, Straßenbahn- und U-Bahn-Stationen befinden sich in unmittelbarer Nähe und ermöglichen eine schnelle und unkomplizierte Verbindung in alle Teile der Stadt. Der nahegelegene Bahnhof bietet zudem eine optimale Anbindung für Pendler oder Ausflüge über die Stadtgrenzen hinaus.



Die Infrastruktur der Umgebung ist hervorragend. Ärzte, Apotheken und medizinische Einrichtungen sind rasch erreichbar. Schulen, Kindergärten und Universitäten befinden sich ebenfalls in der Nähe und machen die Lage besonders attraktiv für Familien. Einkaufsmöglichkeiten wie Supermärkte, Bäckereien und ein Einkaufszentrum decken den täglichen Bedarf bequem ab.



Die monatliche Miete von € 2.059,– spiegelt die Qualität, Lage und Ausstattung dieser Wohnung wider und bietet die Möglichkeit, in einem der gefragtesten Bezirke Wiens zu wohnen.



Überzeugen Sie sich selbst von diesem besonderen Wohnangebot und vereinbaren Sie noch heute einen Besichtigungstermin. Diese Wohnung bietet Raum zum Ankommen und Wohlfühlen.

Noch nichts gefunden? Wir informieren Sie über geeignete Immobilienangebote noch vor allen anderen.
Legen Sie jetzt Ihren individuellen Suchagenten unter folgendem Link an. Wir schicken Ihnen passende Immobilien exklusiv vorab zu.
Suchagent anlegen - https://fermoso-immobilientreuhand.service.immo/registrieren/de


Wir weisen darauf hin, dass zwischen dem Vermittler und dem zu vermittelnden Dritten ein familiäres oder wirtschaftliches Naheverhältnis besteht.


Der Immobilienmakler erklärt, dass er – entgegen dem in der Immobilienwirtschaft üblichen Geschäftsgebrauch des Doppelmaklers – einseitig nur für den Vermieter tätig ist.

Infrastruktur / Entfernungen

Gesundheit
Arzt <500m
Apotheke <500m
Klinik <1.000m
Krankenhaus <1.000m

Kinder & Schulen
Schule <500m
Kindergarten <500m
Universität <500m
Höhere Schule <1.000m

Nahversorgung
Supermarkt <500m
Bäckerei <500m
Einkaufszentrum <1.000m

Sonstige
Geldautomat <500m
Bank <500m
Post <500m
Polizei <1.000m

Verkehr
Bus <500m
U-Bahn <500m
Straßenbahn <500m
Bahnhof <500m
Autobahnanschluss <3.000m

Angaben Entfernung Luftlinie / Quelle: OpenStreetMap

Eckdaten Objektnr. 6661

Art: Wohnung
Land: Österreich
Baujahr: 2009
Alter: Neubau
Gesamtmiete: 2.059,00
Kaltmiete (netto): 1.659,03 €
Kaltmiete: 1.871,82 €
Provision: Gemäß Erstauftraggeberprinzip bezahlt der Abgeber die Provision.
Betriebskosten: 212,79 €
MwSt Gesamt: 187,18 €
Nutzfläche: 97,61 m²
Zimmer: 3
Bäder: 1
WC: 1
Terrassen: 1
Garten: 11,25 m²
Heizwärmebedarf:  C  84,24 kWh/m²a
fGEE:  C  1,27
Immobilie merken Exposé

Ausstattung

Parkett, Fernwärme, Zentralheizung, Personenaufzug, Kabel/Satelliten-TV


Immobilie anfragen


Ihre persönliche Beratung

Fermoso Immobilientreuhand GmbH

Ilksev Karakas

Fermoso Immobilientreuhand GmbH

T +43 664 19 13 188

H +43 664 19 13 188