Belagsfertige MAISONETTE - individuell selbst fertigstellen! GARTEN - TERRASSE - BALKON - Garantierte Fertigstellung JUNI 2027 - PROVISIONSFREI!!!

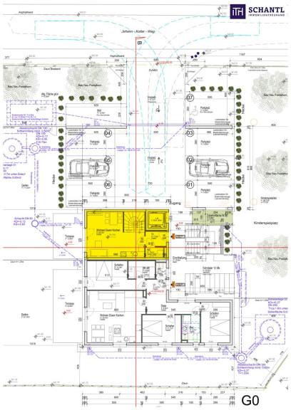
Wohnung - Erdgeschoß, 8041 Graz,07.Bez.:Liebenau , Johann-Koller-Weg


Die Wohnung befindet sich im Johann-Koller-Weg, im 11. Bezirk von Graz in der Steiermark. Sie liegt im Südwesten und bietet somit eine gute Besonnung und einen schönen Ausblick. In der Umgebung gibt es eine gute Infrastruktur mit verschiedenen Annehmlichkeiten wie einem Arzt, einer Apotheke, Schulen und Kindergärten. Auch ein LIDL und ein HOFER sind ganz in der Nähe vorzufinden, eine Bäckerei und das Einkaufszentrum MURPARK sind in der Nähe vorhanden. Geldautomaten, Banken und die Post sind ebenfalls gut erreichbar.

Beschreibung der Immobilie

Belagsfertige MAISONETTE - individuell selbst fertigstellen! GARTEN - TERRASSE - BALKON - Garantierte Fertigstellung JUNI 2027 - PROVISIONSFREI!!!

Belagsfertige MAISONETTE - individuell selbst fertigstellen!

GARTEN - TERRASSE - BALKON

Garantierte Fertigstellung JUNI 2027 - PROVISIONSFREI!!!



Exklusives Neubauprojekt mit max. 8 Wohneinheiten, im wunderschönen Wohnbezirk Liebenau!



Renommierte Bauträger, der bereits zwei Referenz-Projekte in dieser Straße vorweisen kann!



Weitere Wohnungsgrößen verfügbar - siehe Projekt Folder!



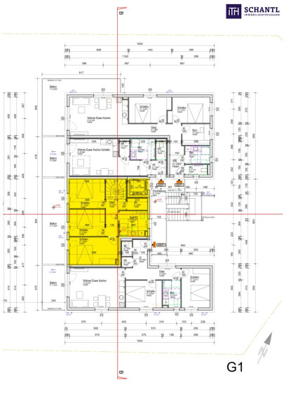
Johann-Koller-Weg 11, 8041 Graz-Liebenau - TOP 1 - Maisonette EG/1.OG



  • WNF von 83,42m²
  • Terrasse mindestens 13,90m² in SW-Ausrichtung
  • Garten 111,84m²
  • Balkon 21,82m²
  • 4 Zimmer
  • Wohnen/Essen/Kochen auf 26,74m²
  • 1 Schlafzimmer mit 14,30m² 
  • 2 Schlafzimmer mit 10,30m²
  • 3 Schlafzimmer mit 11,24m²
  • Abstellraum 2,54m²
  • Diele 5,91m²
  • Vorraum mit 3,18m²
  • Badezimmer 7,30m²,
  • WC 1,91m²
  • Keller-Ersatzraum mit 2-3m²
  • Parkplatz mit 14,00m² und Leerverrohrung für Elektrofahrzeuge


HIGHLIGHTS



  • PROJEKT-FERTIGSTELLUNG JUNI 2027!!!
  • PROVISONSFREI für den Käufer
  • SPEZIALPREIS für FRÜHKÄUFER! (nur für die ersten 4 verkauften Einheiten)
  • einmalige TERRASSE mit großem PRIVATGARTEN ideal für Familien
  • Süd-West Ausrichtung
  • Neubau - ERSTBEZUG
  • BELAGSFERTIG*
  • Veränderungen und individuelles MITGESTALTEN (bis zum endgültigen Start des Innenausbaues) möglich
  • Photovoltaikanlage
  • wunderbares Wohnviertel in absoluter Ruhelage
  • Sackgasse
  • TOP Verkehrsanbindung und Infrastruktur
  • exzellente - Baumeisterqualität


*Ohne: Innentüren, Parkett, Fliesen, Mal/Spachtelarbeiten, Sanitärgegenstände/Armaturen/Duschwand



WOHNUNG brutto: € 399.000,00



Parkplatz brutto: € 17.500,00





KAUFNEBENKOSTEN



  • PROVISIONSFREI FÜR KÄUFER
  • 3,5 % Grunderwerbsteuer*
  • 1,1 % Grundbucheintragungsgebühr*


* Bemessungsgrundlage Bruttokaufpreis inkl. Kosten für Vertragserrichtung, Beglaubigung und Treuhandschaft






Worauf noch warten?



Vereinbaren Sie noch heute eine Besichtigung der Lage und eine persönliche Beratung mit uns!
Sie wollen Ihre Immobilie verkaufen? Dann sind Sie bei uns goldrichtig!

Wir sind gerne für Sie da und unterstützen Sie unverbindlich bei der Bewertung Ihrer Immobilie. Mit viel Sorgfalt stellen wir Ihnen alle wichtigen Informationen und Unterlagen zusammen, damit Sie die besten Entscheidungen treffen können.

In Kooperation mit unserer SFI Vermögenstreuhand begleiten wir Sie bei der Verwirklichung Ihres Traumobjekts und unterstützen Sie beim nachhaltigen Vermögensaufbau. Mit unseren erfahrenen Experten sorgen wir dafür, dass Sie die

besten Konditionen erhalten – damit Ihre Träume Wirklichkeit werden!




www.schantl-ith.at in Kooperation mit sfi-invest.com




Die Angaben über das angebotene Objekt erfolgen mit der Sorgfalt eines ordentlichen Immobilienmaklers; für die Richtigkeit solcher Angaben, die auf Informationen der über das Objekt Verfügungsberechtigten beruhen, wird keine Gewähr geleistet!


Wir weisen darauf hin, dass zwischen dem Vermittler und dem zu vermittelnden Dritten ein familiäres oder wirtschaftliches Naheverhältnis besteht.


Der Vermittler ist als Doppelmakler tätig.

Infrastruktur / Entfernungen

Gesundheit
Arzt <250m
Apotheke <500m
Klinik <3.750m
Krankenhaus <3.250m

Kinder & Schulen
Schule <500m
Kindergarten <250m
Universität <2.500m
Höhere Schule <3.500m

Nahversorgung
Supermarkt <250m
Bäckerei <250m
Einkaufszentrum <750m

Sonstige
Geldautomat <500m
Bank <500m
Post <750m
Polizei <750m

Verkehr
Bus <250m
Straßenbahn <750m
Autobahnanschluss <1.500m
Bahnhof <500m
Flughafen <5.750m

Angaben Entfernung Luftlinie / Quelle: OpenStreetMap

Eckdaten Objektnr. 293432

Art: Wohnung - Erdgeschoß
Land: Österreich
Zustand: Erstbezug
Alter: Neubau
Kaufpreis: 399.900,00
Provision: Provision bezahlt der Abgeber.
Wohnfläche: 83,42 m²
Zimmer: 4
Bäder: 1
WC: 2
Balkone: 1
Terrassen: 1
Stellplätze: 1
Garten: 111,84 m²
Keller: 2,00 m²
Heizwärmebedarf:  B  35,80 kWh/m²a
fGEE:  A+  0,75
Immobilie merken Exposé

Ausstattung

Fußbodenheizung, Personenaufzug, Kabel/Satelliten-TV, Parkplatz


Immobilie anfragen


Ihre persönliche Beratung

Schantl ITH Immobilientreuhand GmbH

Jacqueline Fellner, MBA

Schantl ITH Immobilientreuhand GmbH

T +43 664 5411047

H +43 650 5159115