Einzigartige Maisonette-Wohnung in Gmunden – Lebensqualität auf zwei Ebenen am Traunsee

Wohnung - Dachgeschoß, 4810 Gmunden


Diese Maisonette-Wohnung am Kapellenweg 5 befindet sich in einer ruhigen und sehr beliebten Wohngegend von Gmunden. Die gepflegte, grüne Umgebung bietet Ruhe und Privatsphäre und schafft ein einzigartiges Wohngefühl auf zwei Ebenen. Das Stadtzentrum von Gmunden ist in nur wenigen Minuten erreichbar und bietet eine ausgezeichnete Infrastruktur, gehobene Gastronomie sowie ein vielfältiges Kultur- und Freizeitangebot. Auch der Traunsee mit seinen Promenaden, Badeplätzen und exklusiven Freizeitmöglichkeiten liegt in komfortabler Nähe und unterstreicht den besonderen Reiz dieser Lage. Dank der sehr guten Verkehrsanbindung sind öffentliche Verkehrsmittel, der Bahnhof sowie die Autobahn A1 Richtung Linz und Salzburg rasch erreichbar. Kapellenweg 5 steht damit für stilvolles Wohnen in einer der schönsten Regionen des Salzkammerguts – ruhig, hochwertig und mit außergewöhnlicher Lebensqualität.

Beschreibung der Immobilie

Einzigartige Maisonette-Wohnung in Gmunden – Lebensqualität auf zwei Ebenen am Traunsee

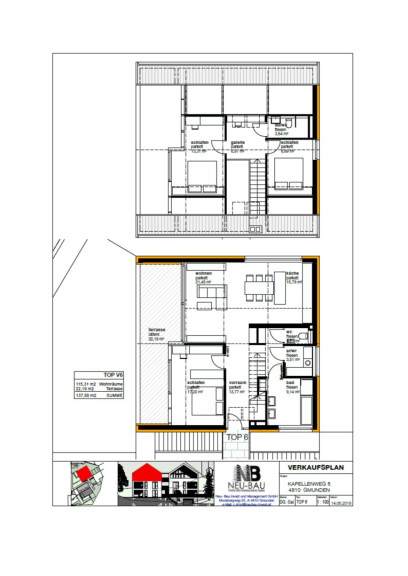
Diese außergewöhnliche Maisonette-Wohnung am Kapellenweg 5 in Gmunden ist ein Zuhause, das zum Wohlfühlen einlädt. Die großzügige Wohnfläche von 115,31 m², welche sich auf zwei Ebenen entfaltet, verbindet Privatsphäre und stilvolle Eleganz. 



Bereits beim Eintreten spürt man die hochwertige Ausführung und die durchdachte Architektur. Lichtdurchflutete Räume und hochwertige Materialien schaffen ein Gefühl von Ruhe, das gleichzeitig modern und einladend wirkt. Ein besonderes Highlight ist dabei die ca. 38m² große Wohnküche – perfekt, um gemeinsam zu kochen, Zeit mit Familie und Freunden zu verbringen und gemütliche Abende zu genießen.



Ein weiteres Merkmal dieser Wohnung ist die traumhafte sonnige Terrasse mit ca. 22m², welche Ihnen einen atemberaubenden Ausblick über die Stadt und die umliegende grüne Landschaft bietet. Auch die stockwerkübergreifenden Fensterflächen öffnen Ihnen den Blick ins Grüne und holen die ruhige Umgebung direkt in Ihr neues Zuhause. 



Erleben Sie das Leben in Gmunden, einer Stadt, die mit ihrer traumhaften Lage am Traunsee und der beeindruckenden Bergkulisse begeistert. Genießen Sie die vielfältigen Freizeitmöglichkeiten, die Ihnen die Umgebung bietet, sei es beim Wandern, Radfahren oder Wassersport.





WEITERE HINWEISE:



Diese Immobilie enthält zwei Tiefgaragenstellplätze, die Sie um einen Preis von 29.900€ pro Stellplatz erwerben können.



Bei der Firma Neubau Invest und Management GmbH handelt es sich um kein Maklerunternehmen. Sie ist Eigentümerin der Wohnung und direkte Verkäuferin; daher gibt es KEINE PROVISIONSGEBÜHR.

Infrastruktur / Entfernungen

Gesundheit
Arzt <500m
Apotheke <1.000m
Krankenhaus <1.500m
Klinik <2.000m

Kinder & Schulen
Schule <500m
Kindergarten <500m

Nahversorgung
Supermarkt <500m
Bäckerei <500m
Einkaufszentrum <1.000m

Sonstige
Bank <500m
Geldautomat <1.000m
Post <500m
Polizei <1.000m

Verkehr
Bus <500m
Straßenbahn <1.000m
Bahnhof <1.000m
Autobahnanschluss <6.000m
Flughafen <6.500m

Angaben Entfernung Luftlinie / Quelle: OpenStreetMap

Eckdaten Objektnr. 1942/57

Art: Wohnung - Dachgeschoß
Land: Österreich
Baujahr: 2020
Zustand: Neuwertig
Alter: Neubau
Kaufpreis: 695.000,00
Wohnfläche: 115,31 m²
Zimmer: 4,50
Bäder: 2
WC: 2
Terrassen: 1
Keller: 8,28 m²
Heizwärmebedarf:  B  43,00 kWh/m²a
fGEE:  A  0,79
Immobilie merken Exposé

Ausstattung

Parkett, Fliesen, Gas, Solarenergie, Zentralheizung, Einbauküche, Wohnküche / offene Küche, Personenaufzug, Westbalkon, Bad mit Fenster, Badewanne, Dusche, Kabel/Satelliten-TV, DV-Verkabelung, Tiefgarage


Immobilie anfragen


Ihre persönliche Beratung

Neubau Invest und Management GmbH

Neubau Invest & Management GmbH

Neubau Invest und Management GmbH

T +436769001575

H +43 (0) 7612 / 23 501