Hof- und westseitige 2-Zimmer-Wohnung im 4. Liftstock zw. Augarten und U6 Jägerstraße

Wohnung - Etage, 1200 Wien , Jägerstraße


Walleinsteinplatz, Augarten, U6 Jägerstraße

Beschreibung der Immobilie

Hof- und westseitige 2-Zimmer-Wohnung im 4. Liftstock zw. Augarten und U6 Jägerstraße

Zum Verkauf gelangt diese gepflegte 2-Zimmer-Wohnung im 4. Liftstock!





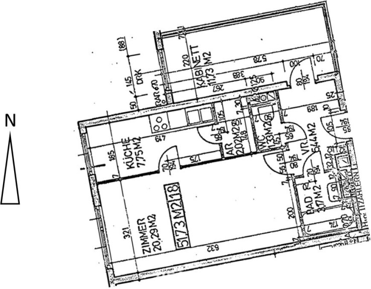
Aus dem Vorraum gelangen Sie in das hof- und westseitige, ca. 20 m² große Wohnzimmer, das ca. 12 m² große Schlafzimmer, das Bad mit Badewanne und das separate WC.

Die separate Küche mit Fenster (ca. 8 m²) können Sie vom dem Wohnzimmer aus betreten.

Bei der Küche gibt es auch noch einen Abstellraum mit Waschmaschinenanschluss.





Wohnungs- und Lage-Highlights
Wohnung komplett hof- und westseitig

separate Küche mit Fenster

THEWOSAN-Sanierung ca. 2020



U6 Jägerstraße wenige Gehminuten entfernt

Straßenbahnlinien 5, 12 quasi vor der Haustüre (Richtung U4 Friedensbrücke oder U6 Jägerstraße)

Wallensteinplatz quasi vor der Haustüre

Hannovermarkt quasi vor der Haustüre

Augarten wenige Gehminuten entfernt

Millenium City/Handelskai nur zwei U6-Stationen entfernt





Monatliche Kosten (Stand 1.1.2026)
Rep.-Rücklage EUR 59,37

BK inkl. Verwaltung EUR 130,12

Lift EUR 16,71

Warmwasser EUR 17,81

Heizkosten EUR 45,34

Gesamtvorschreibung EUR 269,35
 






Der Vermittler ist als Doppelmakler tätig.

Infrastruktur / Entfernungen

Gesundheit
Arzt <250m
Apotheke <250m
Klinik <1.000m
Krankenhaus <1.250m

Kinder & Schulen
Schule <500m
Kindergarten <250m
Universität <1.000m
Höhere Schule <1.000m

Nahversorgung
Supermarkt <250m
Bäckerei <250m
Einkaufszentrum <1.000m

Sonstige
Geldautomat <250m
Bank <250m
Post <250m
Polizei <500m

Verkehr
Bus <250m
U-Bahn <500m
Straßenbahn <250m
Bahnhof <500m
Autobahnanschluss <1.250m

Angaben Entfernung Luftlinie / Quelle: OpenStreetMap

Eckdaten Objektnr. 1619/8118

Art: Wohnung - Etage
Land: Österreich
Baujahr: 1978
Zustand: Gepflegt
Kaufpreis: 230.000,00
Provision: 3% des Kaufpreises zzgl. 20% USt.
Betriebskosten: 85,97 €
Heizkosten: 53,97 €
MwSt Gesamt: 22,53 €
Wohnfläche: 52,00 m²
Zimmer: 2
Bäder: 1
WC: 1
Keller: 2,30 m²
Heizwärmebedarf:  B  25,61 kWh/m²a
fGEE:  C  1,20
Immobilie merken Exposé

Ausstattung

Gas, Zentralheizung, Personenaufzug, Badewanne


Immobilie anfragen


Ihre persönliche Beratung

Florian Mattersberger (Team Hubert Koller)

RE/MAX Real Experts Immobilien lifetime GmbH

H +43 (0)660 470 25 31