3-Zimmer-Wohnung mit Loggia bester Ruhe-/Grünlage von Enns – Haydnstraße 18 | 3. Stock mit Lift | ab 01.04.2026

Wohnung , 4470 Enns , Haydn-Straße 18


Die Wohnung befindet sich in 4470 Enns/Kristein, Haydnstraße 16 in einem ruhigen Wohnumfeld. Die Lage bietet eine sehr gute Grundversorgung (Einkaufen - Billa Plus, Schulen, Ärzte, Restaurants, Zentrum, Freizeitmöglichkeiten...) sowie eine solide Verkehrsanbindung – sowohl innerhalb der Stadt als auch Richtung Linz und in die umliegenden Gemeinden. Die Lage in Kristein kombiniert angenehmes ruhiges Wohnen im Grünen, mit guter Erreichbarkeit der Infrastruktur in Enns.

Beschreibung der Immobilie

3-Zimmer-Wohnung mit Loggia bester Ruhe-/Grünlage von Enns – Haydnstraße 18 | 3. Stock mit Lift | ab 01.04.2026

3-Zimmer-Mietwohnung mit Loggia in Enns – Haydnstraße 18 | 3. Stock mit Lift | ab 01.04.2026



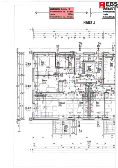
Zur Vermietung steht eine großzügige 3-Zimmer-Wohnung in Enns (Haydnstraße 18). Die Wohnung liegt im 3. Stock mit Lift und bietet mit der Loggia (6,95 m²) einen angenehmen Freiraum.

Die Bruttomiete ist All-in und beinhaltet Betriebskosten, Warmwasser, Heizung sowie Steuern. Ein Stellplatz kann zusätzlich um € 22,44 angemietet werden. Bezug ab 01.04.2026





Raumaufteilung & Highlights



Raumaufteilung



  • Vorraum/Diele
  • Wohnraum
  • Küche separat
  • 2 Schlafzimmer
  • Bad
  • WC separat
  • Abstellraum
  • Loggia: 6,95 m²


Highlights



  • 3-Zimmer-Wohnung im 3. Stock mit Lift
  • Wohnnutzfläche 86,78 m² + Loggia 6,95 m² (gesamt 93,73 m²)
  • Bezug ab 01.04.2026
  • All-in-Bruttomiete € 989,69 (inkl. BK, Warmwasser, Heizung, Steuern)
  • Stellplatz optional € 22,44 (Gesamt: € 1.012,13)
  • Fernwärme
  • Energiekennzahlen (Gebäude): HWB 35,9 kWh/m²a, fGEE 1,46


Mietkonditionen



· Miete Wohnung (brutto / All-in): € 989,69 / Monat
inkl. Betriebskosten, Warmwasser, Heizung und Steuern



· Stellplatzmiete: € 22,44 / Monat



· Kaution: € 4.048,52



· Mietdauer: unbefristet





Verfügbarkeit



Die Wohnung steht ab 1.4.26 zur Verfügung.



Sie sind an weiteren Wohnungsangeboten interessiert?

Ein vielfältiges Angebot finden Sie auf unserer EBS Website.

Zur EBS Immobiliensuche: EBS Wohnungsanlagen Gesellschaft m.b.H - EBS (ebs-linz.at)
Zur EBS Wohnungsanmeldung: Wohnungsanmeldung - EBS (ebs-linz.at)

Gerne beraten wir Sie persönlich über unser vielfältiges Angebot, rufen Sie uns einfach an! Und das natürlich ohne Vermittlungsgebühren und provisionsfrei!

Angaben sind ohne Gewähr auf Richtigkeit und Vollständigkeit. Druckfehler vorbehalten!

Infrastruktur / Entfernungen

Gesundheit
Arzt <800m
Apotheke <1.225m
Klinik <1.225m

Kinder & Schulen
Schule <1.100m
Kindergarten <775m

Nahversorgung
Supermarkt <350m
Bäckerei <900m
Einkaufszentrum <500m

Sonstige
Bank <825m
Geldautomat <825m
Post <875m
Polizei <1.200m

Verkehr
Bus <325m
Bahnhof <1.050m
Autobahnanschluss <875m
Straßenbahn <8.925m

Angaben Entfernung Luftlinie / Quelle: OpenStreetMap

Eckdaten Objektnr. 7062/509

Art: Wohnung
Land: Österreich
Zustand: Gepflegt
Gesamtmiete: 989,50
Kaltmiete (netto): 541,07 €
Kaltmiete: 777,86 €
Betriebskosten: 236,79 €
Heizkosten: 114,74 €
MwSt Gesamt: 96,90 €
Wohnfläche: 94,00 m²
Zimmer: 3,50
Bäder: 1
WC: 1
Stellplätze: 1
Heizwärmebedarf:  B  35,90 kWh/m²a
fGEE:  C  1,46
Immobilie merken Exposé

Ausstattung

Fliesen, Parkett, Zentralheizung, Personenaufzug, Bad mit Fenster, Badewanne, Kabel/Satelliten-TV, Parkplatz, Wasch/Trockenraum


Immobilie anfragen


Ihre persönliche Beratung

Team Vermietung & Verkauf EBS

EBS Wohnungsgesellschaft mbH Linz

T +43 50 338 6016