Schöne 3 Zimmerwohnung mit Küche - WG geeignet

Wohnung , 4040 Linz , Freistädter Straße 123


Beschreibung der Immobilie

Schöne 3 Zimmerwohnung mit Küche - WG geeignet

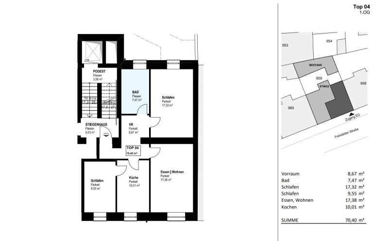
Diese attraktive 3-Zimmer-Wohnung befindet sich in der sanierten Wohnhausanlage in der Freistädterstraße 123 in Linz-Urfahr. Der Standort zeichnet sich durch seine tolle Anbindung an das öffentliche Verkehrsnetz wie auch an den Individualverkehr aus. Die Wohnung mit einer Wohnfläche von ca. 70,4 m² befindet sich im 1.OG und wurde 2024 saniert (Zweitbezug nach Sanierung). Die Wohnung ist mit Parkettboden und Fliesenbelag sowie einer nagelneuen Tischlerküche ausgestattet. Beheizt wird die Wohnung über die 2019 neu eingeleitete Fernwärmeheizung.



Die Wohnfläche von ca. 70,40 m² teilen sich wie folgt auf:



  • Wohnzimmer ~ 17,38 m²
  • Küche ~ 10,01 m²
  • Schlafzimmer ~ 17,32 m²
  • Schlafzimmer ~ 9,55 m²
  • Bad mit Dusche und WC ~ 7,47 m²
  • Vorraum ~ 8,67 m²


Darüber hinaus ist der Wohnung natürlich ein Kellerabteil zugeordnet.



Verfügbarkeit der Wohnung: ab 01.03.2026

Vertragsdauer befristet auf 4 Jahre (beinhaltet Mindestmietdauer v. 12 Monate)



Die Strom- und Heizkosten werden direkt vom Versorgungsunternehmen vorgeschrieben und abgerechnet und sind in der angeführten Gesamtmiete in Höhe von € 999,00 noch nicht enthalten!.





ACHTUNG: Es ist zwingend erforderlich das zumindest ein Mieter Hauptwohnsitz anmeldet!





Bei Interesse freuen wir uns auf Ihre Anfrage. Ihr SPERER Immobilien Team 

Stefan Pichler | 0676 4630535 | s.pichler@sperer-group.com


Wir weisen darauf hin, dass zwischen dem Vermittler und dem zu vermittelnden Dritten ein wirtschaftliches Naheverhältnis mit gesellschaftlicher Verflechtung besteht.


Der Immobilienmakler erklärt, dass er – entgegen dem in der Immobilienwirtschaft üblichen Geschäftsgebrauch des Doppelmaklers – einseitig nur für den Vermieter tätig ist.

Infrastruktur / Entfernungen

Gesundheit
Arzt <325m
Apotheke <300m
Klinik <1.675m
Krankenhaus <1.900m

Kinder & Schulen
Kindergarten <200m
Schule <275m
Universität <1.125m
Höhere Schule <1.650m

Nahversorgung
Supermarkt <250m
Bäckerei <325m
Einkaufszentrum <300m

Sonstige
Bank <275m
Geldautomat <275m
Post <1.075m
Polizei <1.475m

Verkehr
Bus <100m
Straßenbahn <300m
Bahnhof <375m
Autobahnanschluss <400m
Flughafen <4.125m

Angaben Entfernung Luftlinie / Quelle: OpenStreetMap

Eckdaten Objektnr. 452

Art: Wohnung
Land: Österreich
Alter: Altbau
Gesamtmiete: 999,00
Kaltmiete (netto): 766,81 €
Kaltmiete: 908,18 €
Provision: Gemäß Erstauftraggeberprinzip bezahlt der Abgeber die Provision.
Betriebskosten: 141,37 €
MwSt Gesamt: 90,82 €
Wohnfläche: 70,40 m²
Zimmer: 3
Bäder: 1
Heizwärmebedarf:  B  31,00 kWh/m²a
fGEE:  B  0,84
Immobilie merken Exposé

Ausstattung

Parkett, Fernwärme, Wohnküche / offene Küche, Dusche


Immobilie anfragen


Ihre persönliche Beratung

SPERER Immobilien GmbH

Ing. Stefan Pichler

Axia Immobilien GmbH - TESTACCOUNT

T +43 7242 306030

H +43 676 4630535