Großzügige Wohnung in Toplage DOMMAYERGASSE – inkl. Balkon mit Grünblick | ZELLMANN IMMOBILIEN

Wohnung , 1130 Wien , Dommayergasse


Die Wohnung befindet sich in einer absolut begehrten Hietzinger Lage mit hervorragender öffentlicher Verkehrsanbindung. Die U4-Station Hietzing sowie die Straßenbahnlinien 10, 52 und 60 sind in wenigen Minuten zu Fuß erreichbar und bieten eine schnelle, komfortable Anbindung in die Innenstadt und umliegende Bezirke. Zahlreiche Nahversorger, Supermärkte, Boutiquen sowie charmante Cafés liegen ebenfalls fußläufig, was den Alltag besonders angenehm gestaltet. Auch für Familien ist die Lage ideal: Kindergarten, Volksschule und Gymnasien befinden sich in unmittelbarer Nähe und sind bequem zu Fuß erreichbar. Diese Umgebung vereint urbanen Komfort mit der typisch entspannten Hietzinger Wohnatmosphäre – perfekt für alle, die Wert auf Lebensqualität legen.

Beschreibung der Immobilie

Großzügige Wohnung in Toplage DOMMAYERGASSE – inkl. Balkon mit Grünblick | ZELLMANN IMMOBILIEN

Zur Vermietung gelangt diese charmante, großzügige Wohnung in absoluter Hietzinger Bestlage – eine der begehrtesten Wohngegenden Wiens.



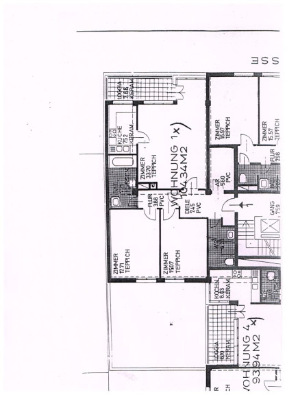
Die Wohnung überzeugt durch ihre durchdachte Raumaufteilung, hochwertige Ausstattung und ein außergewöhnlich angenehmes Wohnambiente. Besonders hervorzuheben ist der Balkon mit herrlichem Grünblick, der eine absolute Ruhelage bietet – eine wahre Besonderheit im beliebten 13. Bezirk. Der Wohn- und Essbereich sowie der Balkon sind in Richtung einer ruhigen Sackgasse ausgerichtet und schenken ein einzigartig entspanntes Wohngefühl.




Aufteilung & Highlights




  • einladendes, großzügiges Vorzimmer



  • zwei Badezimmer – eines mit Dusche, eines mit Badewanne, beide mit WC



  • separate Gästetoilette



  • großer Abstellraum, ideal auch als Homeoffice nutzbar



  • zwei ruhige Schlafzimmer mit Blick auf ein begrüntes Dach



  • offene Küche mit sehr großem Wohn- und Essbereich sowie direktem Zugang zum Balkon mit Grünblick



  • Klimaanlage



  • Sicherheitstüre und Sicherheitsschloss



  • Garagenplatz optional um € 180 / Monat anmietbar



  • Warmwasser- und Heizkostenakonto: € 140 / Monat




Ausstattung – ergänzende Informationen



(ohne zu sehr in den Vordergrund gestellt zu werden, aber als klare Qualitätsmerkmale)




  • gesamte Elektrik 2021 erneuert, positiver Elektrobefund vorhanden



  • alle Böden 2021 neu verlegt (Vinyl)



  • Einbauküche



  • Einbaumöbel in den Badezimmern



  • Personenaufzug





Lage – Hietzing von seiner schönsten Seite



Die Wohnung befindet sich in einer sensationellen, äußerst begehrten Hietzinger Lage, nur wenige Schritte vom traditionsreichen Café Dommayer und der U4-Station Hietzing entfernt.

Auch das Schloss Schönbrunn samt Parkanlage ist in nur 850 m erreichbar – ein absoluter Premiumvorteil dieser Wohnlage.



Die Umgebung bietet eine exklusive Mischung aus urbanem Komfort und entspannter Wohnatmosphäre. In unmittelbarer Nähe befinden sich:




  • zahlreiche Boutiquen und Geschäfte



  • Supermärkte in kurzer Gehentfernung



  • renommierte Restaurants, Bars und charmante Cafés



  • hervorragende öffentliche Verkehrsanbindung:

    • U4 Hietzing

    • Straßenbahnlinien 10, 52 und 60




Entfernungen im Überblick




  • Einkaufszentrum: 350 m



  • Kindergarten: 350 m



  • Volksschule: 400 m



  • Gymnasien: 850 m



  • Schönbrunn (Hietzinger Tor): 850 m




Diese Toplage verbindet stilvolles Wohnen, perfekte Infrastruktur und angenehme Ruhe – das ideale Zuhause für alle, die Wert auf Lebensqualität legen.




Interesse geweckt?



Wir freuen uns über Ihre Anfrage über dieses Webportal. Gerne senden wir Ihnen daraufhin sämtliche Unterlagen und weitere Informationen zur Wohnung zu.



WICHTIG:
Da E-Mails leider manchmal im SPAM- oder WERBE-Ordner landen, ersuchen wir Sie, diese zu kontrollieren. Wir antworten in der Regel binnen weniger Stunden – auch am Wochenende!

Bitte teilen Sie uns auch Ihre Telefonnummer mit, da wir Sie per SMS über die Versendung des Exposés informieren können.



Dieses Objekt wird Ihnen unverbindlich und freibleibend zur Miete angeboten. Oben angeführte Angaben basieren auf Informationen und Unterlagen des Eigentümers und sind unsererseits ohne Gewähr.

Noch nichts gefunden? Wir informieren Sie über geeignete Immobilienangebote noch vor allen anderen.
Legen Sie jetzt Ihren individuellen Suchagenten unter folgendem Link an. Wir schicken Ihnen passende Immobilien exklusiv vorab zu. 



-> Suchagent anlegen


Hinweis gemäß Energieausweisvorlagegesetz: Ein Energieausweis wurde vom Eigentümer bzw. Verkäufer, nach unserer Aufklärung über die generell geltende Vorlagepflicht, sowie Aufforderung zu seiner Erstellung noch nicht vorgelegt. Daher gilt zumindest eine dem Alter und der Art des Gebäudes entsprechende Gesamtenergieeffizienz als vereinbart. Wir übernehmen keinerlei Gewähr oder Haftung für die tatsächliche Energieeffizienz der angebotenen Immobilie.


Der Immobilienmakler erklärt, dass er – entgegen dem in der Immobilienwirtschaft üblichen Geschäftsgebrauch des Doppelmaklers – einseitig nur für den Vermieter tätig ist.

Infrastruktur / Entfernungen

Gesundheit
Arzt <250m
Apotheke <250m
Klinik <250m
Krankenhaus <1.500m

Kinder & Schulen
Schule <500m
Kindergarten <750m
Universität <1.250m
Höhere Schule <2.750m

Nahversorgung
Supermarkt <250m
Bäckerei <250m
Einkaufszentrum <2.000m

Sonstige
Geldautomat <250m
Bank <250m
Post <500m
Polizei <500m

Verkehr
Bus <250m
U-Bahn <250m
Straßenbahn <250m
Bahnhof <500m
Autobahnanschluss <3.750m

Angaben Entfernung Luftlinie / Quelle: OpenStreetMap

Eckdaten Objektnr. 25298

Art: Wohnung
Land: Österreich
Baujahr: 1980
Zustand: Gepflegt
Alter: Neubau
Gesamtmiete: 1.770,00
Kaltmiete (netto): 1.428,84 €
Kaltmiete: 1.739,78 €
Provision: Gemäß Erstauftraggeberprinzip bezahlt der Abgeber die Provision.
Betriebskosten: 263,70 €
MwSt Gesamt: 30,22 €
Wohnfläche: 104,00 m²
Nutzfläche: 108,00 m²
Zimmer: 3,50
Bäder: 2
WC: 2
Keller: 4,00 m²
Immobilie merken Exposé

Ausstattung

Fliesen, Laminatboden, Parkett, Zentralheizung, Wohnküche / offene Küche, Personenaufzug, Südbalkon, Badewanne, Dusche, Kabel/Satelliten-TV, Parkplatz(Duplex), Alarmanlage


Immobilie anfragen


Ihre persönliche Beratung

ZELLMANN IMMOBILIEN GmbH | Vertrauen. Service. Qualität.

Nicole Zellmann

ZELLMANN IMMOBILIEN

T +43 699 15 15 22 01

H +43 699 15 15 22 01