Attraktive Bürofläche | 5 Räume | 2 Eingänge

Büro / Praxis , 1030 Wien


- Bayerngasse - Modenapark - Nähe Stadtpark (U4, Straßenbahnlinien 2, 71, D und Buslinie 4A)

Beschreibung der Immobilie

Attraktive Bürofläche | 5 Räume | 2 Eingänge

Sehr geehrte Damen und Herren,





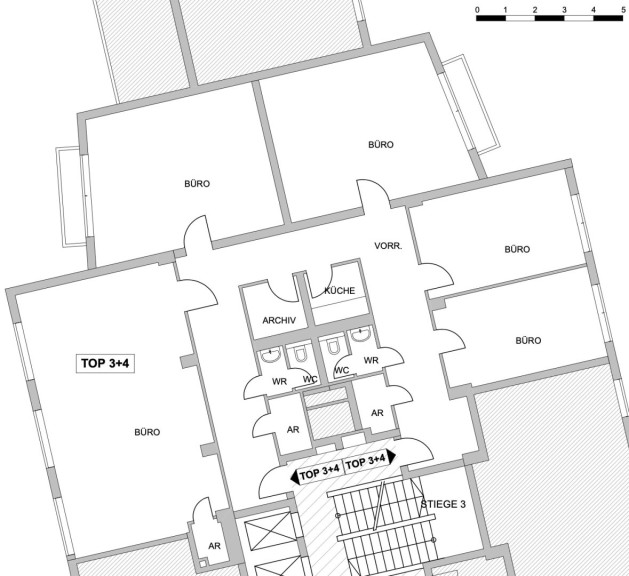
das hier zu anzumietende Büro verfügt über ca. 203m2 Fläche und befindet sich im Botschaftsviertel des 3. Bezirks.



Das Büro ist sehr gut öffentlich erreichbar. In der Nähe befindet sich ein Supermarkt.



Die Wiener Innenstadt ist ebenso fußläufig erreichbar.




Raumaufteilung:



  • Vorraum
  • 2 Eingangstüren
  • 5 Büroräume
  • Teeküche
  • getrennte Toiletten
  • Serverraum
  • 3 Abstellräume



Kosteninformationen:



Miete: 12,00 EUR /m2 / Monat netto

Betriebskosten: 3,24 EUR / m2 / Monat netto

Gesamtmiete (exkl. MWSt): 3.088,57 EUR
Gesamtmiete Brutto: 3.706,28 EUR





Für die Heizung fallen aktuell monatliche Akontokosten in der Höhe von 0,81 € /m2 an.



Kontaktieren Sie uns jederzeit für nähere Informationen oder einen Besichtigungstermin(gerne auch spät abends oder am Wochenende).



Ich freue mich auf Ihre Nachricht!


Wir weisen darauf hin, dass zwischen dem Vermittler und dem zu vermittelnden Dritten ein familiäres oder wirtschaftliches Naheverhältnis besteht.


Der Vermittler ist als Doppelmakler tätig.

Infrastruktur / Entfernungen

Gesundheit
Arzt <500m
Apotheke <500m
Klinik <500m
Krankenhaus <1.000m

Kinder & Schulen
Schule <500m
Kindergarten <500m
Universität <500m
Höhere Schule <1.000m

Nahversorgung
Supermarkt <500m
Bäckerei <500m
Einkaufszentrum <1.000m

Sonstige
Geldautomat <500m
Bank <500m
Post <500m
Polizei <500m

Verkehr
Bus <500m
U-Bahn <500m
Straßenbahn <500m
Bahnhof <500m
Autobahnanschluss <2.500m

Angaben Entfernung Luftlinie / Quelle: OpenStreetMap

Eckdaten Objektnr. 271545022

Art: Büro / Praxis
Land: Österreich
Kaltmiete (netto): 2.432,28 €
Kaltmiete: 3.088,56 €
Betriebskosten: 656,28 €
MwSt Gesamt: 617,72 €
Nutzfläche: 202,69 m²
Zimmer: 5
WC: 2
Heizwärmebedarf:  B  48,30 kWh/m²a
fGEE:  C  1,54
Immobilie merken Exposé

Ausstattung

Fliesen, Parkett, Fernwärme, Personenaufzug, Teeküche


Immobilie anfragen


Ihre persönliche Beratung

Immobiliaris GmbH

Mag. Lukas Suk

Immobiliaris GmbH

T +43 676 7304391