++NEU++ Sanierungsbedürftige 4-Zimmer Altbauwohnung mit Terrasse in fantastischer Lage!

Wohnung , 1200 Wien


Universumstraße

Beschreibung der Immobilie

++NEU++ Sanierungsbedürftige 4-Zimmer Altbauwohnung mit Terrasse in fantastischer Lage!

4-Zimmer-Altbauwohnung in 1200 Wien



Ca. 88 m² | Sanierungsbedürftig | EUR 499.000,-




Besichtigungstermin



Bitte senden Sie uns jedenfalls eine schriftliche Anfrage zur Vereinbarung eines Besichtigungstermins.
Wir antworten verlässlich am selben Tag!




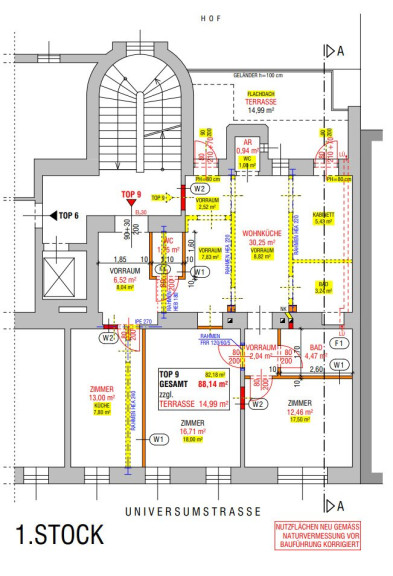
Raumaufteilung – Top 09 | 1. Obergeschoss




  • Vorraum



  • Küche



  • Vorzimmer



  • Badezimmer



  • Zimmer



  • Zimmer



  • Kabinett



  • Terrasse




(siehe Grundrissplan und Fotos)




Ausstattung



Die Wohnung ist sanierungsbedürftig und wird im aktuellen Zustand verkauft – wie sie liegt und steht.




Zustand des Hauses / Allgemeinflächen



Vor wenigen Jahren wurde im Haus das Dachgeschoss ausgebaut. In diesem Zuge wurde ein Aufzug eingebaut sowie die Fassade und das Stiegenhaus saniert.




Lage & Infrastruktur – Universumstraße, 1200 Wien



Der 20. Bezirk gilt als aufstrebend und zugleich noch leistbar – ideal für Eigennutzer oder Anleger.



Öffentliche Verkehrsanbindung:




  • U6 – Station Dresdner Straße (nur wenige Gehminuten)



  • Straßenbahnen: Linie 2 & 31



  • Bus: Linie 11A



  • Mit dem Auto: gute Anbindung über Handelskai und Dresdner Straße




Nahversorgung & Freizeit:




  • Zahlreiche Geschäfte des täglichen Bedarfs, Restaurants, Banken und Ärzte in der Umgebung



  • Donauufer mit Naherholungsgebiet fußläufig erreichbar



  • Millennium City in Gehdistanz



  • Nähe zur FH Technikum Wien – attraktiv auch für StudentInnen







Kaufpreis



EUR 499.000,- lastenfrei



RRL-Guthaben per 11.03.2025: € 16.777,20.





Vertragserrichter



Mag. Markus Wieneroiter
Kosten: 1,5 % des Kaufpreises + Barauslagen + 20 % USt





Sollten Sie Fragen haben oder einen persönlichen Gesprächstermin wünschen, zögern Sie bitte nicht mich zu kontaktieren.



Zur Vereinbarung eines Besichtigungstermins lassen Sie uns bitte jedenfalls eine E-Mailanfrage zukommen!



Bitte achten Sie darauf, dass Sie diese Immobilie, nach Ihrer Anfrage bei Adonia Immobilien, nicht auch bei einem anderen Immobilienmaklerbüro anfragen! Vielen Dank!



Vielen Dank an unsere Kunden! Unser Unternehmen wurde bereits zum Besten Start Up und erneut als Qualitätsmakler 2018 ausgezeichnet!



Wir weisen ausdrücklich auf unser wirtschaftliches Naheverhältnis mit dem Abgeber/ der Abgeberin hin!  Unsere gesetzlichen Pflichten als Doppelmakler werden dadurch jedoch nicht beeinträchtigt. Irrtum und Änderungen vorbehalten.



Alle hier veröffentlichen Informationen basieren auf den uns von dem Abgeber/ der Abgeberin zur Verfügung gestellten Informationen und wurden nicht selbst erhoben.



Der Schutz von personenbezogenen Daten ist uns wichtig und auch gesetzlich gefordert. Die Verarbeitung Ihrer personenbezogenen Daten erfolgt nach den datenschutzrechtlichen Bestimmungen. Auf unserer Homepage (unter Datenschutzinformation) finden Sie eine Übersicht die Sie über die wichtigsten Aspekte der Verarbeitung personenbezogener Daten informieren soll.


Wir weisen darauf hin, dass zwischen dem Vermittler und dem zu vermittelnden Dritten ein familiäres oder wirtschaftliches Naheverhältnis besteht.


Der Vermittler ist als Doppelmakler tätig.

Infrastruktur / Entfernungen

Gesundheit
Arzt <500m
Apotheke <500m
Klinik <500m
Krankenhaus <500m

Kinder & Schulen
Schule <1.000m
Kindergarten <500m
Universität <1.000m
Höhere Schule <1.500m

Nahversorgung
Supermarkt <500m
Bäckerei <500m
Einkaufszentrum <1.000m

Sonstige
Geldautomat <500m
Bank <500m
Post <500m
Polizei <500m

Verkehr
Bus <500m
U-Bahn <500m
Straßenbahn <500m
Bahnhof <500m
Autobahnanschluss <1.500m

Angaben Entfernung Luftlinie / Quelle: OpenStreetMap

Eckdaten Objektnr. 62754

Art: Wohnung
Land: Österreich
Zustand: Sanierungsbeduerftig
Alter: Altbau
Kaufpreis: 499.000,00
Provision: 3% des Kaufpreises zzgl. 20% USt.
Betriebskosten: 180,80 €
MwSt Gesamt: 20,31 €
Wohnfläche: 88,00 m²
Zimmer: 4
Bäder: 1
WC: 1
Terrassen: 1
Heizwärmebedarf: 30,00 kWh/m²a
fGEE: 0,91
Immobilie merken Exposé

Ausstattung

Fliesen, Parkett, Gas, Zentralheizung, Personenaufzug, Westbalkon


Immobilie anfragen


Ihre persönliche Beratung

Adonia Realitätenvermittlung GmbH

Luca Schelodetz

Adonia Immobilien GmbH

T 0664/910 15 40