Sanierte DG-Wohnung mit Balkon *Ruhelage und Ausblick* | nahe Rötzergasse

Wohnung , 1170 Wien


Elterleinplatz / Lidlpark

Beschreibung der Immobilie

Sanierte DG-Wohnung mit Balkon *Ruhelage und Ausblick* | nahe Rötzergasse

English Description Below



Helle, ruhige Dachgeschosswohnung mit hofseitigem Balkon


"Hofseitig" meint hier den Verband der Gärten umliegender Wohngebäude, somit eine große Fläche, die freien Blick gewährt und der Wohnung viel Privatsphäre ("kein Gegenüber") und Sonneneintrag belässt.

Selbst an trübenTagen sind ihre Wohnräume hell und freundlich, sonnige Tage genießen Sie am besten auf dem ca. 6m2-Balkon.

 



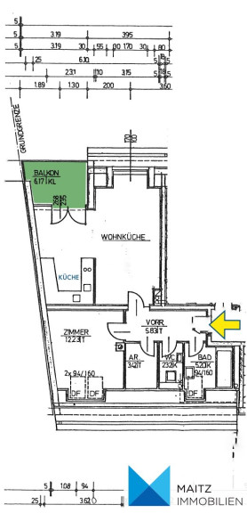
Der Grundriss erstreckt sich über rund 65m2 und umfasst:
* Vorzimmer 

* hofseitige Wohnküche mit Süd-Balkon

* Schlafzimmer mit Fernblick über die Gründe des Postsportvereins (ruhig)

* Badezimmer

* separate Toilette mit Handwaschbecken



Ausstattung:
+ neue, vollausgestatte Küche (auch alle Geräte nagelneu!)

+ neues Bad mit Wanne inkl. Duschverglasung und Waschmaschinenanschluss

+ Laminatböden

+ Wände frisch ausgemalt

* Regal im Wohnzimmer



Heizung/WW: Elektroheizung & -warmwasseraufbereitung



Ein trockenes Kellerabteil (ca. 1,5m2) wird zum Grabrauch überlassen.

Das Haus verfügt über einen Lift (barrierefrei).



Im Haus befinden sich auch eine Waschküche (Münzsystem) sowie ein Fahrradabstellraum.



Infrastruktur:
Merkur Markt und OBI-Baumarkt sind fußläufig binnen Kürze erreichbar. Die zahlreichen Geschäfte nahe Elterleinplatz sowie in Gersthof stehen Ihnen als Nahversorger bereit. Auch zum Türkenschanzpark ist es nicht allzu weit.



Öffentliche Verkehrsanbindung:
Straßenbahn 43 (Richtung U6-Alser Straße bzw. S-45 Hernals)

Autobuslinien 10A, 42A



Mietvertrag & Kosten:
Pauschalmietzins inkl. BK & USt.: €1.290,-; VPI-indexiert

Befristung: 5 Jahre (Verlängerung wird nicht zugesichert, aber in Aussicht gestellt)

Kaution: 3 Bruttomonatsmieten



Bitte informieren Sie im Rahmen der Anfrage uns über: 
+ Anzahl der Personen in Ihrem Haushalt

+ ab wann möchten Sie eine neue Wohnung beziehen? (wir suchen ehestmöglich)

+ ihren Beruf und das Haushaltsnettoeinkommen






Wir freuen uns auf Ihre schriftliche Anfrage und sind gerne auch an Wochenenden und Feiertagen für Sie erreichbar!




English



Bright, quiet attic apartment with a balcony facing the courtyard



“Courtyard-facing” here refers to the cluster of gardens surrounding the residential buildings, thus providing a large area with unobstructed views and leaving the apartment with plenty of privacy (“no buildings opposite”) and sunlight.

Even on cloudy days, your living spaces are bright and friendly, and sunny days are best enjoyed on the approx. 6m² balcony.




The floor plan covers around 65m² and includes:

* Anteroom

* Courtyard-facing kitchen with south-facing balcony

* Bedroom with distant view over the grounds of the Postsportverein (quiet)

* Bathroom

* Separate toilet with hand basin



Features:

+ New, fully equipped kitchen (all appliances brand new!)

+ New bathroom with bathtub, including shower enclosure and washing machine connection

+ Laminate flooring

+ Freshly painted walls

* Shelving in the living room



Heating/hot water: Electric heating & hot water



A dry basement compartment (approx. 1.5m2) is provided for storage.

The building has an elevator (barrier-free).



The building also has a laundry room (coin-operated) and a bicycle storage room.



Infrastructure:

Merkur Markt and OBI hardware store are within walking distance. The numerous shops near Elterleinplatz and in Gersthof are available for your local shopping needs. Türkenschanzpark is also not too far away.



Public transport connections:

Tram 43 (towards U6-Alser Straße or S-45 Hernals)

Bus lines 10A, 42A



Rental agreement & costs:

Flat-rate rent including utilities and VAT: €1,290

Term: 5 years (extension not guaranteed, but possible)

Deposit: 3 months' gross rent

 



Please include the following information in your inquiry: 



+ Number of people in your household

+ When would you like to move into a new apartment? (we are looking for the earliest possible date)

+ Your occupation and net household income



We look forward to receiving your written inquiry and are also available on weekends and public holidays!

Noch nichts gefunden? Wir informieren Sie über geeignete Immobilienangebote noch vor allen anderen.
Legen Sie jetzt Ihren individuellen Suchagenten unter folgendem Link an. Wir schicken Ihnen passende Immobilien exklusiv vorab zu.

Suchagent anlegen - https://maitz-immobilientreuhand.service.immo/registrieren/de


Der Immobilienmakler erklärt, dass er – entgegen dem in der Immobilienwirtschaft üblichen Geschäftsgebrauch des Doppelmaklers – einseitig nur für den Vermieter tätig ist.

Tipp: Jetzt auf www.immomarktplatz.at neue Angebote 24 Stunden früher finden!

Infrastruktur / Entfernungen

Gesundheit
Arzt <500m
Apotheke <500m
Klinik <500m
Krankenhaus <2.000m

Kinder & Schulen
Schule <500m
Kindergarten <500m
Universität <2.000m
Höhere Schule <1.000m

Nahversorgung
Supermarkt <500m
Bäckerei <500m
Einkaufszentrum <1.000m

Sonstige
Geldautomat <500m
Bank <500m
Post <500m
Polizei <500m

Verkehr
Bus <500m
U-Bahn <1.000m
Straßenbahn <500m
Bahnhof <1.000m
Autobahnanschluss <3.500m

Angaben Entfernung Luftlinie / Quelle: OpenStreetMap

Eckdaten Objektnr. 913

Art: Wohnung
Land: Österreich
Baujahr: 1987
Zustand: Gepflegt
Alter: Neubau
Gesamtmiete: 1.290,00
Kaltmiete (netto): 1.172,73 €
Kaltmiete: 1.172,73 €
Provision: Gemäß Erstauftraggeberprinzip bezahlt der Abgeber die Provision.
MwSt Gesamt: 117,27 €
Wohnfläche: 65,00 m²
Zimmer: 2
Bäder: 1
WC: 1
Balkone: 1
Heizwärmebedarf:  C  90,00 kWh/m²a
Immobilie merken Exposé

Ausstattung

Elektro, Etagenheizung, Wohnküche / offene Küche, Personenaufzug, Südbalkon, Bad mit Fenster, Badewanne


Immobilie anfragen


Ihre persönliche Beratung

MAITZ Immobilientreuhand e.U.

Mag. Dominik Maitz

MAITZ Immobilientreuhand e.U.

T +43 676 733 61 60

H +43 676 733 61 60