Einzigartiges Mehrfamilienhaus- 6 Wohnungen-zentrale Lagen

Haus - Mehrfamilienhaus, 3200 Ober-Grafendorf


Beschreibung der Immobilie

Einzigartiges Mehrfamilienhaus- 6 Wohnungen-zentrale Lagen

Einzigartiges Mehrfamilienhaus- 6 Wohnungen! 



Dieses charmante Mehrfamilienhaus in Ober-Grafendorf besticht durch seine zentrale Lage. Nur wenige Minuten vom Ortszentrum entfernt, genießen Sie die Nähe zu sämtlichen Annehmlichkeiten des täglichen Lebens.

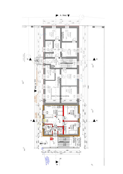
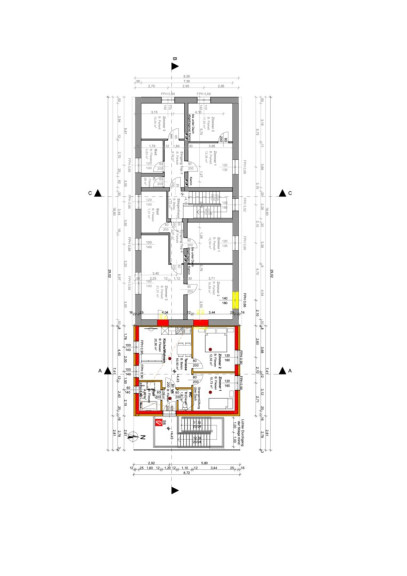
Das Mehrfamilienhaus teilt sich in 6 Wohneinheiten und befindet auf einem großen Grundstück von 1031 m2. 

Das ursprüngliche Haus wurde etwa 1930 erbaut und besteht aus 4 Wohnungen:



Wohnung 1: EG

45,16m2, wurde neu saniert

Vorraum

WC mit Lüftung

Badezimmer mit Dusche, Handwaschbecken, Waschmaschinenanschluss und Gastherme

Küche

Wohnzimmer und Schlafzimmer wurde ein neuer Eichenparkettboden verlegt

Fenster 2 fach verglast 

Jede Wohnung hat einen eigenen Gaszähler und Stromzähler

Der Anschluss für eine Luftwärmepumpe wurde vorbereitet



Wohnung 2: EG

58 m2, bis Ende Juni 2028 befristet vermietet

3- Zimmer, 1 Badezimmer mit WC, Vorraum, Fenster 2-fach verglast



Wohnung 3: 1OG

 48m2, bis 1.4.2027 befristet vermietet

3-Zimmer, Vorraum, WC, Badezimmer



Wohnung 4: 1 OG

61,89m2 

Vorraum

Badezimmer mit Eckbadewanne, WC, Gastherme

Große helle Wohn-Küche

2 getrennt begehbare Schlafzimmer

Raumthermostat



2022 wurde ein Zubau mit 2 Wohneinheiten eingereicht 



Wohnung EG-Neubau: 

51,87m2

Vorraum, WC extra

Badezimmer

20,90 m2 große Ess-Wohnzimmer mit Küche

2 getrennt begehbare Schlafzimmer 

3-fach verglaste Fenster

Heizung ist eine Luftwärmepumpe vorgesehen 

Der Innenausbau fehlt



Wohnung 1 OG-Neubau: 

52,77m2

Vorraum, WC extra

Badezimmer

20,90 m2 große Ess--Wohnzimmer mit Küche

2 getrennt begehbare Schlafzimmer 

3-fach verglaste Fenster

Heizung ist eine Luftwärmepumpe vorgesehen 

Der Innenausbau fehlt




Der Umstieg auf eine Luftwärmepumpe für alle Wohnungen ist vorgesehen und teilweise schon eingeleitet. Alle Wohnungen haben einen eigenen Strom und Gaszähler.

Es gibt eine betonierte Zufahrt in den Garten, weiteres wurde ein Abstellraum für jede Wohnung mit je 4 m2 und ein Gemeinschafts--Fahrradraum von 15,60m2 eingereicht und genehmigt, aber noch nicht errichtet.



Infrastruktur:



Apotheke, Schule, Kindergarten, Supermarkt und Bäckerei sind bequem fußläufig erreichbar. Auch Bank, Geldautomat, Polizei, Post sowie Bus- und Bahnanbindungen sind in der Umgebung, was die Mobilität und Lebensqualität erheblich steigert. Ein idealer Ort zum Wohnen!



In wenigen Autominuten sind sie in St. Pölten. 



Der Energieausweis bezieht sich auf die beiden neuen Wohnungen.



Wir weisen darauf hin, dass zum Abgeber ein familiäres Naheverhältnis besteht.


Wir weisen darauf hin, dass zwischen dem Vermittler und dem zu vermittelnden Dritten ein familiäres oder wirtschaftliches Naheverhältnis besteht.


Der Vermittler ist als Doppelmakler tätig.

Infrastruktur / Entfernungen

Gesundheit
Arzt <6.000m
Apotheke <500m
Klinik <8.000m
Krankenhaus <10.000m

Kinder & Schulen
Schule <500m
Kindergarten <500m
Universität <10.000m
Höhere Schule <7.500m

Nahversorgung
Supermarkt <500m
Bäckerei <500m
Einkaufszentrum <3.500m

Sonstige
Bank <500m
Geldautomat <500m
Post <500m
Polizei <500m

Verkehr
Bus <500m
Bahnhof <1.000m
Autobahnanschluss <3.500m
Flughafen <3.500m

Angaben Entfernung Luftlinie / Quelle: OpenStreetMap

Eckdaten Objektnr. 2147/39

Art: Haus - Mehrfamilienhaus
Land: Österreich
Kaufpreis: 660.000,00
Provision: 3% des Kaufpreises zzgl. 20% USt.
Wohnfläche: 318,00 m²
Grundstücksfl.: 1.031,00 m²
Zimmer: 18
Bäder: 6
WC: 6
Heizwärmebedarf: 43,20 kWh/m²a
fGEE: 0,71
Immobilie merken Exposé

Immobilie anfragen


Ihre persönliche Beratung

Martina Willmann Immobilien

Martina Willmann

Martina Willmann Immobilien

H +43 676 7277757