Helle 3-Zimmer-Wohnung zum Wohlfühlen in Lochau

Wohnung , 6911 Lochau , Hofriedenstraße


Beschreibung der Immobilie

Helle 3-Zimmer-Wohnung zum Wohlfühlen in Lochau

Zum Verkauf steht eine sehr schöne und helle 3-Zimmer-Wohnung mit einer Wohnfläche von ca. 80 m². Die Wohnung befindet sich im 3. Stock eines gepflegten Wohnhauses in unmittelbarer Nähe des Lochauer Dorfzentrums.



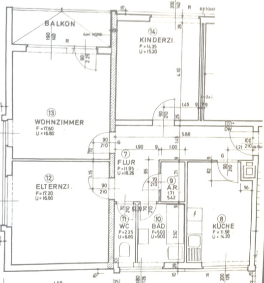
Der gut geschnittene Grundriss umfasst zwei große, helle Schlafzimmer sowie einen großzügigen Wohnbereich mit Zugang zur verglasten Loggia, die zusätzlichen Wohnkomfort bietet. Die Küche ist separat angelegt und bietet ausreichend Platz für einen Esstisch.



Bad und WC sind getrennt, das Badezimmer ist mit einer Dusche ausgestattet. Zusätzlich steht ein praktischer Abstellraum zur Verfügung. Bad und WC, die Küche sowie die Fußböden wurden vor ca. drei Jahren erneuert.



Parkplätze befinden sich direkt vor dem Haus. Die zentrale Lage überzeugt durch eine sehr gute Infrastruktur: Bushaltestellen sowie der Autobahnanschluss sind in unmittelbarer Nähe. Schulen, Kindergärten und diverse Einkaufsmöglichkeiten sind ebenfalls bequem erreichbar. 



Die Nähe zum Bodensee und Pfänder bietet vielfältige Möglichkeiten für Freizeit- und Erholungsaktivitäten. In weniger als 5 Minuten erreicht man mit dem Fahrrad das Bodenseeufer mit seinen zahlreichen Badestellen und Gastronomieangeboten.



Diese attraktive Wohnung mit durchdachter Raumaufteilung in gut angebundener Lage sucht neue Eigentümer - vereinbaren Sie gerne einen Besichtigungstermin.

 



Hinweise: Ein Personenaufzug ist nicht vorhanden. Dieses Exposé dient zur Vorabinformation. Alle Angaben nach bestem Wissen und Gewissen, jedoch ohne Gewähr. Tippfehler, Irrtum und Zwischenverkauf vorbehalten. Der Grundriss dient lediglich zur Darstellung der Raumaufteilung.


Der Vermittler ist als Doppelmakler tätig.

Infrastruktur / Entfernungen

Gesundheit
Arzt <500m
Apotheke <500m
Krankenhaus <250m
Klinik <3.500m

Kinder & Schulen
Schule <750m
Kindergarten <250m
Höhere Schule <750m
Universität <3.250m

Nahversorgung
Supermarkt <250m
Bäckerei <1.750m
Einkaufszentrum <3.250m

Sonstige
Bank <250m
Geldautomat <250m
Post <250m
Polizei <500m

Verkehr
Bus <250m
Autobahnanschluss <1.000m
Bahnhof <1.000m

Angaben Entfernung Luftlinie / Quelle: OpenStreetMap

Eckdaten Objektnr. 7763/347

Art: Wohnung
Land: Österreich
Baujahr: 1970
Kaufpreis: 390.000,00
Provision: 3% des Kaufpreises zzgl. 20% USt.
Betriebskosten: 325,53 €
Sonstige Kosten: 83,26 €
Wohnfläche: 79,19 m²
Zimmer: 3
Bäder: 1
WC: 1
Keller: 3,93 m²
Heizwärmebedarf:  B  32,00 kWh/m²a
fGEE:  B  0,90
Immobilie merken Exposé

Ausstattung

Gas, Zentralheizung, Einbauküche, Ostbalkon, Bad mit Fenster, Dusche


Immobilie anfragen


Ihre persönliche Beratung

SIMA Immobilien GmbH

Lisbeth Gschwendtner

SIMA Immobilien GmbH

T +43 676 6105116

H +43 676 6105116