Helle 4 Zimmer Wohnung mit Terrasse und Loggia am Hauptplatz von Korneuburg!
Wohnung
- Maisonette,
2100
Korneuburg
Zentrum Korneuburg
Beschreibung der Immobilie
Helle 4 Zimmer Wohnung mit Terrasse und Loggia am Hauptplatz von Korneuburg!
WUNDERSCHÖNE, HELLE WOHNUNG IM ZENTRUM von KORNEUBURG
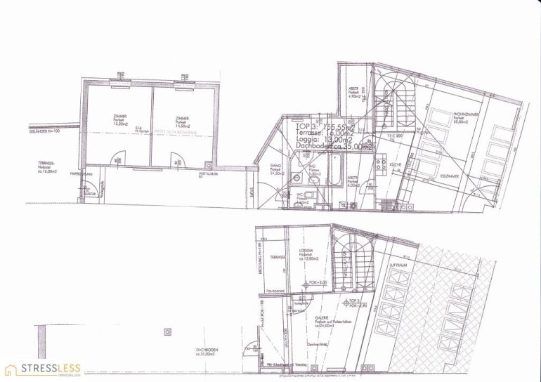
Diese absolut helle und eindrucksvolle ca. 170 m² große Mietwohnung befindet sich direkt im Zentrum von Korneuburg im 2.Stock (ohne Lift) und bietet Ihnen durch eine gelungene Raumaufteilung viel Platz für Sie und Ihre Familie.
Das Wohnzimmer besticht durch seine südseitige Ausrichtung mit Blick auf den Hauptplatz von Korneuburg. Die beiden Schlafzimmer (beide ca. 15 m² groß) sind durch einen Gang vom Wohnbereich getrennt und gehen in den absolut ruhigen Innenhof. Von hier aus begehbar ist auch eine ca. 16 m² große Terrasse mit Blick in den begrünten Innenhof.
Weiters befindet sich auf dieser Ebene ein großer Abstellraum (Garderobe), ein Badezimmer mit Badewanne, Handwaschbecken und Waschmaschinenanschluß, ein separates WC, eine offene, möblierte Küche, sowie eine großzügige Speis/Wirtschaftsraum.
Über eine geschwungene Holztreppe gelangt man vom Wohnzimmer aus auf die obere Etage, hier befindet sich eine luftige Galerie, ein rund 35 m² großer Dachboden (Stauraum), sowie der Ausgang auf die Loggia, bzw. vorgelagerte Terrasse (13 m²).
Dunkle Echtholzparkettböden, helle Räume, exklusive Lage, hier gibt es alle Annehmlichkeiten!
Als persönliche Betreuerin steht Ihnen Frau Beatrice Hammerschmid unter 0664/399 82 29 sehr gerne zur Verfügung.
"Alle in diesem Angebot enthaltenen Angaben, Abmessungen und Preisangaben beruhen auf Angaben des Eigentümers (oder eines Dritten). Der Makler übernimmt hierfür keine Haftung."
Noch nichts gefunden? Wir informieren Sie über geeignete Immobilienangebote noch vor allen anderen.
Legen Sie jetzt Ihren individuellen Suchagenten unter folgendem Link an. Wir schicken Ihnen passende Immobilien exklusiv vorab zu.
Suchagent anlegen - https://stressless-immobilien.service.immo/registrieren/de
Der Immobilienmakler erklärt, dass er – entgegen dem in der Immobilienwirtschaft üblichen Geschäftsgebrauch des Doppelmaklers – einseitig nur für den Vermieter tätig ist.
Bitte haben Sie dafür Verständnis, dass wir seit 13.Juni 2014 aufgrund der EU-Richtlinie (FAGG - Fern- und Auswärtsgeschäfte Gesetz) Detailinformationen, Besichtigungen sowie Zusendung von Exposés zu den angefragten Objekten erst dann umsetzen können, wenn Sie bestätigen, dass Sie unser sofortiges Tätigwerden wünschen und Sie über Ihre Rücktrittsrechte gemäß §11 FAGG von uns aufgeklärt wurden. Nachdem Sie uns Ihre Anfrage gesendet haben, erhalten Sie von uns alle wesentlichen Informationen per e-mail.
Die Angaben über das angebotene Objekt erfolgen mit der Sorgfalt eines ordentlichen Immobilienmaklers. Für die Richtigkeit solcher Angaben, die auf Informationen der über das Objekt Verfügungsberechtigten beruhen, wird keine Gewähr geleistet.
BITTE BEACHTEN SIE, DASS WIR AUFGRUND DER NACHWEISPFLICHT GEGENÜBER DEM EIGENTÜMER NUR ANFRAGEN MIT VOLLSTÄNDIGER ANGABE DER ANSCHRIFT UND ANGABEN ZUR PERSON (NAME, TELEFON, E-MAIL) BEARBEITEN KÖNNEN.
Eine Verrechnung unseres Honorars erfolgt nur dann, wenn es zu einem Vertragsabschluß zwischen VerkäuferIn/VermieterIn und KäuferIn/MieterIn kommt.
Eckdaten Objektnr. 362
| Art: | Wohnung - Maisonette |
| Land: | Österreich |
| Baujahr: | 1900 |
| Zustand: | Gepflegt |
| Gesamtmiete: | 1.669,97 € |
| Kaltmiete (netto): | 1.327,30 € |
| Kaltmiete: | 1.518,15 € |
| Provision: | Gemäß Erstauftraggeberprinzip bezahlt der Abgeber die Provision. |
| Betriebskosten: | 190,85 € |
| MwSt Gesamt: | 151,82 € |
| Wohnfläche: | 155,55 m² |
| Nutzfläche: | 190,00 m² |
| Zimmer: | 4 |
| Bäder: | 1 |
| WC: | 1 |
| Terrassen: | 1 |
| Keller: | 2,00 m² |
| Heizwärmebedarf: | D 115,70 kWh/m²a |
| fGEE: | F 1,54 |
Ausstattung
Parkett, Fliesen, Gas, Etagenheizung, Wohnküche / offene Küche, Nordbalkon, Badewanne, Kabel/Satelliten-TV
Ihre persönliche Beratung
Office
STRESSLESS Immobilien GmbH
T +43 664 3998229
H +43 664 3998229