Anleger aufgepasst! Interessantes Paket aus Büro- und Lagerflächen + TOP Lage in 1160 Wien + Renoviertes Gebäude + Beste Infrastruktur und Anbindung!

Zinshaus Renditeobjekt , 1160 Wien , Hasnerstraße


Brunnenmarkt um´s Eck! Dieses WE-Paket befindet sich im citynahen Teil des 16.Bezirks und im Zentrum zahlreicher Hot Spots! Alles Geschäfte des täglichen Bedarfs befinden sich in Gehweite, ebenso mehrere Schulen, Kindergärten, eine Apotheke sowie eine Bank. Wenige Gehminuten: Supermärkte, Apotheke, Banken, Ärzte Für den abendlichen Einkauf eignet sich die Lugner City, deren Geschäfte täglich bis 21:00 Uhr geöffnet haben bzw. der neue Westbahnhof ebenso mit zahlreichen Einkaufsmöglichkeiten. Die größte Einkaufsstraße Wien´s, die neue Mariahilferstraße, befindet sich auch nur einen Katzensprung entfernt und auf der Thaliastraße wird man auch fündig, egal was man sucht! Hot Spots ganz in der Nähe: Brunnenmarkt und Yppenplatz, Ottakringer Brauerei, Schmelz bzw. Sportuniversität an der Schmelz, Lugner City bzw. Kino, Stadthalle, Hauptbücherei uvm. Naturliebhaber kommen voll auf Ihre Kosten! Der nahe Wilhelminenberg oder die Steinhof Gründe laden zu ausgiebigen Ausflügen ein. Danach kann man die Seele in einem der zahlreichen Heurigen mit Blick über ganz Wien baumeln lassen. In diesem urbanen Grätzel trifft man auf Kunst und Kulinarik, auf Moderne und auf das alte Ottakring, auf kreative Ecken, tolle Lokale und viele von der Stadt neu gestaltete Platzerl! Öffentliche Anbindung: Fahrrad Highway direkt auf der Hasnerstraße, Bus 10A + 48A, Straßenbahn 46 + 9, Bus N46, U3

Beschreibung der Immobilie

Anleger aufgepasst! Interessantes Paket aus Büro- und Lagerflächen + TOP Lage in 1160 Wien + Renoviertes Gebäude + Beste Infrastruktur und Anbindung!

Anleger aufgepasst! Interessantes Paket aus Büro- und Lagerflächen + TOP Lage in 1160 Wien + Renoviertes Gebäude + Beste Infrastruktur und Anbindung!





Zum Verkauf steht ein attraktives Paket aus Büro - und Lagerflächen in 1160 Wien!



Facts:



+ Die Flächen sind befristet vermietet bis 30.06.2028. Eine vorzeitige Rückstellung bis 30.06.2026 gilt als sehr wahrscheinlich!



+ Nutzfläche: ca. 430,71m² + ca. 15,67m² (gemäß Nutzwertgutachten)



+ Im Kellerbereich sind Einlagerungsräume zu den einzelnen WE-Objekten zugeordnet.



+ Mieteinnahmen: € 955,80.- netto/Monat



+ Im Hofgebäude gibt es laut Architekt ein Ausbaupotential auf ca. 115m² und ergibt dies somit ein weiteres Potential von ca. 69,39m².





Aufstellung der WE-Objekte:



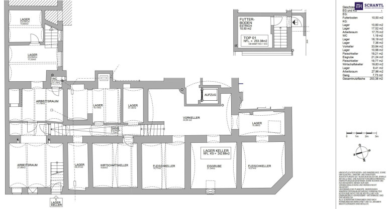
+ TOP 1: ca. 253,38m² (davon EG 10,50m² + ST 242,88m²)



+ TOP 2: ca. 45,61m² + 15,67m² Garten



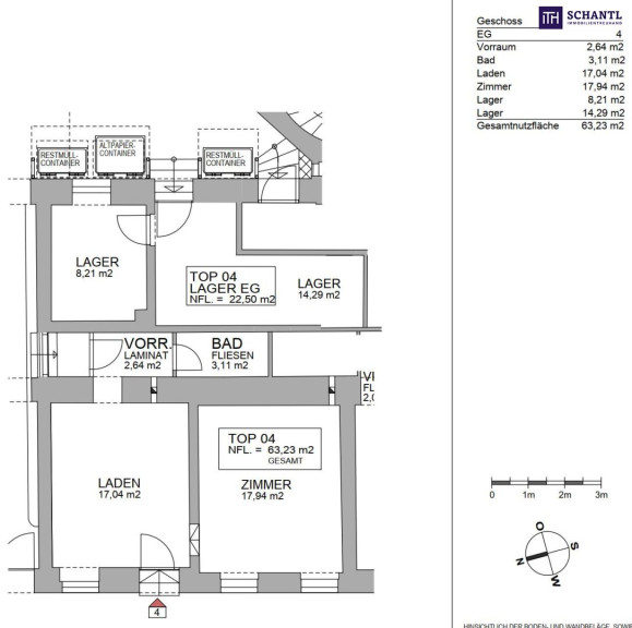
+ TOP 4: ca. 63,23m²



+ TOP 5: ca. 68,49m² (Ecklokal)





Kaufpreis: € 490.000.-



Gerne stellen wir Ihnen bei Interesse ausführliche Unterlagen und Infomationen zur Verfügung!





www.schantl-ith.at




Wir weisen darauf hin, dass zwischen dem Vermittler und dem zu vermittelnden Dritten ein familiäres oder wirtschaftliches Naheverhältnis besteht.


Der Vermittler ist als Doppelmakler tätig.

Infrastruktur / Entfernungen

Gesundheit
Arzt <250m
Apotheke <250m
Klinik <500m
Krankenhaus <1.250m

Kinder & Schulen
Schule <250m
Kindergarten <250m
Universität <1.250m
Höhere Schule <750m

Nahversorgung
Supermarkt <250m
Bäckerei <250m
Einkaufszentrum <500m

Sonstige
Geldautomat <250m
Bank <250m
Post <500m
Polizei <250m

Verkehr
Bus <250m
U-Bahn <250m
Straßenbahn <250m
Bahnhof <250m
Autobahnanschluss <4.250m

Angaben Entfernung Luftlinie / Quelle: OpenStreetMap

Eckdaten Objektnr. 293268

Art: Zinshaus Renditeobjekt
Land: Österreich
Zustand: Neuwertig
Alter: Altbau
Kaufpreis: 490.000,00
Kaufpreis / m²: 1.117,19 €
Provision: 3% des Kaufpreises zzgl. 20% USt.
Nutzfläche: 438,60 m²
Lagerfläche: 253,38 m²
Bürofläche: 177,33 m²
Garten: 15,67 m²
Keller: 7,32 m²
Heizwärmebedarf:  E  145,20 kWh/m²a
fGEE:  C  1,48
Immobilie merken Exposé

Ausstattung

Personenaufzug


Immobilie anfragen


Ihre persönliche Beratung

Schantl ITH Immobilientreuhand GmbH

Samir Agha-Schantl

Schantl ITH Immobilientreuhand GmbH

T 0043 664 3070009

H 0043 660 4701793