Familiennest - Renoviertes Einfamilienhaus mit Pool in Unternberg
Haus
- Einfamilienhaus,
5585
Unternberg
Unternberg ist eine der 15 Gemeinden im Bezirk Tamsweg (Lungau) im Land Salzburg mit 1022 Einwohnern. Liegt in einer ruhigen, sonnigen, zentralen Lage, auf einem Eckgrundstück in der Feriengemeinde Unternberg. Die Skigebiete Aineck-Katschberg, Großeck-Speiereck, Fanningberg sind in wenigen Minuten zu erreichen. Guter Ausgangspunkt für Radfahrer, Wanderer. Für Menschen, denen die Natur noch am Herzen liegt. Text: https://de.wikipedia.org/wiki/Unternberg Foto: https://www.google.com/maps/place/Antanger+197,+5585+Unternberg
Beschreibung der Immobilie
Familiennest - Renoviertes Einfamilienhaus mit Pool in Unternberg
Erholsames Wohnen.
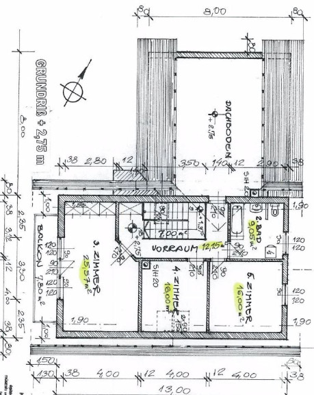
Es handelt sich um erst 2023 hochwertig renoviertes und sehr großzügig geschnittenes Einfamilienhaus mit ca. 198 m² Wohnfläche und 614 m² Grund. Die Besonderheit ist, dass das Ober- und Erdgeschoß als komplett eigenständige Wohneinheiten genützt werden können.
Alle Bäder und Küchen wurden neu gestaltet.
Das Haus liegt in einer Wohnsiedlung und ist nur 3 Gehminuten vom Ortskern entfernt.
Das Haus ist außen mit viel Holz und speziellen Holzdesigns im Landhausstil gestaltet und weist einen Wohn-Essbereich mit einem Kachelofen und eine angeschlossene Küche, 5 Zimmer, 3 Bäder und 1 Gäste-WC auf.
Vom Wohn-Essbereich gelangen Sie direkt auf die Terrasse und in den wunderschön gestalteten Garten mit Pool und Rosenbogen.
Das malerische Landhaus ist mit einer modernen Pelletsheizung ausgestattet, die auch für Hackschnitzel geeignet ist und somit enorm energieeffizient arbeitet.
Zum Haus gehört zusätzlich eine große Garage und ein wunderschön gepflasterter Vorplatz mit Stellflächen für 2 Autos.
Wenn Sie nähere Informationen wünschen, freuen wir uns über Ihre Anfrage. Wir werden Ihnen sodann gerne ein detailliertes Immobilienangebot zukommen lassen.
Im Falle einer allfälligen Finanzierung bieten wir Ihnen gerne ein unverbindliches, auf Sie maßgeschneidertes Finanzmodell an.
Bitte beachten Sie, dass wir aufgrund der Nachweispflicht gegenüber dem Abgeber nur Anfragen mit vollständigen Angaben (Vor- und Zuname, Anschrift, Telefonnummer, E-Mail) bearbeiten können.
Infrastruktur / Entfernungen
Gesundheit
Arzt <4.500m
Apotheke <4.500m
Krankenhaus <5.500m
Kinder & Schulen
Schule <4.500m
Kindergarten <5.000m
Nahversorgung
Supermarkt <4.500m
Bäckerei <4.500m
Einkaufszentrum <5.500m
Sonstige
Bank <4.500m
Geldautomat <5.500m
Post <4.500m
Polizei <5.500m
Verkehr
Bus <500m
Bahnhof <3.500m
Flughafen <4.500m
Angaben Entfernung Luftlinie / Quelle: OpenStreetMap
Eckdaten Objektnr. 507/2840
| Art: | Haus - Einfamilienhaus |
| Land: | Österreich |
| Baujahr: | 2007 |
| Kaufpreis: | 550.000,00 € |
| Provision: | 3% des Kaufpreises zzgl. 20% USt. |
| Wohnfläche: | 197,70 m² |
| Grundstücksfl.: | 614,00 m² |
| Zimmer: | 5 |
| Balkone: | 1 |
| Stellplätze: | 3 |
| Heizwärmebedarf: | 74,00 kWh/m²a |
| fGEE: | 0,88 |
Ausstattung
Fußbodenheizung, Wohnküche / offene Küche, Bad mit Fenster, Garage, Parkplatz
Ihre persönliche Beratung
Dieser Makler ist ein offizielles Mitglied des IR – ir.at Mehr Erfahren

