Sanierter Altbau im Erstbezug

Wohnung , 1030 Wien


Beschreibung der Immobilie

Sanierter Altbau im Erstbezug

Im Zuge des Dachgeschossausbaus wird auch das gesamte Haus umfassend saniert. Zudem wurden zwei Wohneinheiten vollständig entkernt, um großzügige Altbauwohnungen im Erstbezug zu realisieren.
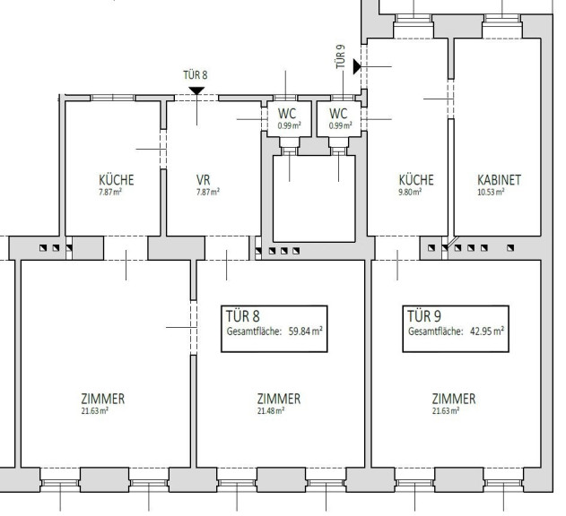
Top 8 - 9 befindet sich im 1. Stock eines gepflegten Altbaus in einer ruhigen Seitengasse und verfügt über eine Wohnfläche von ca. 103 m². Die Wohnung besticht durch hohe Decken, klassische Altbauproportionen und drei großzügige Zimmer mit beeindruckenden Raumdimensionen:
Großzügige Wohnküche mit ca. 42 m²
Schlafzimmer mit ca. 21 m²
Weiteres Zimmer mit ca. 20 m²
Gebäude & Ausstattung:
Im Zuge des Dachgeschossausbaus werden umfangreiche Aufwertungsmaßnahmen am gesamten Gebäude umgesetzt:
Einbau eines Personenaufzugs
Sanierung und optische Aufwertung von Fassade und Stiegenhaus
Trockenlegung des Kellers
Ein Weinkeller ist Bestandteil des Eigentums
Lage:
Die Liegenschaft befindet sich in einer ruhigen Parallelstraße zur Erdberger Straße, wodurch eine angenehme Wohnatmosphäre bei gleichzeitig optimaler Anbindung gewährleistet ist.
Geschäfte des täglichen Bedarfs sind fußläufig erreichbar. Zudem bietet die nur rund 10 Gehminuten entfernte Landstraße eine Vielzahl an Einkaufsmöglichkeiten sowie ein breites Angebot an Restaurants und Cafés. Der Rochusmarkt ist lediglich eine U-Bahn-Station, Wien Mitte nur zwei U-Bahn-Stationen entfernt.
Öffentliche Verkehrsanbindung:
Die öffentliche Verkehrsanbindung ist ausgezeichnet:Die U-Bahn-Station Kardinal-Nagl-Platz (U3) befindet sich ca. 350 m von der Liegenschaft entfernt. Darüber hinaus sind die Buslinie 77A (Rennweg – Lusthaus) in ca. 200 m sowie die Nachtbuslinie N75 bequem erreichbar.
Wien Mitte mit den U-Bahn-Linien U3 und U4 sowie einer Vielzahl an S-Bahn- und Regionalzugverbindungen ist ebenfalls rasch erreichbar.
Energieausweis:
Derzeitiger Energieausweis: Heizwärmebedarf (HWB): 172,70 kWh/m²a Gesamtenergieeffizienz-Faktor (fGEE): 3,30
Die Einheit ist wahlweise im entkernten Rohzustand oder nach Sanierung erhältlich.
Bei Interesse kontaktieren Sie bitte Frau Monika Riener?? riener@rustler.eu

Generous Historic Apartment – First Occupancy After Renovation
A
s part of the attic conversion, the entire building is being comprehensively renovated. In addition, two residential units have been fully stripped back to their core in order to create generous classic Viennese apartments offered as first occupancies.
Generous Historic Apartment – First Occupancy After Renovation
Apartment Top 8–9 is located on the first floor of a well-maintained historic building in a quiet side street and offers a living area of approximately 103 m². The apartment impresses with high ceilings, classic period proportions, and three spacious rooms with remarkable dimensions. The spacious open-plan living kitchen measures approx. 42 m². The bedroom offers approx. 21 m². An additional room measures approx. 20 m².
Building & Features:
As part of the attic conversion, extensive upgrade measures are being implemented throughout the entire building, including:
the installation of a passenger elevator
renovation and aesthetic enhancement of the façade and stairwell
basement waterproofing
private wine cellar included as part of the property

Location:
The property is situated in a quiet side street parallel to Erdberger Straße, offering a pleasant residential atmosphere while maintaining excellent connectivity. Shops for daily needs are within walking distance. In addition, the Landstraße shopping district, located approximately 10 minutes on foot, offers a wide range of retail options as well as numerous restaurants and cafés. The Rochus Market is just one subway stop away, while Wien Mitte can be reached in two subway stops.

Public transport:
Public transport connections are excellent. The Kardinal-Nagl-Platz subway station (U3) is located approximately 350 m from the property. Furthermore, bus line 77A (Rennweg – Lusthaus) is reachable in about 200 m, and the night bus line N75 is also conveniently accessible. Wien Mitte, with the U3 and U4 subway lines as well as numerous S-Bahn and regional train connections, is also easily accessible.

Current Energy Performance Certificate:
Heating Demand (HWB): 172.70 kWh/m²
Efficiency Factor (fGEE): 3,30

The unit is available either in its stripped-back shell condition or fully renovated.
For further information, please contact Ms. Monika Riener at riener@rustler.eu.

Eckdaten Objektnr. 141/84450

Art: Wohnung
Land: Österreich
Baujahr: 1908
Kaufpreis: 650.000,00
Betriebskosten: 150,75 €
Sonstige Kosten: 54,27 €
Wohnfläche: 103,00 m²
Zimmer: 3
Bäder: 2
WC: 2
Heizwärmebedarf:  E  172,70 kWh/m²a
fGEE:  F  3,30
Immobilie merken Exposé

Immobilie anfragen


Ihre persönliche Beratung

Monika Riener

T +43 1 894 97 49393

H +43 676 834 34 393

Dieser Makler ist ein offizielles Mitglied des IR – ir.at Mehr Erfahren


Makler für Immobilien - Rustler Immobilientreuhand GmbH

RUSTLER-DIE MAKLER hat es sich zur Aufgabe gemacht, anhand exzellenter Fach- und Marktkenntnisse den passenden Immobilieninteressenten mit dem passenden Anbieter kosten- und zeitsparend zusammenzuführen.