Charmante 2-Zimmer-Wohnung in Linz-Keferfeld – Wohnung wird im Februar 2026 GENERALSANIERT - Loggia & Garage vorhanden - ab 01.03.2026 zu beziehen!

Wohnung , 4020 Linz , Grundbachweg 36


Die Wohnung befindet sich im Grundbachweg 36, 4020 Linz in einer ruhigen Wohngegend. Einkaufsmöglichkeiten, öffentliche Verkehrsmittel sowie weitere infrastrukturelle Einrichtungen sind gut erreichbar.

Beschreibung der Immobilie

Charmante 2-Zimmer-Wohnung in Linz-Keferfeld – Wohnung wird im Februar 2026 GENERALSANIERT - Loggia & Garage vorhanden - ab 01.03.2026 zu beziehen!

Linz / Keferfeld / Leonding / Grundbachweg 36:



Zur Vermietung steht eine attraktive 2-Zimmer-Wohnung im 1. Obergeschoss eines gepflegten Wohnhauses am Grundbachweg 36 in 4020 Linz. Die Wohnung bietet eine Wohnfläche von 63,50 m² sowie eine gemütliche Loggia und überzeugt durch eine funktionale Raumaufteilung. Ideal geeignet für Singles oder Paare.



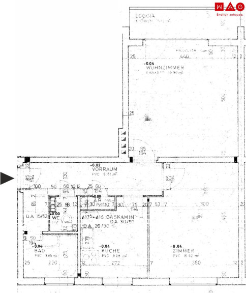
Raumaufteilung & Highlights



Raumaufteilung



  • Vorraum: 8,81 m²
  • Badezimmer: 7,85 m²
  • WC: 1,37 m²
  • Abstellraum: 0,55 m²
  • Küche: 8,08 m²
  • Schlafzimmer: 15,92 m²
  • Wohnzimmer: 15,80 m²
  • Loggia: 5,12 m²


Highlights



  • GENERALSANIERUNG im Februar 2026
  • Loggia mit 5,12 m²
  • Getrenntes Badezimmer und WC
  • Praktischer Abstellraum
  • Gute Raumaufteilung
  • Heizung bereits in der Miete inkludiert




Mietkondition



  • Miete inkl. Betriebskosten, Heizung und MwSt.: 836,15 €
  • Garage inkl. MwSt.: € 75,00
  • Gesamtmiete: € 911,15
  • Kaution/Baukostenzuschuss: 3.644,60 €


Verfügbarkeit



Die Wohnung steht 01.03.2026 zur Verfügung.

 



GENERALSANIERUNG im Februar 2026 :



  • Böden werden erneuert (Wohnzimmer, Küche, Abstellraum, Schlafzimmer)
  • Wohnung wird neu gestrichen
  • Türen und Türzargen werden erneuert
  • Holzdecken werden entfernt
  • WC wird erneuert
  • Badezimmer wird komplett erneuert, neue Fliesen, neuer Badewanne ect.
  • Fliesenspiegel in der Küche wird entfernt

Sie sind an weiteren Wohnungs- bzw. Gewerbeangeboten interessiert? Ein vielfältiges Angebot finden Sie auf unserer Website.

Zur WAG-Immobiliensuche: SUCHE

Zur WAG-Wohnungsanmeldung: Wohnungsanmeldung

Gerne beraten wir Sie persönlich über unser vielfältiges Angebot, rufen Sie uns einfach an! Und das natürlich ohne Vermittlungsgebühren und provisionsfrei!

Angaben sind ohne Gewähr auf Richtigkeit und Vollständigkeit. Druckfehler vorbehalten.

Infrastruktur / Entfernungen

Gesundheit
Arzt <100m
Apotheke <75m
Klinik <2.200m
Krankenhaus <1.200m

Kinder & Schulen
Kindergarten <350m
Schule <450m
Universität <1.550m
Höhere Schule <2.825m

Nahversorgung
Supermarkt <225m
Bäckerei <100m
Einkaufszentrum <1.300m

Sonstige
Bank <100m
Geldautomat <100m
Post <75m
Polizei <1.475m

Verkehr
Bus <100m
Straßenbahn <175m
Bahnhof <175m
Autobahnanschluss <1.075m
Flughafen <4.500m

Angaben Entfernung Luftlinie / Quelle: OpenStreetMap

Eckdaten Objektnr. 6650/15295

Art: Wohnung
Land: Österreich
Gesamtmiete: 836,15
Kaltmiete (netto): 514,99 €
Kaltmiete: 706,53 €
Betriebskosten: 191,45 €
Heizkosten: 49,14 €
MwSt Gesamt: 80,48 €
Wohnfläche: 63,50 m²
Zimmer: 2
Bäder: 1
WC: 1
Heizwärmebedarf:  C  55,54 kWh/m²a
fGEE:  C  1,15
Immobilie merken Exposé

Ausstattung

Fliesen, Parkett, Zentralheizung, Personenaufzug, Bad mit Fenster, Badewanne, Kabel/Satelliten-TV, Garage, Wasch/Trockenraum


Immobilie anfragen


Ihre persönliche Beratung

Team Vermietung 3

WAG Wohnungsanlagen GmbH

T +43 (0)50 338 6010