Provisionsfrei! Wunderschöner Erstbezug mit Garten

Wohnung , 1100 Wien , Uhligstraße


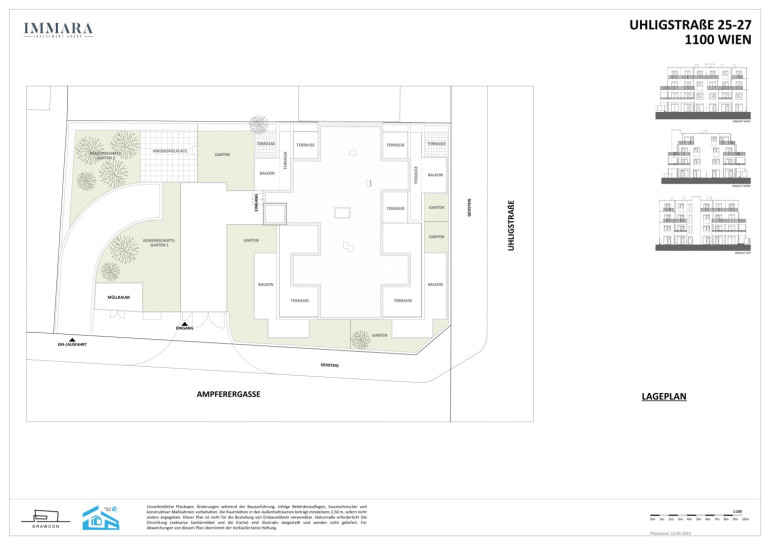
Dieses schöne Neubauprojekt befindet sich in der Uhligstraße, einer sehr ruhigen und begrünten Straße zwischen Oberlaaer Straße und der Ampferergasse. Der Kurpark Oberlaa ist in ca. 15 Minuten fußläufig zu erreichen. Öffentliche Anbindung: - U-Bahn U1 Neulaa (5 Minuten zu Fuß) - Autobus 17A und N17 (5 Minuten zu Fuß), 16A, 67A, 67B Infrastruktur: - zahlreiche Kindergärten, Bildungseinrichtungen  - Geschäfte des täglichen Bedarfs befinden sich ebenfalls in unmittelbarer Nähe

Beschreibung der Immobilie

Provisionsfrei! Wunderschöner Erstbezug mit Garten

Zum Verkauf gelangt diese perfekt geschnittene Zweizimmerwohnung mit Garten und Terrasse im Erdgeschoss eines sehr geschmackvollen Neubauhauses (Fertigstellung November 2025) in Grün-Ruhelage.  Diese hochwertig ausgestattete Wohnung verfügt über einen ca. 37 m2 großen Garten, welcher von beiden Zimmern zugänglich ist.



Raumaufteilung:



- Vorraum



- Abstellraum 



- Toilette mit Handwaschbecken



- Wohnküche mit hochwertig ausgestatteter Küche und Zugang zur Terrasse und zum Garten



- Schlafzimmer mit Zugang zum Garten



- Badezimmer mit Dusche, Handwaschbecken und Waschmaschinenanschluss 



Ausstattung Wohnung:



- Luftwärmepumpe



- Fußbodenheizung



- hochwertiger Eichenparkettboden



- Feinsteinzeugfliesen



- Fenster: 3-Scheiben-Isolierverglasung



- Terrassentüren: elektrisch bedienbaren RAFF-Stores 



- Kellerabteil





Ausstattung Liegenschaft:



- Fahradabstellraum



- 2 Gemeinschaftsgärten



- Kinderspielplatz



- Garage (Kaufpreis EUR 30.000,00)





Lage:



Dieses schöne Neubauprojekt befindet sich in der Uhligstraße, einer sehr ruhigen und begrünten Straße zwischen Oberlaaer Straße und der Ampferergasse. Der Kurpark Oberlaa ist in ca. 15 Minuten fußläufig zu erreichen.



Öffentliche Anbindung:



- U-Bahn U1 Neulaa (5 Minuten zu Fuß)



- Autobus 17A und N17 (5 Minuten zu Fuß), 16A, 67A, 67B



Infrastruktur:



- zahlreiche Kindergärten, Bildungseinrichtungen 



- Geschäfte des täglichen Bedarfs befinden sich ebenfalls in unmittelbarer Nähe





Beim angegebenen Kaufpreis handelt es sich um einen Nettopreis für Anleger, für Selbstnutzer kommen 11 % Umsatzsteuer hinzu.

Eckdaten Objektnr. 4219

Art: Wohnung
Land: Österreich
Baujahr: 2024
Alter: Neubau
Kaufpreis: 435.000,00
Wohnfläche: 56,42 m²
Zimmer: 2
Bäder: 1
WC: 1
Terrassen: 1
Garten: 37,00 m²
Heizwärmebedarf:  B  25,50 kWh/m²a
Immobilie merken Exposé

Ausstattung

Fliesen, Parkett, Fußbodenheizung, Einbauküche, Personenaufzug, Ostbalkon, Tiefgarage


Immobilie anfragen


Ihre persönliche Beratung

Rana Wintersteiner

T +43 1 616 32 77 275

H +43 660 762 27 16

F +43 1 616 32 77 216

Dieser Makler ist ein offizielles Mitglied des IR – ir.at Mehr Erfahren


Makler für Immobilien - J. u. E. Wild Immobilientreuhänder GmbH

GUT BETREUT BERUHIGT - Bei uns können Sie, ob als Verkäufer oder als Käufer einer Immobilie, maximale Bequemlichkeit mit maximaler Sicherheit kombinieren – und dabei auch noch Zeit sparen. Bei uns sind Sie GUT BETREUT und das BERUHIGT.