Exklusive Maisonette mit Dachterrasse – 88,52 m² Wohnfläche | Lift

Wohnung - Terrassenwohnung, 3100 St. Pölten , Franziskanergasse


Inmitten der Fußgängerzone 1 Minute vom Hauptbahnhof & P+R ÖBB entfernt 2 Minuten vom Rathausplatz gelegen 4 Minuten zum Universitätsklinikum St. Pölten 27 Minuten mit dem Zug zum Wien Hauptbahnhof 55 Minuten mit dem Zug zum Flughafen Wien

Beschreibung der Immobilie

Exklusive Maisonette mit Dachterrasse – 88,52 m² Wohnfläche | Lift

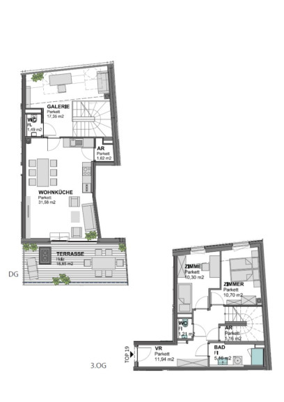
88,52 m² Wohnfläche + 18,85 m² Dachterrasse  
3. + 4. Obergeschoss mit Lift – 01.04.2026 



Raumaufteilung: 



1. Etage: Vorzimmer, Treppenhaus, Abstellraum, Duschbad, Toilette, zwei Zimmer



2. Etage: Wohnküche, Dachterrasse, Galerie, Abstellraum, Gästetoilette



Ausstattung: Einbauküche mit Markeneinbaugeräten, teilweise LED Einbauspots, Parkett und Fliesenböden, hochqualitative Zargen und Innentüren, hochwertige Sanitäreinrichtungen, Sicherheitstür, Fußbodenheizung, elektrische Außenraffstores   



Miete gesamt: € 1.257,15 inkl. BK/USt.



Kaution: 3 BMM 


Wir weisen darauf hin, dass zwischen dem Vermittler und dem zu vermittelnden Dritten ein familiäres oder wirtschaftliches Naheverhältnis besteht.


Der Immobilienmakler erklärt, dass er – entgegen dem in der Immobilienwirtschaft üblichen Geschäftsgebrauch des Doppelmaklers – einseitig nur für den Vermieter tätig ist.

Infrastruktur / Entfernungen

Gesundheit
Arzt <250m
Apotheke <250m
Klinik <750m
Krankenhaus <1.000m

Kinder & Schulen
Schule <250m
Kindergarten <500m
Universität <1.000m
Höhere Schule <250m

Nahversorgung
Supermarkt <250m
Bäckerei <250m
Einkaufszentrum <250m

Sonstige
Bank <250m
Geldautomat <250m
Polizei <250m
Post <250m

Verkehr
Bus <250m
Bahnhof <250m
Autobahnanschluss <3.000m
Flughafen <6.000m

Angaben Entfernung Luftlinie / Quelle: OpenStreetMap

Eckdaten Objektnr. 5782

Art: Wohnung - Terrassenwohnung
Land: Österreich
Baujahr: 2015
Zustand: Neuwertig
Alter: Neubau
Gesamtmiete: 1.248,99
Kaltmiete (netto): 900,94 €
Kaltmiete: 1.135,45 €
Provision: Gemäß Erstauftraggeberprinzip bezahlt der Abgeber die Provision.
Betriebskosten: 234,51 €
MwSt Gesamt: 113,54 €
Wohnfläche: 88,52 m²
Zimmer: 3
Bäder: 1
WC: 2
Terrassen: 1
Keller: 10,00 m²
Heizwärmebedarf:  B  31,90 kWh/m²a
fGEE:  A  0,71
Immobilie merken Exposé

Ausstattung

Parkett, Fliesen, Fußbodenheizung, Zentralheizung, Wohnküche / offene Küche, Personenaufzug, Südbalkon, Dusche, Kabel/Satelliten-TV


Immobilie anfragen


Ihre persönliche Beratung

IMMOCENTRAL Immobilientreuhand GmbH

Marion Kleebinder

IMMOCENTRAL Immobilientreuhand GmbH

T 02742/ 318 60-31

H 0664/ 8839 7297

F 02742/ 318 60-50