Altbau trifft Garten - Sanierungsbedürftige Wohnung im Herzen von Stockerau

Wohnung , 2000 Stockerau


Beschreibung der Immobilie

Altbau trifft Garten - Sanierungsbedürftige Wohnung im Herzen von Stockerau

Zum Verkauf gelangt eine großzügige Altbauwohnung mit rund 120 m² Wohnfläche und einem knapp 132 m² großen Eigengarten in unmittelbarer Nähe zum Zentrum von Stockerau. Das um 1900 errichtete Haus besteht aus 2 Wohneinheiten und besticht durch seinen historischen Charme. Die Wohnung selbst befindet sich im Erdgeschoß, ist in einem renovierungsbedürftigen Zustand und bietet daher viel Raum, eigene Vorstellungen umzusetzen.



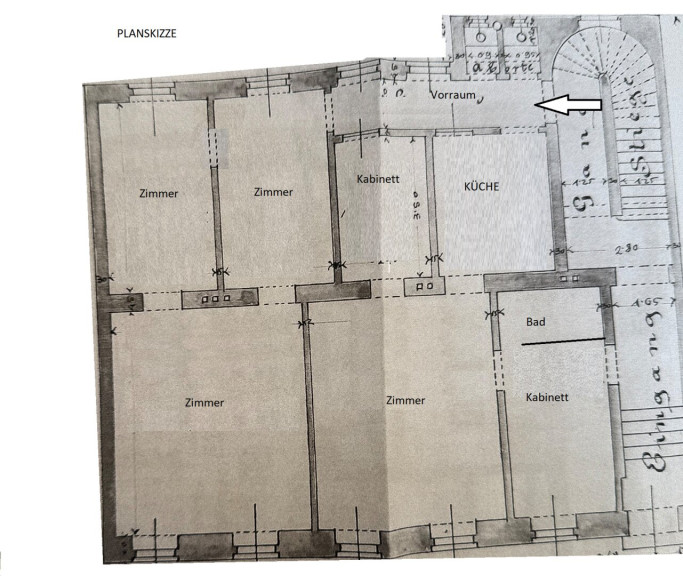
Im vorderen Bereich der Wohnung liegen zwei beeindruckend große Zimmer mit jeweils etwa 27 m² sowie ein rund 10 m² großes Zimmer, Der gartenseitige Teil eröffnet vielfältige Gestaltungsmöglichkeiten, sei es für eine Küche, ein Badezimmer oder zusätzlichen Wohnraum. Besonders hervorzuheben ist die Möglichkeit, von hier aus einen direkten Zugang in den idyllischen und ruhigen Garten zu schaffen, der mit seiner Größe und Lage ein seltenes Highlight darstellt. Ein Kellerbereich steht auch zur Verfügung. 



Diese Liegenschaft vereint den Charme der Jahrhundertwende mit dem Potenzial für moderne Wohnideen. Sie eignet sich ideal für Käuferinnen und Käufer, die Wert auf großzügige Räume, einen eigenen Garten im Zentrum der Stadt Stockerau und die Freiheit zur individuellen Gestaltung legen.



Aufteilung:
- Vorraum

- separate Toilette

- Abstellraum

- Küche

- 5 Zimmer

- Kabinett

- Badezimmer

- Garten


Wir weisen darauf hin, dass zwischen dem Vermittler und dem zu vermittelnden Dritten ein familiäres oder wirtschaftliches Naheverhältnis besteht.


Der Vermittler ist als Doppelmakler tätig.

Infrastruktur / Entfernungen

Gesundheit
Arzt <500m
Apotheke <500m
Klinik <9.000m
Krankenhaus <500m

Kinder & Schulen
Kindergarten <500m
Schule <500m
Universität <9.500m

Nahversorgung
Supermarkt <500m
Bäckerei <500m

Sonstige
Bank <500m
Geldautomat <500m
Post <500m
Polizei <500m

Verkehr
Bus <500m
Autobahnanschluss <1.000m
Bahnhof <1.000m
Flughafen <3.000m

Angaben Entfernung Luftlinie / Quelle: OpenStreetMap

Eckdaten Objektnr. 6653/846

Art: Wohnung
Land: Österreich
Baujahr: 1900
Zustand: Sanierungsbeduerftig
Alter: Altbau
Kaufpreis: 285.000,00
Provision: 10.260,00 € inkl. 20% USt.
Betriebskosten: 57,70 €
Wohnfläche: 120,00 m²
Zimmer: 6
WC: 1
Garten: 132,00 m²
Heizwärmebedarf:  E  180,00 kWh/m²a
fGEE:  D  2,29
Immobilie merken Exposé

Ausstattung

Gas


Immobilie anfragen


Ihre persönliche Beratung

Laurenz Schnitzer

Confido Immobilien GmbH

T +43 664 518 45 11

H +43 664 518 45 11