Ihr Rückzugsort im Grünen: Gartenwohnung im Neubau

Wohnung , 8061 Sankt Radegund bei Graz


Diese charmante Gartenwohnung in 8061 Sankt Radegund bei Graz bietet eine perfekte Kombination aus Erholung und Anbindung. Umgeben von der idyllischen Natur des Luftkurorts St. Radegund, genießen Sie eine ruhige und gesunde Lebensqualität. Die nahegelegene Bushaltestelle der Linie 250 sorgt für eine bequeme Anbindung an die Grazer Innenstadt und die umliegenden Regionen. Ideal für Naturliebhaber und Familien, die einen Rückzugsort in der Nähe der Stadt suchen.

Beschreibung der Immobilie

Ihr Rückzugsort im Grünen: Gartenwohnung im Neubau

Willkommen in Ihrem neuen Zuhause in der idyllischen Gemeinde Sankt Radegund bei Graz! Diese traumhafte Gartenwohnung im Erdgeschoss bietet Ihnen nicht nur modernen Wohnkomfort, sondern auch eine unvergleichliche Lebensqualität inmitten der grünen Natur. Diese traumhafte Immobilie mit Baustart im Jänner 2026 ist der perfekte Ort für Kleinfamilien, Pärchen oder Singlesdie Wert auf Raum, Komfort und eine erstklassige Lage legen.



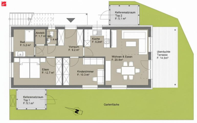
Mit einer großzügigen Wohnfläche von ca. 67,5 m² und zwei lichtdurchfluteten Zimmern mit geräumiger Wohn-& Essküche ist diese Wohnung der perfekte Rückzugsort für alle, die die Ruhe und Schönheit der Umgebung schätzen.



Der Erstbezug sorgt dafür, dass Sie von Anfang an in eine neuwertige, hochwertige Ausstattung eintauchen können.



Die Gartenwohnung verfügt über ein modernes Badezimmer mit Fenster und Dusche, das Ihnen den idealen Start in den Tag ermöglicht. Genießen Sie den Komfort von Fliesen und Parkett, die nicht nur stilvoll, sondern auch pflegeleicht sind. Eine Fußbodenheizung sorgt für wohlige Wärme, während die moderne Luftwärmepumpe eine energieeffiziente Heizlösung bietet. Jede Wohneinheit enthält eine eigene Zentralheizungsanlage – frei stehende Luft/Wasser Wärmepumpe. Die Warmwasseraufbereitung erfolgt über die Inneneinheit Luft/Wasser Wärmepumpe.



Die Außenwand besteht aus: einer 25 cm dicken Ziegelwand, die mit 16 cm Dämmung versehen ist. Diese Konstruktion hat eine hohe Wärmedämmung.



Der absolute Höhepunkt dieser Wohnung ist der Zugang zu Ihrem eigenen Garten und der großzügigen Terrasse. Hier können Sie entspannen, die Sonne genießen oder mit Freunden und Familie unvergessliche Grillabende verbringen. Der Garten bietet Ihnen die Möglichkeit, Ihre persönliche grüne Oase zu gestalten und die Natur in vollen Zügen zu erleben. 



IHRE TOP HIGHLIGHTS:



  • Erstbezug 
  • Luft/Wasser Wärmepumpe
  • Ruhelage 
  • Eigener Garten
  • Erstklassige Lage 
  • Barrierefreiheit 


Nutzen Sie die Gelegenheit, Teil dieser einzigartigen Wohnsituation zu werden! Sie erwartet nicht nur eine neuwertige Wohnung, sondern auch ein neues Lebensgefühl. Erleben Sie die perfekte Symbiose aus modernem Wohnkomfort und naturnaher Umgebung.



Zögern Sie nicht, uns zu kontaktieren, um einen Besichtigungstermin zu vereinbaren und sich selbst von dieser einzigartigen Gartenwohnung zu überzeugen unter +43 676 3646748. Ich freue mich auf Ihren Anruf. Eva Antley, Roderick Scherer Immobilien GmbH. Ihr neues Zuhause in Sankt Radegund wartet auf Sie!




Sie möchten diese Immobilie finanzieren? Gerne zeigen wir Ihnen in einem kostenlosen und unverbindlichen Beratungsgespräch (vor Ort oder online) die aktuellen Möglichkeiten am heimischen Kreditmarkt auf. Unsere Finanzierungsexperten vergleichen für Sie eine Vielzahl von Banken und Bausparkassen, um für Sie die besten Konditionen zu erreichen (Laufzeit, Rate, Eigenmittel). Optimal zugeschnitten auf Ihre Bedürfnisse. Sprechen Sie uns gerne an.

Noch nichts gefunden? Wir informieren Sie über geeignete Immobilienangebote noch vor allen anderen.
Legen Sie jetzt Ihren individuellen Suchagenten unter folgendem Link an. Wir schicken Ihnen passende Immobilien exklusiv vorab zu.

Suchagent anlegen - https://roderick-scherer-immobilien.service.immo/registrieren/de


Der Vermittler ist als Doppelmakler tätig.

Infrastruktur / Entfernungen

Gesundheit
Arzt <1.500m
Apotheke <4.500m
Krankenhaus <1.500m
Klinik <5.000m

Kinder & Schulen
Schule <2.000m
Kindergarten <2.500m
Höhere Schule <8.500m

Nahversorgung
Supermarkt <2.000m
Bäckerei <7.500m

Sonstige
Bank <2.000m
Geldautomat <2.000m
Post <2.000m
Polizei <2.500m

Verkehr
Bus <500m
Straßenbahn <7.500m

Angaben Entfernung Luftlinie / Quelle: OpenStreetMap

Eckdaten Objektnr. 5420/7247

Art: Wohnung
Land: Österreich
Baujahr: 2026
Zustand: Erstbezug
Alter: Neubau
Kaufpreis: 280.332,00
Provision: 3% des Kaufpreises zzgl. 20% USt.
Nutzfläche: 67,50 m²
Zimmer: 3
Bäder: 1
WC: 1
Terrassen: 1
Stellplätze: 1
Garten: 65,00 m²
Keller: 5,10 m²
Heizwärmebedarf:  C  62,80 kWh/m²a
fGEE:  A+  0,69
Immobilie merken Exposé

Ausstattung

Parkett, Fliesen, Fußbodenheizung, Zentralheizung, Bad mit Fenster, Dusche, Kabel/Satelliten-TV, Parkplatz


Immobilie anfragen


Ihre persönliche Beratung

Roderick Scherer Immobilien GmbH

Eva Antley

Roderick Scherer

T +43 676 3646748