Günstiges Haus mit Garten, 4 Zimmern und 2 PKW-Stellplätzen in Bad Vöslau!

Haus - Reihenmittelhaus, 2540 Bad Vöslau


Dieses charmante Apartmenthaus bei 2540 Bad Vöslau besticht durch seine ideale Lage im Südosten. In unmittelbarer Nähe finden Sie alles, was das Herz begehrt: Ärzte, Schulen, Kindergärten sowie Bäckereien und Banken sind bequem erreichbar. Ein Geldautomat und die Post sind nur einen kurzen Fußweg entfernt. Die gute Anbindung an den öffentlichen Nahverkehr mit Buslinien sorgt für eine optimale Erreichbarkeit der Umgebung. Hier wohnen oder arbeiten Sie zentral und dennoch ruhig!

Beschreibung der Immobilie

Günstiges Haus mit Garten, 4 Zimmern und 2 PKW-Stellplätzen in Bad Vöslau!

Charmantes Mittelreihenhaus in Bad Vöslau – Ihr neues Zuhause wartet auf Sie! 





Dieses liebevoll gepflegte Reihenhaus verbindet Komfort, Helligkeit und familienfreundliche Räume – perfekt für Paare oder Familien, die Wert auf ein durchdachtes Wohnkonzept und einen schönen Garten legen.



 Highlights des Hauses:





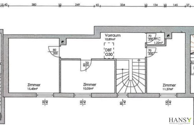
  • Insgesamt 5 Zimmer auf zwei Ebenen – ideal für Familie und Homeoffice
  • Großes Wohnzimmer (22m²) mit südöstlicher Ausrichtung
  • Küche  
  • Obergeschoss:
    • Elternschlafzimmer: 15,4 m²
    • 2 Kinderzimmer: 10-11m2 
    • Separates WC zusätzlich zum Erdgeschoss

  • Erdgeschoss:
  • Vorraum
  • WC
  • Badezimmer mit Dusche
  • Küche 
  • großes Wohnzimmer (23 m2)




Außenbereich & Garten:



  • Ca. 20m2 
  • Perfekt für entspannte Stunden im Freien, Grillabende oder für Kinder zum Spielen
  • 2 Parkplätze im Preis inklusive 


 Lage:



  • Ruhige, familienfreundliche Wohngegend in Bad Vöslau
  • Einkaufsmöglichkeiten, Schulen, Kindergärten und öffentliche Verkehrsmittel in wenigen Minuten erreichbar
  • Nähe zur Natur – ideal für Spaziergänge, Sport oder Erholung
  • Gute Anbindung an umliegende Städte – optimal für Pendler


Dieses Eckreinhaus bietet helles, freundliches Wohnen, eine praktische Raumaufteilung und einen wunderschönen Garten. Hier finden Sie alles, was Sie für ein gemütliches und zugleich komfortables Zuhause brauchen! Zögern Sie nicht länger und rufen Sie mich gleich an. Ich freue mich auf Ihren Anruf!




Infrastruktur / Entfernungen

Gesundheit
Arzt <500m
Apotheke <500m
Klinik <5.000m
Krankenhaus <5.500m

Kinder & Schulen
Kindergarten <1.000m
Schule <500m

Nahversorgung
Supermarkt <1.000m
Bäckerei <500m
Einkaufszentrum <4.000m

Sonstige
Bank <1.000m
Geldautomat <1.000m
Post <1.000m
Polizei <500m

Verkehr
Bus <500m
Bahnhof <2.000m
Autobahnanschluss <2.000m
Straßenbahn <5.500m
Flughafen <4.000m

Angaben Entfernung Luftlinie / Quelle: OpenStreetMap

Eckdaten Objektnr. 2494

Art: Haus - Reihenmittelhaus
Land: Österreich
Baujahr: 1995
Alter: Neubau
Kaufpreis: 290.000,00
Provision: 3% des Kaufpreises zzgl. 20% USt.
Wohnfläche: 95,50 m²
Grundstücksfl.: 220,00 m²
Zimmer: 5
Bäder: 1
WC: 2
Stellplätze: 2
Garten: 20,00 m²
Heizwärmebedarf:  D  109,00 kWh/m²a
fGEE:  C  1,46
Immobilie merken Exposé

Ausstattung

Fliesen, Parkettboden, Gas, Etagenheizung, Einbauküche, Badewanne, Dusche, Kabel/Satelliten-TV, Parkplatz


Immobilie anfragen


Ihre persönliche Beratung

Alexander Kalinowski

Hansy GmbH

T +4367761361090

H +4367761361090