Privatverkauf / Provisionsfrei - Gemütliche Zwei-Zimmer-Altbauwohnung in Ruhelage

Wohnung , 1210 Wien


Beschreibung der Immobilie

Privatverkauf / Provisionsfrei - Gemütliche Zwei-Zimmer-Altbauwohnung in Ruhelage

Zum Verkauf steht diese sonnige, westseitig ausgerichtete Zwei-Zimmer-Wohnung im 1. Obergeschoss eines Altbaus des Jahres 1905. Das Wohnhaus befindet sich in ruhiger Lage direkt am Franz-Polly-Park sowie unweit des Jedleseer Auparks.

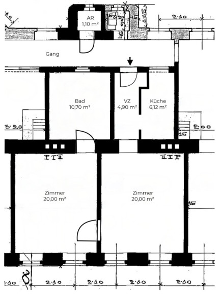
Die insgesamt ca. 62 m² große Wohnung in Ruhelage verfügt über insgesamt zwei Zimmer, Küche, Vorraum, Bad mit WC sowie einen außerhalb der Wohnung liegenden Abstellraum.



Im Kaufpreis enthalten sind zwei der Wohnung zugeteilte, separate Kellerabteile mit insgesamt ca. 9,6 m². Da es sich um einen Privatverkauf handelt, fällt keine Maklerprovision an.



Fakten & Daten



  • Ruhelage mit Fernblick 
  • 1905 errichtetes Wohnhaus 
  • Zwei-Zimmer-Wohnung
  • ca. 62 m² Wohnfläche
  • ca. 20 m² großes Wohnzimmer
  • ca. 20 m² großes Schlafzimmer
  • Badezimmer mit Badewanne und Dusche & Toilette
  • 2 Kellerabteile


Ausstattung



  • Fischgrät-Parkettböden in den Wohnräumen
  • Fliesen in Küche, Vorraum und Nassräumen
  • Einbauküche mit Backrohr, Herd, Kühl-Gefrierkombi und Dunstabzug
  • Badezimmer mit Badewanne, Dusche, Waschbecken und Waschmaschinenanschluss
  • Rollläden
  • Insektenschutzgitter im Schlafzimmer
  • Infrarotheizung mit Fernbedienung und WLAN



Lage & Infrastruktur



Das Verkaufsobjekt befindet sich in ruhiger Wohnlage. Die Versorgungslage entspricht dem städtischen Angebot - sämtliche Geschäfte und Einrichtungen des täglichen Bedarfs befinden sich in Gehnähe. Direkt vor der Haustüre wird derzeit das Projekt zur Begrünung und Aufwertung der Anton-Störck-Gasse mit Pflanzung von Bäumen sowie großzügigen Grünbeeten zur besseren Aufenthaltsqualität umgesetzt. Für diverse Freizeitaktivitäten bieten sich der Jedlesser Aupark sowie die Donauinsel an, die nur einige Gehminuten entfernt zu finden sind.

 



Verkehrsanbindung



Die Bushaltestelle der Autobus-Linien 36A und 36B befindet sich in unmittelbarer Nähe.



Die Station der Straßenbahn-Linie 26 ist in ca. 250 m Entfernung zu finden.

 



Sonstiges



Beim Kauf der Wohnung fällt keine Maklerprovision an!



Wir ersuchen um Verständnis, dass wir aufgrund unserer Nachweispflicht gegenüber dem Eigentümer / der Eigentümerin nur Anfragen mit vollständigen Kontaktdaten (Name, Adresse, Telefonnummer, E-Mail) bearbeiten können.



Sämtliche Angaben zum beschriebenen Verkaufsobjekt sind ohne Gewähr und basieren auf Informationen und Unterlagen, die vom Eigentümer der Liegenschaft bzw. Dritten zur Verfügung gestellt wurden. Für Vollständigkeit, Richtigkeit und Aktualität aller Angaben und Abmessungen wird keine Gewähr übernommen. Allfällige Änderungen, Irrtümer, Satz- und Druckfehler vorbehalten.


Wir weisen darauf hin, dass zwischen dem Vermittler und dem zu vermittelnden Dritten ein familiäres oder wirtschaftliches Naheverhältnis besteht.


Der Vermittler ist als Doppelmakler tätig.

Infrastruktur / Entfernungen

Gesundheit
Arzt <500m
Apotheke <500m
Klinik <1.500m
Krankenhaus <1.500m

Kinder & Schulen
Schule <500m
Kindergarten <500m
Universität <2.000m
Höhere Schule <1.000m

Nahversorgung
Supermarkt <500m
Bäckerei <500m
Einkaufszentrum <1.000m

Sonstige
Geldautomat <1.000m
Bank <1.000m
Post <500m
Polizei <1.000m

Verkehr
Bus <500m
U-Bahn <1.500m
Straßenbahn <500m
Bahnhof <1.500m
Autobahnanschluss <1.000m

Angaben Entfernung Luftlinie / Quelle: OpenStreetMap

Eckdaten Objektnr. 206

Art: Wohnung
Land: Österreich
Baujahr: 1905
Zustand: Gepflegt
Alter: Altbau
Kaufpreis: 225.000,00
Kaufpreis / m²: 3.582,80 €
Provision: Provisionsfrei
Betriebskosten: 167,00 €
MwSt Gesamt: 16,70 €
Wohnfläche: 62,80 m²
Nutzfläche: 62,80 m²
Zimmer: 2
Bäder: 1
WC: 1
Keller: 9,88 m²
Heizwärmebedarf:  D  117,00 kWh/m²a
fGEE:  D  1,93
Immobilie merken Exposé

Ausstattung

Parkett, Fliesen, Elektro, Einbauküche, Badewanne, Dusche, Kabel/Satelliten-TV


Immobilie anfragen


Ihre persönliche Beratung

Marker Immobilien GmbH

Dieter Marker

Marker Immobilien GmbH

T +43 664 3134681

H +43 664 3134681