4 Zimmer Wohnung mit zwei eigenen Terrassen direkt beim Karlsplatz!

Wohnung - Dachgeschoß, 1040 Wien


Karlsplatz / Zentrum / Schwarzenbergplatz / U1 / Oper

Beschreibung der Immobilie

4 Zimmer Wohnung mit zwei eigenen Terrassen direkt beim Karlsplatz!

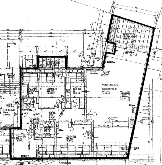
4-Zimmerwohnung mit ca. 160 m² Wohnfläche



und zwei eigenen Terrassen (+ großer Gemeinschaftsdachterrasse mit Blick auf den Karlsplatz)





Die Wohnung befindet sich im DG. Im Haus befindet sich ein Lift, ein kleiner Gemeinschaftsgarten / Aufenthaltsbereich und eine sehr große Gemeinschaftsdachterrasse mit herrlichem Ausblick über die Stadt!





Beschreibung:



Schon beim Betreten der Wohnung empfängt Sie ein großzügiger, repräsentativer Eingangsbereich. Der weitläufige Flur verbindet alle Räume auf harmonische Weise.



Gleich rechts vom Eingangsbereich befindet sich eines der insgesamt drei Zimmer, welches sich flexibel als Schlafzimmer, Homeoffice oder stilvolle Ankleide nutzen lässt. Links liegt ein geschmackvolles Badezimmer mit Badewanne, WC und Waschbecken. Ein zweites, separates WC ergänzt das Raumkonzept und sorgt für zusätzlichen Komfort. Im weiteren Verlauf des Flurs schließen sich die zwei weiteren Schlafzimmer an. Eines davon bietet direkten Zugang zu einer charmanten Terrasse mit ca. 5 m².



Am Ende des Flurs befindet sich die hochwertige, voll ausgestattete Einbauküche. Geradeaus öffnet sich der beeindruckende Wohnbereich, der mit rund 75 m² das Herz der Wohnung bildet. Vom Wohnraum aus gelangen Sie auf die zweite Terrasse mit ca. 18 m².





Geheizt wird mittels einer Zentralheizung (Fernwärme).



Die Gemeinschaftsterrasse im Dachgeschoss bietet eine tolle Gelegenheit um einen weiten Blick über Wien werfen und im Sommer spannende Grill- und Spielabende mit Freunden und Familie - oder auch mit den zukünftigen Nachbarn ;) - verbringen zu können!



Auch ein Personenaufzug und ein Kellerabteil steht dem zukünftigen Mieter während der Dauer des Mietvertrags zur Verfügung.



Ein Garagenstellplatz kann bei Bedarf zusätzlich angemietet werden.







Hinweis:

ORIGINALBILDER SIND BALD VERFÜGBAR



Die abgebildeten Fotos sind lediglich Aufnahmen aus anderen Wohnungen des Hauses! Aufbau gemäß dem Grundrissplan.







Lage:



Das Refugium im 4. Bezirk von Wien liegt nur wenige Gehminuten von der Karlskirche und der U1 (U-Bahn) Station "Karlsplatz" entfernt. Trotz der ruhigen Gegend, bietet sich also eine Vielzahl an Einkaufsmöglichkeiten und sehr guten Verkehrsanbindungen (U1, U4, U2) an. Außerdem befindet sich neben Restaurants und anderen Freizeitaktivitäten ebenfalls die TU (Technische Universität Wiens) in fast greifbarer Nähe!









Konditionen:





Vermietet wird auf 5 Jahre; mit Option auf Verlängerung



Kündigungsverzicht: 1 Jahr; Kündigungsfrist: 3 Monate;



Gesamtmiete (warminkl. Betriebskosten, Heizung und Warmwasser, Lift und Steuern, beträgt): € 4.791,95


Kaution: € 14.400,-  / Vertragserrichung: € 360,- / provisionsfrei für den Mieter!





Strom wird auf den Mieter umgemeldet. 



Garagenstellplätze bei Bedarf separat anmietbar. 



Eine Haushaltsversicheurng wird vor dem Einzug empfohlen;







Kontakt:



Bitte beachten Sie, dass wir aufgrund der Nachweispflicht gegenüber dem Eigentümer nur Anfragen mit vollständiger Angabe der Anschrift bearbeiten können.



Wir senden Ihnen gerne weitere und detaillierte Beschreibungen, sowie Besichtigungstermine zu, sobald wir Ihre Anfrage erhalten haben.



Wir bitten Sie daher um eine Email Anfrage an: stifter@pr-immobilien.at





Weitere Informationen und alle Objekte finden Sie unter: www.pr-immobilien.at

Noch nichts gefunden? Wir informieren Sie über geeignete Immobilienangebote noch vor allen anderen.
Legen Sie jetzt Ihren individuellen Suchagenten unter folgendem Link an. Wir schicken Ihnen passende Immobilien exklusiv vorab zu.

Suchagent anlegen - https://pr-immobilien-real-estate.service.immo/registrieren/de


Der Immobilienmakler erklärt, dass er – entgegen dem in der Immobilienwirtschaft üblichen Geschäftsgebrauch des Doppelmaklers – einseitig nur für den Vermieter tätig ist.

Infrastruktur / Entfernungen

Gesundheit
Arzt <500m
Apotheke <500m
Klinik <500m
Krankenhaus <1.500m

Kinder & Schulen
Schule <500m
Kindergarten <500m
Universität <500m
Höhere Schule <500m

Nahversorgung
Supermarkt <500m
Bäckerei <500m
Einkaufszentrum <500m

Sonstige
Geldautomat <500m
Bank <500m
Post <500m
Polizei <500m

Verkehr
Bus <500m
U-Bahn <500m
Straßenbahn <500m
Bahnhof <500m
Autobahnanschluss <3.000m

Angaben Entfernung Luftlinie / Quelle: OpenStreetMap

Eckdaten Objektnr. 3917

Art: Wohnung - Dachgeschoß
Land: Österreich
Baujahr: 1998
Zustand: Modernisiert
Alter: Neubau
Gesamtmiete: 4.791,95
Kaltmiete (netto): 3.540,00 €
Kaltmiete: 3.981,78 €
Provision: Gemäß Erstauftraggeberprinzip bezahlt der Abgeber die Provision.
Betriebskosten: 375,07 €
Heizkosten: 348,73 €
MwSt Gesamt: 461,44 €
Wohnfläche: 160,26 m²
Zimmer: 4
Bäder: 1
WC: 2
Terrassen: 2
Heizwärmebedarf:  C  51,40 kWh/m²a
fGEE:  C  1,24
Immobilie merken Exposé

Ausstattung

Parkett, Estrichboden, Fliesen, Zentralheizung, Einbauküche, Personenaufzug, Badewanne, Kabel/Satelliten-TV, Wasch/Trockenraum


Immobilie anfragen


Ihre persönliche Beratung

PR-IMMOBILIEN / REAL ESTATE

Marissa Stifter

PR-IMMOBILIEN - REAL ESTATE Paunovic Radisa (Inh. & GF)

T +43 / 676 / 59 00 280

H 0676 / 59 00 280