Moderne Atriumvilla in Grünruhelage mit Edelstahl-Pool

Haus - Villa, 2100 Stetten


Busstation in 220m 20 Min. von Wien über S1 oder A21 Umgebung mit hohem Freizeitwert und Heurigenorten

Beschreibung der Immobilie

Moderne Atriumvilla in Grünruhelage mit Edelstahl-Pool

Sie suchen ein ganz besonderes Refugium für Ihre Familie? Hier sind Sie richtig!



Diese Villa besticht durch ihre moderne Architektur, das Atrium und viele Glasflächen lassen interessante Durchblicke zu.



Trotzdem ist man hier vor neugierigen Blicken geschützt!



Diese Villa ist top ausgestattet mit:



PV-Anlage 30kWp, Batteriespeicher mit 20kW



Erdwärmepumpe



Klimaanlage in Wohnräumen



Sommerküche nach Süden mit Gasgrill, regendichtem elektr. Lamellendach, Jalousien, Infrarotstrahler



Swimmingpool in Edelstahl



Große Olivenbäume in Töpfen und Glashaus



2 PKW-Abstellplätze mit E-Ladestation vor dem Haus.



Raumaufteilung:



Erdgeschoß mit Parkett und Sanitärräume mit Steinzeug:



+Eingangsbereich mit 



+Gäste WC



+Garderobe



+Wirtschaftsraum



+großzügige Wohnküche mit Speis



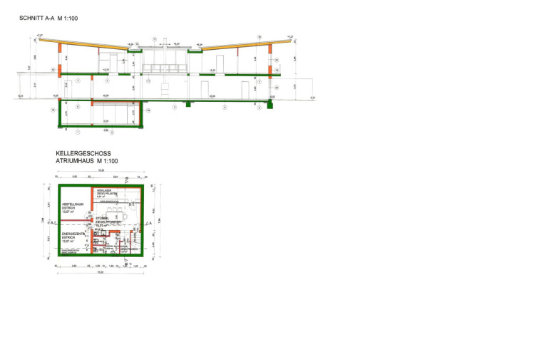
+Atrium mit ca. 6,0 m Raumhöhe, elektrisch öffnende Dachverglasung und Beschattung



+Bibliothek



+Arbeitsraum



+Ausgang auf die gartenseitige Terrasse



+Einliegerbereich mit Bad/Sauna, WC für Nanny oder Betreuerin, Ausgang in den Garten/Sommerküche



Obergeschoß mit Parkett und Sanitärräume mit Steinzeug:



+3 Schlafräume



+2 Bäder



+2 WC´s



+Schrankraum



+Galerie mit Brücke über das Atrium



+Ausgang auf eine Terrasse



Kellergeschoß verfliest:



Das Atrium ist mit 65m² unterkellert!



+Weinkeller klimatisiert und mit Glasabtrennung



+Technikraum mit Erdwärmepumpe und PV-Wechselrichter und Batterie



+Lagerraum



+WC






Hinweis gemäß Energieausweisvorlagegesetz: Ein Energieausweis wurde vom Eigentümer bzw. Verkäufer, nach unserer Aufklärung über die generell geltende Vorlagepflicht, sowie Aufforderung zu seiner Erstellung noch nicht vorgelegt. Daher gilt zumindest eine dem Alter und der Art des Gebäudes entsprechende Gesamtenergieeffizienz als vereinbart. Wir übernehmen keinerlei Gewähr oder Haftung für die tatsächliche Energieeffizienz der angebotenen Immobilie.


Wir weisen darauf hin, dass zwischen dem Vermittler und dem zu vermittelnden Dritten ein familiäres oder wirtschaftliches Naheverhältnis besteht.


Der Vermittler ist als Doppelmakler tätig.

Infrastruktur / Entfernungen

Gesundheit
Arzt <3.000m
Apotheke <4.500m
Krankenhaus <4.000m
Klinik <9.000m

Kinder & Schulen
Schule <500m
Kindergarten <500m
Universität <8.500m

Nahversorgung
Supermarkt <2.000m
Bäckerei <3.000m
Einkaufszentrum <7.000m

Sonstige
Bank <500m
Geldautomat <500m
Post <2.000m
Polizei <4.500m

Verkehr
Bus <500m
Autobahnanschluss <1.500m
Straßenbahn <8.500m
Bahnhof <1.000m

Angaben Entfernung Luftlinie / Quelle: OpenStreetMap

Eckdaten Objektnr. 3479/1664

Art: Haus - Villa
Land: Österreich
Baujahr: 2003
Zustand: Neuwertig
Alter: Neubau
Kaufpreis: 1.950.000,00
Provision: 3% des Kaufpreises zzgl. 20% USt.
Wohnfläche: 300,00 m²
Nutzfläche: 408,00 m²
Grundstücksfl.: 600,00 m²
Zimmer: 10
Bäder: 3
WC: 5
Terrassen: 1
Stellplätze: 2
Garten: 390,00 m²
Keller: 65,00 m²
Immobilie merken Exposé

Ausstattung

Wohnküche / offene Küche, Swimmingpool


Immobilie anfragen


Ihre persönliche Beratung

RE/MAX Trend

Mag. Ing. Harald Urban

RE/MAX Trend

T +43 69915533400

H +43 699 155 33 400