Eventlocation mit riesiger Terrasse und spektakulärem Fernblick mieten - Toplage im Naturpark Hohe Wand

Gastgewerbe , 2724 Maiersdorf , Hochkogelstraße


- Naturpark Hohe Wand - zahlreiche Wanderwege und Kletterwände in direkter Umgebung - in nur einer Stunde Fahrzeit gelangen Sie in die Wiener Innenstadt

Beschreibung der Immobilie

Eventlocation mit riesiger Terrasse und spektakulärem Fernblick mieten - Toplage im Naturpark Hohe Wand

Sehr geehrte Damen und Herren,



inmitten des beliebten Naherholungsgebiets „Naturpark Hohe Wand“ steht die beeindruckende Eventfläche im Hochkogelhaus auf der Hohen Wand für Tagesmieten zur Verfügung.



Ob für private Feiern, Firmenveranstaltungen, Yoga Retreats, Seminare, Workshops oder andere besondere Anlässe – die Location bietet Ihnen und Ihren Gästen eine spektakuläre Kulisse mit einzigartigem Fernblick über das gesamte Tal.



Neben der Eventfläche bieten wir auch Self-Check-in-Apartments an, die separat über Booking.com, Airbnb, direkt über unsere Homepage oder über unser Social Media @hochkogelhaus_flyingoasis angemietet werden können. Diese gemütlichen Apartments ermöglichen es Ihren Gästen, ihren Aufenthalt direkt vor Ort zu verlängern, ohne sich um eine externe Unterkunft kümmern zu müssen. So können sie nach den Feierlichkeiten entspannt übernachten und den Tag im wunderschönen Naturpark ausklingen lassen – eine perfekte Ergänzung zu Ihrer Veranstaltung.



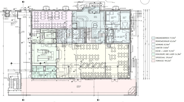
Die Fläche im Überblick:



  • Großer Gästebereich: Platz für bis zu 118 Gäste
  • Mehrzweckraum/Veranstaltungsraum: Platz für bis zu 56 Gäste
  • Terrasse: ca. 200 m² mit unvergleichlichem Panorama
  • Vollausgestattete Küche
  • Bar-/Schankbereich
  • 6 Kühlräume
  • Getrennte Toiletten




Highlights:



  • Lage direkt an der Klippe der Hohen Wand
  • Fernblick im wahrsten Sinne des Wortes
  • Gastrofläche sofort einsatzbereit




Kosteninformation:



Tagesmiete ab € 1000,– netto (inkl. Grundausstattung).



Kontaktieren Sie uns gerne für nähere Informationen oder um Ihren Wunschtermin zu reservieren. Besichtigungen sind nach Absprache auch abends oder am Wochenende möglich.





Zusätzliche Anmietungsmöglichkeiten im Haus (auf Anfrage):



  • Büroflächen
  • Mitarbeiterwohnungen
  • Gästezimmer/Apartments (24 m² bis 35 m²)
  • Lagerräume
  • Kegelbahn




Kontaktieren Sie uns jederzeit für nähere Informationen oder einen Besichtigungstermin (gerne auch spät abends oder am Wochenende).



Wir freuen uns auf Ihre Anfrage!


Wir weisen darauf hin, dass zwischen dem Vermittler und dem zu vermittelnden Dritten ein familiäres oder wirtschaftliches Naheverhältnis besteht.


Der Vermittler ist als Doppelmakler tätig.

Eckdaten Objektnr. 271545003

Art: Gastgewerbe
Land: Österreich
Zustand: Gepflegt
Alter: Neubau
Kaltmiete (netto): 1.000,00 €
Kaltmiete: 1.000,00 €
MwSt Gesamt: 200,00 €
Nutzfläche: 400,00 m²
Bäder: 2
WC: 6
Terrassen: 1
Heizwärmebedarf:  C  76,00 kWh/m²a
Immobilie merken Exposé

Ausstattung

Fliesen, Zentralheizung, Einbauküche, Angeschl. Bar, Gastterrasse


Immobilie anfragen


Ihre persönliche Beratung

Immobiliaris GmbH

Lea Leichtfried

Immobiliaris GmbH

T +43 664 1607111