Natur trifft Moderne: 2-Zimmer-Wohnung mit Balkon und Carport in Kuchl
Wohnung
,
5431
Kuchl
Das Wohnhaus befindet sich in herrlicher Natur- und Ruhelage, im südlichen Bereich des Bundeslands Salzburgs, nur ca. 20 km von der Stadt Salzburg entfernt, im Siedlungsgebiet Unterlangenberg von Kuchl. Die Gemeinde Kuchl liegt am rechten Ufer der Salzach und ist umgeben vom herrlichen Bergpanorama des hohen Gölls, Tennengebirges und der Osterhorngruppe. Eine gute Infrastruktur ist garantiert: alle Einrichtungen des täglichen Bedarfs sind mühelos in wenigen Autominuten erreichbar und auch der Autobahn-Anschluss Kuchl ist nicht weit entfernt.
Beschreibung der Immobilie
Natur trifft Moderne: 2-Zimmer-Wohnung mit Balkon und Carport in Kuchl
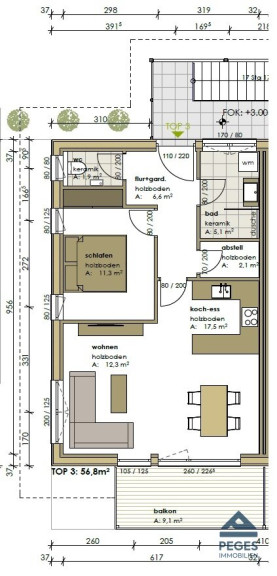
Die 2-Zimmer-Wohnung verfügt über eine Wohnfläche von ca. 56,80 m² zuzüglich 9,10 m² Balkon und liegt im 1. Obergeschoß und damit obersten Stock eines kleinen Wohnhauses mit nur 4 Wohneinheiten, welches in energiesparender Holzbauweise (Massivholz samt Dämmung) errichtet wurde. Über einen eigenen Eingang über das außenliegende Treppenhaus zugänglich, befindet sich die Wohnung in herrlicher Lage und umgeben von Grün direkt am Ortsrand von Kuchl, in ruhiger ländlicher Wohnumgebung.
Neben der Lage besticht diese Wohnung vor allem durch eine ausgezeichnete Raumaufteilung, Fußbodenheizung in allen Räumen und ein gemütliches Wohnambiente, das auch durch den durchdachten Einsatz von Naturmaterialien (Holz) und einem natürlichen Farbkonzept gekonnt in Szene gesetzt wird.
Über den freundlich gestalteten Eingangsbereich gelangt man in die mit Holz-Bodenbelägen ausgestatteten Wohnräume. Der Kochbereich ist harmonisch in den Wohnraum integriert und mit einer Einbauküche in weißem Design mit dunkler Arbeitsplatte (inkl. Geräten: Geschirrspüler, usw.)ausgestattet. Holzbalken an der Decke sorgen in der gesamten Wohnung für ein besonderes Flair und Gemütlichkeit. Der angenehm helle Wohnbereich mit Zugang zum überdachten Balkon mit traumhaftem Grün- und Bergblick bietet Platz für das gesellige Beisammensein. Für die ideale Ruheumgebung sorgt das heimelige Schlafzimmer mit Schranknische. (Der Schrank im Schlafzimmer kann eventuell von der Mieterin übernommen werden - optional.)
Der gemütliche Balkon mit südlicher Ausrichtung ist perfekt geschnitten und bietet die perfekte Umgebung zum Entspannen. Natürlich-modern präsentiert sich auch das Bad mit Dusche mit Glastrennwand und Waschmaschinen-Anschluss undspiegelt so ebenfalls die Kombination aus geschmackvollem Design und zeitgemäßer Ausstattung wider.
Raumeinteilung: Vorraum, Bad (mit Dusche und WM-Anschluss), WC separat, Abstellraum, Wohnzimmer mit Küchenzeile, Schlafzimmer; Balkon, Kellerabteil, 1 Carport-Stellplatz
Die Beheizung der Wohnung sowie auch die Warmwasserbereitung erfolgen gebäudezentral mittels Wärmepumpe. Die Kosten hierfür sind bereits in den Betriebskosten inkludiert. Kabel-TV und Internet sind über die Salzburg-AG möglich.
Ein PKW-Stellplatz im Carport sowie ein Kellerabteil (mit Stromanschluss) sind der Wohnung fix zugeordnet.
Wir weisen im Auftrag des Eigentümers höflich darauf hin, dass die Wohnung bevorzugt an eine Einzelperson bzw. max. an 2 Personen/ Erwachsene (berufstätig/studierend - entsprechende Nachweise sind bereitzustellen, Nichtraucher, ohne Haustiere) vermietet wird.
Die Kosten der vertraglichen Abwicklung sind vom Mieter zu übernehmen.
Vereinbaren Sie jetzt Ihren Besichtigungstermin und überzeugen Sie sich von den Vorzügen dieser Immobilie.
Wir freuen uns auf Ihre Kontaktaufnahme per Email, samt detaillierten Informationen/ Unterlagen zu Ihrer Person - bitte beachten Sie, dass nur Anfragen mit vollständigen Daten bzw. entsprechenden Unterlagen bearbeitet werden.
Wir weisen darauf hin, dass zwischen dem Vermittler und dem zu vermittelnden Dritten ein familiäres oder wirtschaftliches Naheverhältnis besteht.
Der Immobilienmakler erklärt, dass er – entgegen dem in der Immobilienwirtschaft üblichen Geschäftsgebrauch des Doppelmaklers – einseitig nur für den Vermieter tätig ist.
Infrastruktur / Entfernungen
Gesundheit
Arzt <2.500m
Apotheke <2.500m
Klinik <5.000m
Krankenhaus <5.500m
Kinder & Schulen
Schule <2.000m
Kindergarten <2.000m
Universität <2.000m
Höhere Schule <10.000m
Nahversorgung
Supermarkt <1.500m
Bäckerei <2.500m
Sonstige
Bank <2.500m
Geldautomat <2.500m
Post <2.500m
Polizei <5.500m
Verkehr
Bus <1.500m
Bahnhof <2.000m
Autobahnanschluss <1.000m
Angaben Entfernung Luftlinie / Quelle: OpenStreetMap
Eckdaten Objektnr. 7230/616
| Art: | Wohnung |
| Land: | Österreich |
| Baujahr: | 2015 |
| Zustand: | Neuwertig |
| Gesamtmiete: | 950,00 € |
| Kaltmiete (netto): | 750,00 € |
| Kaltmiete: | 950,00 € |
| Provision: | Gemäß Erstauftraggeberprinzip bezahlt der Abgeber die Provision. |
| Betriebskosten: | 200,00 € |
| Wohnfläche: | 56,80 m² |
| Zimmer: | 2 |
| Bäder: | 1 |
| WC: | 1 |
| Balkone: | 1 |
| Stellplätze: | 1 |
| Heizwärmebedarf: | B 31,00 kWh/m²a |
| fGEE: | A+ 0,63 |
Ausstattung
Parkett, Fliesen, Fußbodenheizung, Zentralheizung, Einbauküche, Wohnküche / offene Küche, Bad mit Fenster, Dusche, Kabel/Satelliten-TV, Carport
Ihre persönliche Beratung
Dieser Makler ist ein offizielles Mitglied des IR – ir.at Mehr Erfahren

