Endlich Platz für die ganze Familie - Gepflegte 4-Zimmer-Wohnung mit Balkon und Gemeinschaftsgarten, Nähe Hackinger Schlosspark!

Wohnung - Etage, 1130 Wien,Hietzing


Hackinger Schlosspark, Bildungscampus der Dominikanerinnen, Bahnhof Hütteldorf, St. Josef Krankenhaus,

Beschreibung der Immobilie

Endlich Platz für die ganze Familie - Gepflegte 4-Zimmer-Wohnung mit Balkon und Gemeinschaftsgarten, Nähe Hackinger Schlosspark!

Willkommen in Ihrem neuen Zuhause umgeben von Natur und dennoch in der Stadt!



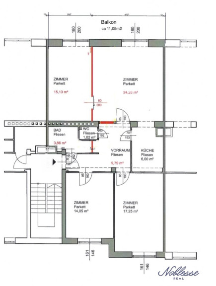
Diese großzügige und gepflegte Etagenwohnung, befindet sich im 2. Stock (nach Hochparterre, ohne Lift) eines gepflegten und sanierten Wohnhauses, aus den 60er Jahren. Auf einer Wohnfläche von ca. 91 m² haben Sie nicht nur ausreichend Platz für Ihre individuellen Wohnbedürfnisse, sondern auch ein Zuhause welches reichlich Raum für Groß und Klein bietet. Ab Sommer 2026, könnten Sie diese gemütliche Immobilie Ihr Eigenheim nennen. 



Die Raumaufteilung der ca. 2015 sanierten Wohnung gliedert sich wie folgt:

- Zentraler Eingangsbereich mit Einbaumöbeln welche ausreichend Stauraum bieten

- 2 separate Schlafzimmer (Nord-Ost) mit wunderbarem Blick in Richtung Neuwaldegg und Jubiläumswarte.

- Innenliegendes Bad mit Dusche, Waschtisch, Waschmaschienanschluss und Elektroboiler für die Warmwasserversorgung

- separate Toilette

- moderne, voll ausgestattete Küche mit offener Durchreiche zum Wohnzimmer 

- Wohnzimmer und ein weiteres Schlafzimmer mit Zugang zum ca. 11m2, süd-westseitig ausgerichteten Balkon

- eigenes Kellerabteil im KG zur persönlichen Nutzung 



Mit insgesamt 4 Zimmern, ist diese Wohnung ideal für Familien oder Personen, die Wert auf eine durchdachte Raumaufteilung und eine ruhige, familiäre Umgebung legen. 2015 wurde die gesamte Wohnung saniert und unter anderem die Elektro- sowie die Wasserleitungen erneuert. In sämtlichen Räumen befindet sich Parkettboden, im Vorraum, der Küche sowie im Bad sind Fliesen verlegt worden. Die moderne Einbauküche verfügt über eine Durchreiche ins Wohnzimmer, die das familiäre Wohnkonzept abrundet. An sonnigen Tagen entspannen Sie sich auf dem Balkon von welchem Sie einen wunderbaren Ausblick in den grünen Gemeinschaftsgarten haben. Die aktuellen Kinderzimmer sind Nord-Ostseitig ausgerichtet und bieten einen Blick über das Wiental - Ein Highlight zum Silvesterfeuerwerk. 



Ausstattungsmerkmale:

ca. 2012 wurde das Wohnhaus thermisch saniert. Beheizt wird mittels Öl-Zentralheizung die monatlichen Kosten werden über die Betriebskosten abgerechnet. Warmwasseraufbereitung mittels Elektroboiler im Bad und Untertischboiler in der Küche. Parkett in Wohnräumen, Fliesen in Vorraum, Bad, WC und Küche. Einbaumöbel im Vorraum, Küche, Badezimmer und Schlafzimmer. Außenrollläden an der Balkonfront inkl. einer Markise über die gesamte Balkonlänge. Auf den südseitigen Fenstern, in Richtung Balkon, ist zusätzlich eine 3M Sonnenschutzfolie angebracht worden. 



Lage / öffentliche Verkehrsanbindung und Infrastruktur:

Profitieren Sie von einer, trotz ruhig gelegenen Umgebung, guten Verkehrsanbindung: Buslinie 53A ca. 4min Fußweg, Bahnhof Hütteldorf ca 10 min Fußweg oder etwas schneller via Buslinie 53A erreichbar. Am Bahnhof Hütteldorf finden Sie folgende Anbindungen: U-Bahnlinie U4, Bahnlinie S45, S50 und S80, sowie zahlreiche Buslinien u.a. 47B, 49A, 50A, 52A, 52B. Sie gelangen in kürzester Zeit ins Wiener Stadtzentrum aber auch in die umliegenden Bezirke. 



Für die tägliche Versorgung ist ebenfalls bestens gesorgt: In der Nähe finden Sie alles, was Sie benötigen. Ärzte, Apotheken, Schulen (Schulcampus der Dominikanerinnen, Waldorfschule Wien West), Kindergärten (im selben Haus, befindet sich auf der Nachbarstiege eine private Kindergartengruppe für Kinder zwischen 1,5 und 6 Jahren), Supermärkte und Bäckereien sind fußläufig erreichbar und bieten Ihnen eine hohe Lebensqualität. Für einen längeren Shoppingausflug erreichen Sie in kürzester Zeit via öffentlicher Verkehrsmittel oder PKW das Auhofcenter. Fussballfans werden die kurze Distanz zum Allianz Stadion neben dem Bahnhof Hütteldorf schätzen. Das Naherholungsgebiet Lainzer Tiergarten ist fußläufig in wenigen Minuten über das Nikolaitor erreichbar. Auch das Hütteldorfer Bad liegt in einem Umkreis von 20 Gehminuten. 



Kosten:



Kaufpreis 498.700,00 €

Derzeitige monatliche BK: € 181,50

Derzeitige Monatliche Reparaturrücklage: € 105,00

Derzeitige monatliche Heizkosten: € 126,56



Sand der Reparaturrücklage per 31.12.2024 ca. € 12.474,76



Frühester Einzug Sommer 2026!



Nebenkosten Kauf:

Grundbucheintragung: 1,1% des vereinbarten Kaufpreises

Grunderwerbsteuer: 3,5% des vereinbarten Kaufpreises

Eintragung etwaiger Pfandrechte: ca. 1,2% des vereinbarten Kaufpreises 

Treuhändische Abwicklung & Kaufvertragserrichtung: Gerne unterstützen wir Sie bei der Auswahl eines Treuhänders (Kosten: ca. 1,5% des Kaufpreises zuzüglich 20% UST und Nebenkosten für etwaige Beglaubigungen) 

Provision: 3% des vereinbarten Kaufpreises zuzüglich 20% UST 



Bilder ersetzen nie den tatsächlichen Eindruck. Gerne stehen wir Ihnen für einen persönlichen Besichtigungstermin vor Ort zur Verfügung. Da die Wohnung noch bis Mitte 2026 bewohnt wird, sind Termine ausschliesslich nach Rücksprache mit den derzeitigen Eigentümern möglich. Wir bitten um Verständis, dass keine kurzfristigen Termine vergeben werden können.


Für Fragen oder einen Terminvereinbarung erreichen Sie uns per Mail unter office@noblesse-real.com oder telefonisch.

Frau Karasinski-Filipsky, BA: +43660 705 13 31
Frau DI Karasinski: +43 676 925 22 22



Sämtliche Informationen stammen aus den Unterlagen der Verkäufer und wurden sorgfältig aufbereitet. Noblessereal Karasinski KG übernimmt keinerlei Gewähr für deren Vollständigkeit oder Richtigkeit. 


Der Vermittler ist als Doppelmakler tätig.

Infrastruktur / Entfernungen

Gesundheit
Arzt <1.000m
Apotheke <1.000m
Klinik <2.500m
Krankenhaus <500m

Kinder & Schulen
Schule <500m
Kindergarten <1.000m
Universität <1.500m
Höhere Schule <5.000m

Nahversorgung
Supermarkt <500m
Bäckerei <500m
Einkaufszentrum <3.500m

Sonstige
Geldautomat <500m
Bank <1.000m
Post <1.500m
Polizei <1.000m

Verkehr
Bus <500m
U-Bahn <500m
Straßenbahn <1.000m
Bahnhof <500m
Autobahnanschluss <3.500m

Angaben Entfernung Luftlinie / Quelle: OpenStreetMap

Eckdaten Objektnr. 5941

Art: Wohnung - Etage
Land: Österreich
Baujahr: 1960
Zustand: Gepflegt
Kaufpreis: 498.700,00
Provision: 3% des Kaufpreises zzgl. 20% USt.
Betriebskosten: 165,00 €
Heizkosten: 105,47 €
MwSt Gesamt: 37,59 €
Wohnfläche: 90,91 m²
Zimmer: 4
Bäder: 1
WC: 1
Balkone: 1
Keller: 3,00 m²
Heizwärmebedarf:  C  85,00 kWh/m²a
Immobilie merken Exposé

Ausstattung

Fliesen, Parkettboden, Öl, Zentralheizung, Einbauküche, Dusche


Immobilie anfragen


Ihre persönliche Beratung

Sara Karasinski - Filipsky, BA

Noblessereal Karasinski KG

T +43 660 7051331