Historischer Charme und moderne Eleganz - Stilaltbau mit Balkon

Wohnung , 1040 Wien , Petzvalgasse 4


Alois-Drasche-Park / Hauptbahnhof / Schloß Belvedere

Beschreibung der Immobilie

Historischer Charme und moderne Eleganz - Stilaltbau mit Balkon

Im historischen Wieden, nahe dem Stadtzentrum, entsteht ein Ort mit besonders hoher Lebensqualität für Großstädter, die Urbanität und Individualität schätzen. Direkt beim pulsierenden Hauptbahnhof wird ein architektonisches Erbe aus der Gründerzeit aufwendig saniert und viel Raum für neue Lebenswelten geschaffen. Das Projekt ermöglicht Wohnkultur mit dem gewissen Etwas und macht die wichtigsten Trends der Zukunft erlebbar: flexible Architektur, Vernetzung, Mobilität und Komfort. Dank der zentralen Lage und der perfekten Anbindung in die ganze Welt, macht die Petzvalgasse 4 seine Bewohner unabhängig, flexibel und mobil – und lässt Grenzen verschwinden.

 



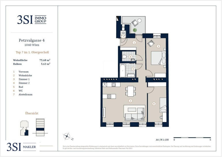
Top 7 im 1. Obergeschoß (über Hochparterre)



Traumhaft sanierte Altbauwohnung viel Raum und einer Wohnfläche von ca. 81m² zzgl. ca. 4,50m² Balkon:



  • Vorraum
  • Abstellraum mit Waschmaschinenanschluss
  • Separates WC mit Waschbecken
  • Wohnküche mit über 30m²
  • 2 Schlafzimmer
  • Badezimmer mit  Wanne 
  • Balkon


Da sich die Wohnung derzeit in Sanierung befindet, handelt es sich bei den Bildern um eine bereits fertigstellte Wohnung im Haus mit vergleichbarer Ausstattung.




Lage



Die einzigartige Nähe zum Hauptbahnhof öffnet Türen zu neuen Welten: direkt bei der wichtigsten nationalen und internationalen Verkehrsdrehscheibe Österreichs können Sie unbegrenzte Mobilität auskosten – 365 Tage im Jahr. Tauchen Sie ein in die einzigartige Wiener Metropole und genießen Sie ein Leben am Puls der Stadt. Oder entdecken Sie die aufregendsten Städte und Orte der Welt. Sämtliche öffentliche Verkehrsmittel wie U-Bahn, Straßenbahn, S-Bahn und Bus sind rund um das Projekt in wenigen Minuten zu finden. Auch Knotenpunkte wie den Flughafen Wien-Schwechat erreicht man schnell und unkompliziert.



Öffentliche Verkehrsmittel- Fußweg:



  • Südtiroler Platz – Hauptbahnhof, Schnellbahn+ U-Bahn          2 Minuten
  • Linien 1, 18, O, D, 13A, 69A                                                     4 Minuten
  • Busbahnhof                                                                               4 Minuten
  • Hauptbahnhof                                                                           5 Minuten

     


Nebenkosten



Der guten Ordnung halber halten wir fest, dass, sofern im Angebot nicht anders vermerkt, bei erfolgreichem Abschlussfall eine Provision anfällt, die den in der Immobilienmaklerverordnung BGBI. 262 und 297/1996 festgelegten Sätzen entspricht – das sind 3 % des Kaufpreises zzgl. 20 % USt. Diese Provisionspflicht besteht auch dann, wenn Sie die Ihnen überlassenen Informationen an Dritte weitergeben. Es besteht ein wirtschaftliches Naheverhältnis zum Verkäufer. Letztlich weisen wir darauf hin, dass wir als Doppelmakler tätig sind und ein familiäres/wirtschaftliches Naheverhältnis zwischen der 3SI Makler GmbH und der Verkäuferin besteht. 



Die Vertragserrichtung und Treuhandabwicklung ist gebunden an die Kanzlei Mag. Schreiber A-1010 Wien, Schottenring 16. Die Kosten betragen 1,5% + 20% Ust + Barauslagen.


Wir weisen darauf hin, dass zwischen dem Vermittler und dem zu vermittelnden Dritten ein familiäres oder wirtschaftliches Naheverhältnis besteht.

Infrastruktur / Entfernungen

Gesundheit
Arzt <100m
Apotheke <250m
Klinik <475m
Krankenhaus <775m

Kinder & Schulen
Schule <275m
Kindergarten <75m
Universität <725m
Höhere Schule <950m

Nahversorgung
Supermarkt <125m
Bäckerei <150m
Einkaufszentrum <550m

Sonstige
Geldautomat <200m
Bank <325m
Post <425m
Polizei <475m

Verkehr
Bus <100m
U-Bahn <175m
Straßenbahn <125m
Bahnhof <125m
Autobahnanschluss <2.350m

Angaben Entfernung Luftlinie / Quelle: OpenStreetMap

Eckdaten Objektnr. 21643

Art: Wohnung
Land: Österreich
Baujahr: 1900
Zustand: Erstbezug
Alter: Altbau
Kaufpreis: 595.000,00
Provision: 3% des Kaufpreises zzgl. 20% USt.
Betriebskosten: 129,33 €
MwSt Gesamt: 16,04 €
Wohnfläche: 75,68 m²
Nutzfläche: 81,31 m²
Zimmer: 3
Bäder: 1
WC: 1
Balkone: 1
Heizwärmebedarf:  B  44,20 kWh/m²a
fGEE:  A  0,94
Immobilie merken Exposé

Ausstattung

Parkett, Fliesen, Gas, Zentralheizung, Wohnküche / offene Küche, Personenaufzug, Westbalkon, Badewanne, Kabel/Satelliten-TV


Immobilie anfragen


Ihre persönliche Beratung

3SI Makler GmbH

Georg Mels-Colloredo

IMMOfair

T +43 1 607 58 58 - 51

H +43 676 79 05 825

F +43 1 607 55 80