|GARTENWOHNUNG | MITTEN IN DER STADT |UNIKAT FÜR FREIGEISTER | EIGENNUTZER | BF 14B | VILLAGE IM DRITTEN | FERTIGSTELLUNG 2027

Wohnung , 1030 Wien , Otto-Preminger-Straße 18


Beschreibung der Immobilie

|GARTENWOHNUNG | MITTEN IN DER STADT |UNIKAT FÜR FREIGEISTER | EIGENNUTZER | BF 14B | VILLAGE IM DRITTEN | FERTIGSTELLUNG 2027

WOHNEN IM VILLAGE IM DRITTEN



Mit dem VILLAGE IM DRITTEN entsteht in Wien ein neues, lebendiges Stadtquartier mit rund 2.000 Wohnungen, dazu Büro- und Gewerbeflächen, Nahversorgung sowie Kinderbetreuungs- und Bildungseinrichtungen, welches das moderne Wohnen mit viel Grün, Gemeinschaft und nachhaltiger Energieversorgung verbindet.




Das Baufeld 14B mit dem Slogan "Unikat für Freigeister" nimmt dabei eine besondere Rolle ein: Zwei Bauteile die sich zu einem Baukörper vereinen – sechs bzw. elf Geschosse hoch – fügen sich harmonisch in die Umgebung ein und eröffnen Platz für 109 Wohnungen mit zwei bis fünf Zimmern sowie zwei Gewerbeflächen im Erdgeschoss. Das Projekt spricht besonders Jene an, die zentrumsnah, urban und gleichzeitig naturnah wohnen möchten. Hier finden Familien, Paare, Singles wie auch ältere Generationen ein Zuhause, das den Wunsch nach Individualität mit dem Gefühl von Gemeinschaft verbindet.





ARCHITEKTUR MIT CHARAKTER



Von PLSA ZT Architekten geplant, entsteht am Baufeld 14B ein echtes „Kubaturwunder“ für vielfältige Arbeits- und Lebensräume, im Verbund mit einer hohen Aufenthaltsqualität im Freien. Durch die schachbrettartige Ausbildung von Vor- und Rücksprüngen sowie sich geschoßweise wechselnden Fassadenansichten entstehen einzigartige Grundrisse, die je nach Wohnungsgröße gleich mehrere (Garten)-Loggien bzw. Balkone ermöglichen. Vorwiegend großzügige raumhohe Fensterfronten und begrünte Loggien bringen viel Licht ins Innere und lassen die Natur Teil des Wohnens werden.



Ein besonderes Highlight ist der offene Atriumbereich im Erdgeschoss, der als „Grüne Mitte“ fungiert, die Architektur auflockert und Begegnungszonen schafft. Im 4. Obergeschoss verbindet ein begrünter Dachgarten die beiden Bauteile – ein Ort des Rückzugs ebenso wie des Austauschs. Pergolen und grüne Oasen verwandeln ihn in eine urbane Ruhezone mit hoher Aufenthaltsqualität.




DAS PROJEKT – Leben mit Vielfalt



Die Einzigartigkeit des Projektes wird durch die architektonische Gestaltung hervorgehoben, Großteiles mit Sichtbetondecken und durch die Vor- bzw. Rücksprünge entstehen Sichtverbindungen die den Wohnungen eine außergewöhnliche Großzügigkeit und ein loftartiges Ambiente verleihen. Ergänzt wird das Angebot im Haus mit einem 2-geschoßigen Boulderraum und einem Multifunktionsraum mit großer Terrasse, zwei Gewerbeflächen sowie einer Tiefgarage. Die Wohnungen sind in Größen von 43 bis 131 m² geplant und bieten flexible Grundrisse für unterschiedlichste Bedürfnisse – vom kompakten Zwei-Zimmer-Apartment bis hin zur großzügigen Fünf-Zimmer-Familienwohnung. Damit entsteht ein vielseitiges Angebot für gemeinsames Erleben – generationenübergreifend und individuell nutzbar.





  • 109 freifinanzierte Eigentumswohnungen
  • 58 Tiefgaragenplätze
  • 2 – 5 Zimmerwohnungen
  • Fußbodenheizung
  • Kinderspielbereich mit 2-geschoßigen Boulderraum (Kletterhalle)
  • Großer Multifunktionsraum mit Küche, Werkbank und vorgelagerter Terrasse
  • Weitläufige Parkanlage direkt vor der Türe
  • Kinderwagenabstellräume
  • Besonders großzügiger Fahrradabstellraum mit direkter Zufahrt




DIE AUSSTATTUNG – Wohnen mit Stil und Komfort



Die Wohnungen überzeugen mit einer gehobenen Ausstattung und vielen liebevollen Details, die den Alltag erleichtern und gleichzeitig das Wohngefühl steigern:



  • Flächenbündige Holz-Alu-Fenster für lichtdurchflutete Räume
  • Außenliegender Sonnenschutz mit Markisoletten, Kassettenmarkisen, Screens oder textilen Vorhängen (je bauphysikalischer Vorgabe)
  • Ausgewählte Feinsteinzeugfliesen und Sanitärausstattung
  • Flächenbündige Innentüren bzw. teilweise raumhohe Innentüren bei den Loggien
  • Alle Wohnungen mit Freiflächen, teils mit mehreren Loggien bzw. selbst bepflanzbare Gartenloggien in großen Wohnungen als private Rückzugsräume
  • Fußbodenheizung samt Kühlung durch Energienetzversorgung
  • Innovative Lüftungssysteme kontrollierte Wohnraumlüftung
  • Attraktive Außenräume mit großzügigen Abständen zu Nachbargebäuden


Jede Wohnung ist so gestaltet, dass sie Lebensqualität und Komfort vereint – perfekt für Menschen, die ihr Zuhause als Ort der Ruhe und Inspiration schätzen.




Nachhaltigkeit – für eine bewusste Zukunft




Das Energiekonzept von VILLAGE IM DRITTEN ist zukunftsweisend:



  • Alle Baufelder sind mit einem Energienetz verbunden
  • Erdwärmesonden unter den Gebäuden
  • Photovoltaikanlagen am Dach
  • Klima:aktiv Silber-Zertifizierung


So entsteht ein Wohnraum, der nicht nur für heute, sondern auch für kommende Generationen gedacht ist. Nachhaltigkeits-Pioniere und Eco-Tech-Affine finden hier einen Lebensstil, der ökologisches Bewusstsein und modernen Komfort verbindet.




VILLAGE IM DRITTEN setzt in puncto Energieversorgung europaweit neue Maßstäbe. So viel Energie wie möglich soll vor Ort produziert und verwendet werden. Zum Einsatz kommen dabei 500 Erdwärmesonden mit 150 Tiefe, mehrere großflächige Dach-PV-Anlagen mit über einem Megawatt installierter Leistung, Wärmepumpen und ein Anschluss an die Fernwärme. Bis zu 80 Prozent der Heizenergie im VILLAGE IM DRITTEN werden aus lokalen Quellen gewonnen.



Nähere Informationen auf: https://villageimdritten.at/wohnungsfinder/wohnungsfinder-baufeld-14b/



Provisionsfrei für den Käufer

Fertigstellung: 1. Quartal 2027




Dieses Projekt wird von ARE Austrian Real Estate entwickelt und realisiert. ARE ist eine der größten Immobilieneigentümerinnen in Österreich. Das Portfolio umfasst 590 Büro-, Wohn-, und

Gewerbeliegenschaften mit rund 1,9 Millionen Quadratmetern vermietbarer Fläche. Der Verkehrswert des Bestandes beträgt rund 4,9 Milliarden Euro. Die Entwicklung attraktiver Stadteile mit durchdachter Infrastruktur zählt zu den Kernkompetenzen der ARE.





Nähere Informationen zu den Wohnungen auch online unter: https://villageimdritten.at/wohnungsfinder/





Nebenkosten:

3,5% Grunderwerbsteuer

1,1% Grundbuchseintragungsgebühr

Kosten der Vertragserrichtung und der grundbücherlichen Durchführung

Es gelten unsere Allgemeinen Geschäftsbedingungen, die unter www.ehl.at/agb abrufbar sind.

Sämtliche Angaben basieren auf Informationen und Unterlagen die vom Eigentümer bzw. Auftraggeber

zur Verfügung gestellt wurden und sind ohne Gewähr.





Disclaimer:



Alle Informationen, Angaben, Pläne und Visualisierungen in diesem Exposé sind unverbindlich. Änderungen vorbehalten. Kein Rechtsanspruch ableitbar. Dargestellte Grundrisse und Ansichten beruhen auf Daten, die den aktuellen Planungsstand repräsentieren und im Zuge der weiteren Planungs- und Ausführungsphase variieren können. Alle gezeigten Ansichten der



Gebäude sowie der Einrichtungen sind Symbolbilder und freie künstlerische Darstellungen. Allenfalls dargestellte Einrichtungsgegenstände dienen ausschließlich der Veranschaulichung und werden nicht von der Verkäuferin zur Verfügung gestellt. Die Inhalte dieses Exposés wurden mit größtmöglicher Sorgfalt und unter Beachtung von Rechten Dritter (z. B. Urheberrecht) erstellt. Zwar wird dieses Exposé regelmäßig auf Aktualität, Vollständigkeit und Richtigkeit überprüft. Dies kann jedoch trotzdem nicht jederzeit gewährleistet werden. Wir ersuchen daher, bei Unklarheiten direkt mit uns Kontakt aufzunehmen. Eine Verwendung der Inhalte dieses Exposés (insbesondere der Bilder) ohne unsere ausdrückliche Zustimmung ist nicht gestattet.


Wir weisen darauf hin, dass zwischen dem Vermittler und dem zu vermittelnden Dritten ein familiäres oder wirtschaftliches Naheverhältnis besteht.


Der Vermittler ist als Doppelmakler tätig.

DECUS Immobilien GmbH – Wir beleben Räume

Für weitere Informationen und Besichtigungen steht Ihnen gerne Frau  Linda Schmidtberger unter der Mobilnummer +43 660 75 75 013und per E-Mail unter schmidtberger@decus.at persönlich zur Verfügung.

www.decus.at | office@decus.at 

Wichtige Informationen

Bitte beachten Sie, dass per 13.06.2014 eine neue Richtlinie für Fernabsatz- und Auswärtsgeschäfte in Kraft getreten ist.

Ab 1.4.2024 entfallen die Grundbuchs- und Pfandrechtseintragungsgebühren vorübergehend für Eigenheime bis zu einer Bemessungsgrundlage von EUR 500.000,-. Voraussetzung ist das dringende Wohnbedürfnis, ausgenommen davon sind vererbte oder geschenkte Immobilien. Die Befreiung ist jedoch für den Einzelfall zu prüfen, DECUS Immobilien übernimmt hierzu keine Haftung.

Ab 01.07.2023 gilt das Erstauftraggeber-Prinzip bei Wohnungsmietverträgen, ausgenommen davon sind Dienst-/Natural-/Werkswohnungen. Wir dürfen gem. § 17 Maklergesetz darauf hinweisen, dass wir auf die Doppelmaklertätigkeit gem. § 5 Maklergesetz bei Wohnungsmietverträgen verzichten und nur noch einseitig tätig sind (bei den restlichen Vermittlungsarten nicht) und ein wirtschaftliches Naheverhältnis zu unseren Auftraggebern besteht. 

Im Falle eines Abschlusses mit Ihnen oder einem von Ihnen namhaft gemachten Dritten bzw. bei beidseitiger Willensübereinstimmung beträgt unser Honorar (lt. Honorarverordnung für Immobilienmakler) 2 Bruttomonatsmieten (BMM) bei Dienst-/Natural-/Werkwohnungen sowie Suchaufträgen, 3 BMM bei Gewerbe-, PKW-, Keller- und Lagermietverträgen sowie bei Kaufobjekten 3 % des Kaufpreises, zuzüglich der gesetzlichen Umsatzsteuer.

Dieses Objekt wird Ihnen unverbindlich und freibleibend angeboten. Oben angeführte Angaben basieren auf Informationen und Unterlagen des Eigentümers und sind unsererseits ohne Gewähr.

Nähere Informationen sowie unsere AGBs und die Nebenkostenübersichtsblatt finden Sie auf unserer Homepage www.decus.at unter "Service" - "Rechtliches zum FAGG" sowie im Anhang der zugesendeten Objekt-Exposés!

Infrastruktur / Entfernungen

Gesundheit
Arzt <125m
Apotheke <375m
Klinik <425m
Krankenhaus <800m

Kinder & Schulen
Schule <300m
Kindergarten <425m
Universität <275m
Höhere Schule <450m

Nahversorgung
Supermarkt <125m
Bäckerei <475m
Einkaufszentrum <100m

Sonstige
Geldautomat <100m
Bank <100m
Post <100m
Polizei <950m

Verkehr
Bus <75m
U-Bahn <950m
Straßenbahn <150m
Bahnhof <75m
Autobahnanschluss <725m

Angaben Entfernung Luftlinie / Quelle: OpenStreetMap

Eckdaten Objektnr. 1149947

Art: Wohnung
Land: Österreich
Baujahr: 2025
Zustand: Erstbezug
Alter: Neubau
Kaufpreis: 630.000,00
Provision: Die Provision bezahlt der Abgeber.
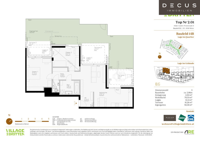
Wohnfläche: 78,53 m²
Zimmer: 3
Bäder: 1
WC: 1
Terrassen: 1
Garten: 59,39 m²
Heizwärmebedarf:  B  33,00 kWh/m²a
fGEE:  A+  0,75
Immobilie merken Exposé

Ausstattung

Parkett, Fliesen, Solarenergie, Fußbodenheizung, Einbauküche, Wohnküche / offene Küche, Personenaufzug, Nordbalkon, Badewanne, Kabel/Satelliten-TV


Immobilie anfragen


Ihre persönliche Beratung

DECUS Immobilien GmbH

Linda Schmidtberger

DECUS Immobilien GmbH

T +43 660 75 75 013

H +43 660 75 75 013

F +43 1 35 600 10