++MOLLARD 50++ Exclusive 3-room apartment right in the heart of the city (3/3)

Wohnung , 1060 Wien


Mollardgasse

Beschreibung der Immobilie

++MOLLARD 50++ Exclusive 3-room apartment right in the heart of the city (3/3)

Welcome to the new development project Mollardgasse 50!
Prime location in Vienna’s 6th district, Mariahilf – completion coming soon!



++ Please note that you should not inquire about this project through another company. Through us, you can view all available apartments in this building. ++



Available for temporary rental is this bright, well-laid-out, and high-quality 3-room apartment (approx. 71 m²) with a balcony in a unique new development in an excellent location of the 6th district of Vienna!




The Project:



MOLLARD 50 presents itself as a modern new-build with three building sections and an underground garage. The architecture impresses with clean lines and thoughtful details, while the floor plans offer maximum flexibility and intelligent layouts. Spacious balconies, loggias, terraces, and garden areas extend the living space of almost every apartment outdoors, creating a special quality of life.



The location in the heart of the 6th district combines urban infrastructure with high living quality – numerous shopping opportunities, restaurants, and excellent public transport connections are just around the corner.




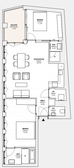
Layout: Stiege 3 Top 3




  • Entrance hall



  • Separate WC



  • Storage room



  • Living room with open kitchen



  • Bedroom



  • Bathroom with shower and bathtub



  • Bedroom



  • Bathroom with shower



  • Balcony

    (see floor plan and photos of the neighboring apartment in the same building)





Features:



The MOLLARD 50 project combines an excellent location with very high construction quality.



Almost every apartment not only includes an outdoor area but is also equipped with high-quality materials and finishes, such as:




  • Electric blinds/shutters



  • Underfloor heating



  • Bathrooms with elegant fixtures



  • Fully equipped kitchen with high-end brand appliances



  • Basement storage unit



  • …and more




Additionally, parking spaces are available in the in-house underground garage (at extra cost).




Location & Surroundings



Quiet residential location in the 6th district between Gumpendorfer Straße and Linke Wienzeile, with quick access to the city center. Mariahilfer Straße (approx. 800 m) offers a wide range of shopping and dining options. Bruno-Kreisky-Park (approx. 230 m) as well as Haus des Meeres/Esterházypark are within walking distance.



Public Transport Connections:




  • U4 (Margaretengürtel, Pilgramgasse)



  • Tram lines 6 & 18 (e.g., to Westbahnhof, St. Marx)



  • Bus lines 12A, 57A as well as night lines N6, N8, N60



  • Quick access to S-Bahn and regional trains via Westbahnhof/Matzleinsdorfer Platz




By Car:
Easy access via Wienzeile and Gürtel; quick connection to southern entrance and A23. Short-term parking zone applies on weekdays in the area.




The Price:



The monthly gross total rent (incl. VAT) is €1,975.00.



Note: Monthly costs for electricity, heating, and water are not included and must be paid separately.



Parking space rental in the in-house underground garage: €168 gross per month.



The rental agreement is limited to 5 years.




  • Security deposit: 3 gross monthly rents



  • Commission-free



  • Rental start: expected 01.12.2025





The Fine Print:



We expressly point out our economic relationship with the seller/landlord.

We act as dual agents in our role as intermediaries.

All information published here is based on data provided by the seller/landlord and has not been independently verified.



Our General Terms and Conditions can be viewed in the exposé provided as well as on our homepage. These GTCs explicitly form part of the contract.



The protection of personal data is important to us and legally required. The processing of your personal data takes place in accordance with data protection regulations. On our homepage (under Data Protection Information), you will find an overview that informs you about the most important aspects of how your data is processed.



Errors and changes excepted.


Wir weisen darauf hin, dass zwischen dem Vermittler und dem zu vermittelnden Dritten ein familiäres oder wirtschaftliches Naheverhältnis besteht.


Der Immobilienmakler erklärt, dass er – entgegen dem in der Immobilienwirtschaft üblichen Geschäftsgebrauch des Doppelmaklers – einseitig nur für den Vermieter tätig ist.

Infrastruktur / Entfernungen

Gesundheit
Arzt <500m
Apotheke <500m
Klinik <500m
Krankenhaus <500m

Kinder & Schulen
Schule <500m
Kindergarten <500m
Universität <1.000m
Höhere Schule <1.000m

Nahversorgung
Supermarkt <500m
Bäckerei <500m
Einkaufszentrum <1.000m

Sonstige
Geldautomat <500m
Bank <500m
Post <500m
Polizei <1.000m

Verkehr
Bus <500m
U-Bahn <500m
Straßenbahn <500m
Bahnhof <500m
Autobahnanschluss <4.000m

Angaben Entfernung Luftlinie / Quelle: OpenStreetMap

Eckdaten Objektnr. 62720

Art: Wohnung
Land: Österreich
Baujahr: 2025
Zustand: Erstbezug
Alter: Neubau
Gesamtmiete: 1.974,98
Kaltmiete (netto): 1.795,44 €
Kaltmiete: 1.795,44 €
Provision: Gemäß Erstauftraggeberprinzip bezahlt der Abgeber die Provision.
MwSt Gesamt: 179,54 €
Wohnfläche: 71,12 m²
Zimmer: 3
Bäder: 2
WC: 1
Balkone: 1
Heizwärmebedarf: 29,70 kWh/m²a
fGEE: 0,74
Immobilie merken Exposé

Ausstattung

Estrichboden, Fliesen, Parkett, Fußbodenheizung, Zentralheizung, Einbauküche, Personenaufzug, Westbalkon, Badewanne, Dusche, Garage


Immobilie anfragen


Ihre persönliche Beratung

Adonia Realitätenvermittlung GmbH

Adonia Immobilien

Adonia Immobilien GmbH

T +43 676 637 24 96