Attraktive Bürofläche- in der Nähe des Grazer Zentrums- zu mieten
Büro / Praxis
- Bürofläche,
8020
Graz
,
Nikolaiplatz 4a
Der Nikolaiplatz zählt zu den zentralsten und gefragtesten Lagen in Graz. Die unmittelbare Nähe zur Innenstadt sowie zur Mur sorgt für eine ausgezeichnete Erreichbarkeit und ein urbanes Arbeitsumfeld. Die Anbindung an den öffentlichen Verkehr ist hervorragend: Straßenbahn- und Bushaltestellen befinden sich in unmittelbarer Nähe. Auch der Hauptbahnhof Graz ist rasch erreichbar. Zahlreiche Geschäfte des täglichen Bedarfs, Restaurants, Cafés, Banken und Dienstleister befinden sich fußläufig in der Umgebung. Durch die zentrale Lage bietet der Standort sowohl für Mitarbeiter als auch für Kunden und Geschäftspartner höchste Attraktivität.
Beschreibung der Immobilie
Attraktive Bürofläche- in der Nähe des Grazer Zentrums- zu mieten
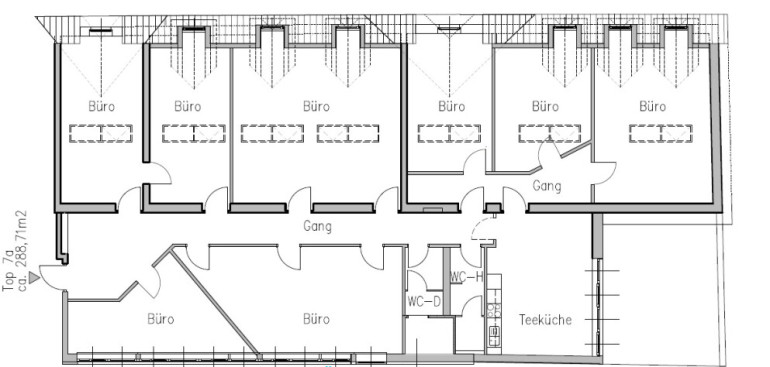
Attraktive Bürofläche- in der Nähe des Grazer Zentrums- zu mietenZur Vermietung steht eine großzügige Bürofläche mit einer Gesamtfläche von ca. 289 m². Die Einheit befindet sich in einem repräsentativen Gebäude und eignet sich ideal für Unternehmen, Kanzleien, Agenturen oder Dienstleister, die eine zentrale und gut erreichbare Adresse suchen.
Die Bürofläche gliedert sich in insgesamt 8 separat begehbare Büroräume, welche eine flexible Nutzung ermöglichen – von Einzel- bis Teamarbeitsplätzen. Ergänzt wird das Raumangebot durch eine Teeküche sowie getrennte Damen- und Herren-WCs.
Geplante Sanierungsmaßnahmen:
Im Zuge der Neuvermietung sind folgende Sanierungs- und Modernisierungsmaßnahmen vorgesehen:
- Erneuerung der Bodenbeläge
- Neuausmalen sämtlicher Büroräume
Errichtung einer Klimatisierung, um auch in den Sommermonaten ein angenehmes Raumklima zu gewährleisten
Verfügbare Fläche:
Top 7a ca. 289m²
Nettomiete/m²/Monat: € 10,50
Betriebskosten/m²/Monat: € 2,58
Eckdaten Objektnr. 109245683
| Art: | Büro / Praxis - Bürofläche |
| Land: | Österreich |
| Baujahr: | 2001 |
| Gesamtmiete: | 4.531,59 € |
| Kaltmiete (netto): | 3.031,46 € |
| Miete / m²: | 10,50 € |
| Provision: | 3 BMM zzgl. USt. |
| Betriebskosten: | 744,87 € |
| Bürofläche: | 288,71 m² |
Ihre persönliche Beratung
Dieser Makler ist ein offizielles Mitglied des IR – ir.at Mehr Erfahren
