++NEU++ Hochwertige Büroräumlichkeit, 4 getrennte Zimmer, optimaler Grundriss!

Büro / Praxis , 1210 Wien


1210 Wien

Beschreibung der Immobilie

++NEU++ Hochwertige Büroräumlichkeit, 4 getrennte Zimmer, optimaler Grundriss!

Zur Vermietung gelangt diese ca. 187 m² große, hochwertig sanierte Büroräumlichkeit in guter Lage des 21. Wiener Gemeindebezirk gelegen.



++ZUR VEREINBARUNG eines BESICHTIGUNGSTERMINS lassen SIE uns BITTE JEDENFALLS eine schriftliche ANFRAGE zukommen! (wir antworten verlässlich am selben Tag!)++



 



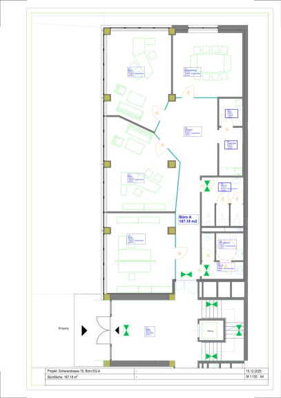
Räumlichkeiten: 



Es stehen vier lichtdurchflutete, moderne Räume samt Teeküche, EDV-Raum und getrennten Nassräumen (inkl. behindertengerechtem WC) zur Verfügung.



Die Flächen der jeweiligen Zimmer setzen sich wie folgt zusammen: 



Büro 1 -> ca. 30,92 m²



Büro 2 -> ca. 32,66m²



Büro 3 -> ca. 33,39m²



Besprechungsraum -> ca. 25,44 m²



Jede Räumlichkeit zeichnet sich durch eine helle Atmosphäre und große Glasfronten aus. Die Räume sind flexibel nutzbar und zudem sind optimale Nassräume, samt Küche und EDV-Raum verfügbar. Das Objekt liegt im Erdgeschoss eines sanierten Neubaus und ist damit barrierefrei begehbar. 



  • Siehe Grundriss und aktuelle Fotodokumentation!




Zustand:



Die Räumlichkeiten befinden in einem ausgezeichneten, neuwertigen und gepflegten Zustand. 



Verfügbarkeit:



nach Vereinbarung, kurzfristig verfügbar.



Haus:



Das Büro, welches im Erdgeschoss gelegen ist, befindet sich in einem gepflegten Neubau. Das Haus verfügt über einen Aufzug, eine Tiefgarage (Stellplätze verfügbar) und Kellerräumlichkeiten. Weiters ist ein Glasfaseranschluss (außerordentlich schneller Internetanschluss (bis 300 Mb/s und mehr up- und download) verfügbar.



KZF-Stellplatz:



In der Tiefgarage des Hauses können mehrere Stellplätze für 100 € netto monatlich angemietet werden. (nicht in der hier angegebenen Nettomiete inbegriffen)



Kellerräume:



Im KG des Hauses steht ein trockenes Kellerlager mit ca. 22m² zur Verfügung:



Beheiztes Lager mit ca. 22m²  für  5,50 € pro m² netto (nicht in der hier angegebenen Nettomiete inbegriffen)



Verkehrsanbindung:



Die Schererstraße wird von mehreren Buslinien bedient, die in kurzer Gehweite erreichbar sind:




  • Bus 27A



  • Bus 29B



  • Bus N25 (Nightline) und eventuell 36B
    Diese halten an Haltestellen wie Egon-Friedell-Gasse, Moritz-Dreger-Gasse und Rosannagasse, die ca. 3–10 Minuten zu Fuß von Schererstraße 16 entfernt sind.



  • Die nächstgelegene U-Bahn-Verbindung zur Adresse ist die U1, nördliche Linie der Wiener U-Bahn:



  • Station „Großfeldsiedlung“: etwa 10–13 Minuten zu Fuß entfernt.



  • Wien Leopoldau (S-Bahn) ist ebenfalls fußläufig erreichbar (ca. 10 Minuten) und bietet regionale sowie S-Bahn-Verbindungen (z. B. S1, S2) in und um Wien.



  • Die Lage in Floridsdorf ist recht gut angebunden an die Donauuferautobahn (A22) sowie an das städtische Straßennetz Richtung Zentrum oder Stadtauswärts.



  • Du erreichst Schererstraße über Hauptzufahrtsstraßen wie die Leopoldauer Straße / B3.




Preis:



Die monatliche Nettomiete beträgt: 2.620,52 €



Die monatliche Akontierung der allgemeinen Betriebskosten beträgt: 224,62 €



Die monatliche Akontierung der Stromkosten beträgt: 100,00 €



Die monatliche Akontierung der Heizkosten beträgt: 100,00 €



Kaution: 3 MM



Provision: 3 BMM



Verfügbar ab sofort



Sollten Sie Fragen haben oder eine Besichtigung wünschen, zögern Sie nicht mich zu kontaktieren:



Sollten Sie Fragen haben oder einen persönlichen Besichtigungstermin wünschen, zögern Sie bitte nicht mich zu kontaktieren.



Zur Vereinbarung eines Besichtigungstermins lassen Sie uns bitte jedenfalls eine E-Mailanfrage zukommen!


Wir weisen darauf hin, dass zwischen dem Vermittler und dem zu vermittelnden Dritten ein familiäres oder wirtschaftliches Naheverhältnis besteht.


Der Vermittler ist als Doppelmakler tätig.

Infrastruktur / Entfernungen

Gesundheit
Arzt <1.000m
Apotheke <500m
Klinik <3.000m
Krankenhaus <3.000m

Kinder & Schulen
Schule <500m
Kindergarten <500m
Universität <2.000m
Höhere Schule <3.000m

Nahversorgung
Supermarkt <500m
Bäckerei <500m
Einkaufszentrum <500m

Sonstige
Bank <500m
Geldautomat <500m
Post <500m
Polizei <500m

Verkehr
Bus <500m
U-Bahn <1.000m
Straßenbahn <2.500m
Bahnhof <500m
Autobahnanschluss <3.000m

Angaben Entfernung Luftlinie / Quelle: OpenStreetMap

Eckdaten Objektnr. 62698

Art: Büro / Praxis
Land: Österreich
Zustand: Neuwertig
Alter: Neubau
Kaltmiete (netto): 2.620,00 €
Kaltmiete: 2.845,00 €
Miete / m²: 14,00 €
Provision: 3 Bruttomonatsmieten zzgl. 20% USt.
Betriebskosten: 225,00 €
MwSt Gesamt: 569,00 €
Nutzfläche: 187,18 m²
Bürofläche: 187,18 m²
Zimmer: 4
WC: 4
Heizwärmebedarf: 158,00 kWh/m²a
fGEE: 2,83
Immobilie merken Exposé

Ausstattung

Zentralheizung, Personenaufzug, Garage, Teeküche


Immobilie anfragen


Ihre persönliche Beratung

Adonia Realitätenvermittlung GmbH

Bertrand Kaufmann, BA

Adonia Immobilien GmbH

T +43 699 171 484 36