3-Zimmer Wohnung mit Klima und Terrasse in Niedrigenergiehaus in 1110 Wien zu mieten
Wohnung
,
1110
Wien
,
Grillgasse 19
Die Lage könnte nicht besser sein.Das EKZ Simmering befindet sich in direkter Nachbarschaft. Supermärkte, Schulen, Ärzte, eine Apotheke, eine Bank und Restaurants sind fußläufig gut erreichbar. Ein Kindergarten, ein Spar- und ein Action-Markt befinden sich im gleichen Gebäude-Komplex im Erdgeschoß. Zwei Grünoasen - der Braunhuberpark und der Herderpark - sind ebenfalls nur wenige Gehminuten entfernt und laden zu gemütlichen Spaziergängen ein. Für heiße Sommertage gibt es auch ein erfrischendes Familienbad im Herderpark. Mit dem Fahrrad sind Sie in 15 Minuten im Prater und in 25 Minuten auf der Donauinsel mit dem Auto in 5 Minuten auf der Autobahn. - 3 Minuten zu Fuß ins Einkaufszentrum - 15 Minuten per Öffis zum Stephansplatz - 25 Minuten mit dem Fahrrad auf die Donauinsel - 5 Minuten mit dem Auto zur Autobahn
Beschreibung der Immobilie
3-Zimmer Wohnung mit Klima und Terrasse in Niedrigenergiehaus in 1110 Wien zu mieten
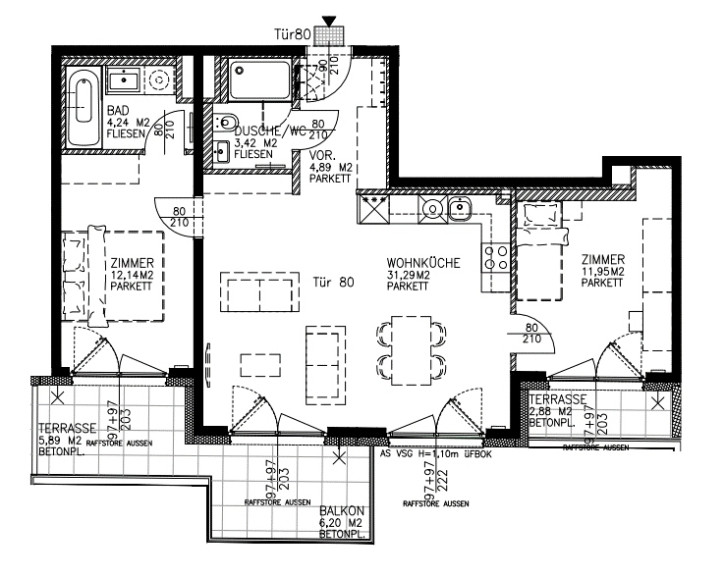
MY LORY - Die perfekte Lage in Simmering.Angrenzend an das Zentrum Simmering befindet sich im 2023 in Niedrigenergieweise erbauten Gebäude diese bezaubernde 3-Zimmer-Wohnung im 1. OG.
Die Wohnung verfügt über einen Balkon (ca. 6,20 m² und eine Terrasse ca. 8,77 m²) und ist mit Klimaanlage ausgestattet.
Die Wohnhausanlage besticht durch Energieeffizienz, intelligente Grundrisse und eine hochwertige Ausstattung.
Alle Wohnungen sind mit überhohen Türen und Terrassentüren, bodentiefen Fenstern mit Dreischeibenisolierverglasung, Beschattungsanlagen, Markeneinbauküchen, modernen Elektrogeräten, eleganten Bädern mit großflächigen Designfliesen und hochwertigen Eichenparkettböden, ausgestattet.
Die Fußbodenheizung erfolgt über eine zentrale Wärmeaufbereitungsanlage über Fernwärme.
Eckdaten Objektnr. 10948226
| Art: | Wohnung |
| Land: | Österreich |
| Baujahr: | 2023 |
| Zustand: | Erstbezug |
| Möbliert: | Teil |
| Gesamtmiete: | 1.290,33 € |
| Kaltmiete (netto): | 1.010,00 € |
| Betriebskosten: | 163,03 € |
| Wohnfläche: | 67,92 m² |
| Zimmer: | 3 |
| Bäder: | 2 |
| WC: | 1 |
| Balkone: | 1 |
| Terrassen: | 1 |
Ausstattung
Parkett, Fernwärme, Fußbodenheizung, Einbauküche, Badewanne
Ihre persönliche Beratung
Dieser Makler ist ein offizielles Mitglied des IR – ir.at Mehr Erfahren
