Prachtvolle Palaiswohnung auf 349 m² nahe Minoritenplatz - zu mieten in 1010 Wien
Wohnung
,
1010
Wien
,
Bankgasse 3
Die Bankgasse 3 liegt im Herzen der Wiener Innenstadt, nur wenige Schritte von der Hofburg, dem Burgtheater und dem Volksgarten entfernt. Die elegante Seitenstraße besticht durch historische Palais, repräsentative Fassaden und eine ruhige, edle Atmosphäre. In direkter Umgebung befinden sich Ministerien, Botschaften und kulturelle Institutionen ebenso wie charmante Cafés und Boutiquen. Trotz der zentralen Lage genießt man hier angenehme Ruhe und eine hervorragende Anbindung an den öffentlichen Verkehr (U3 Minoritenplatz, U2 Schottentor). Die Adresse steht für klassische Wiener Eleganz, kulturelle Nähe und höchste Lebensqualität.
Wohnsalon
Wohnsalon
Badezimmer
Wohnsalon
Ausblick Bankgasse
Wohnsalon
Wohnsalon
Foyer
Schlafzimmer
Küche
Wohnsalon
Schrankraum
Küche
Badezimmer
Badezimmer
Schlafzimmer
DU/WC
Wirtschaftsraum
Schrankraum
Flur
Flur
Außenansicht
Entrée
Entrée
Außenansicht
Wirtschaftsraum
Ausblick Bankgasse
Küche
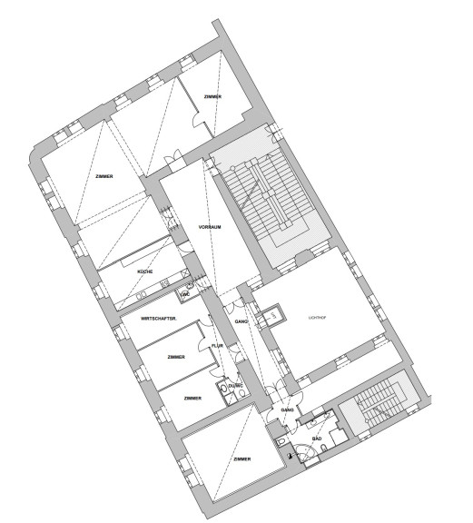
Grundriss
Lageplan
Beschreibung der Immobilie
Prachtvolle Palaiswohnung auf 349 m² nahe Minoritenplatz - zu mieten in 1010 Wien
In perfekter Innenstadtlage befindet sich diese außergewöhnliche Wohnung in der Beletage eines repräsentativen Jahrhundertwendehauses. Die Wohnung zählt nahezu 350 m².Die Wohnresidenz teilt sich wie folgt:
großzügiges Entrée mit Gästetoilette mit Handwaschbecken, beeindruckend großer Wohnsalon (Eckzimmer) mit Blick über die Bankgasse, Bibliothek oder Schlafzimmer, separate Küche - eigener Bereich mit: zwei Schlafzimmer, Wirtschaftsraum mit Einbauschränken, Badezimmer mit Dusche, Waschtisch und WC - großes Schlafzimmer, (Haupt-)Badezimmer mit Eckbadewanne, Dusche, Doppelwaschtisch, Bidet und Toilette, Schrankraum mit Einbauschrank.
Eckdaten Objektnr. 10916370
| Art: | Wohnung |
| Land: | Österreich |
| Baujahr: | 1873 |
| Gesamtmiete: | 8.995,00 € |
| Kaltmiete (netto): | 6.938,79 € |
| Betriebskosten: | 1.238,48 € |
| Wohnfläche: | 349,38 m² |
| Zimmer: | 6 |
| Bäder: | 2 |
| WC: | 3 |
Ausstattung
Parkett, Gas, Fernwärme, Zentralheizung, Einbauküche, Personenaufzug, Badewanne, Dusche
Ihre persönliche Beratung
Dieser Makler ist ein offizielles Mitglied des IR – ir.at Mehr Erfahren
