Ruhige Terrassenwohnung nahe Meidlinger Markt

Wohnung , 1120 Wien


Beschreibung der Immobilie

Ruhige Terrassenwohnung nahe Meidlinger Markt

Diese moderne Terrassenwohnung liegt in unmittelbarer Nähe des Meidlinger Markts und bietet urbanes Wiener Flair mit hervorragender Infrastruktur. Einkaufsmöglichkeiten, Restaurants und Cafés befinden sich in Gehweite, das Stadtzentrum ist dank optimaler öffentlicher Anbindung in wenigen Minuten erreichbar.



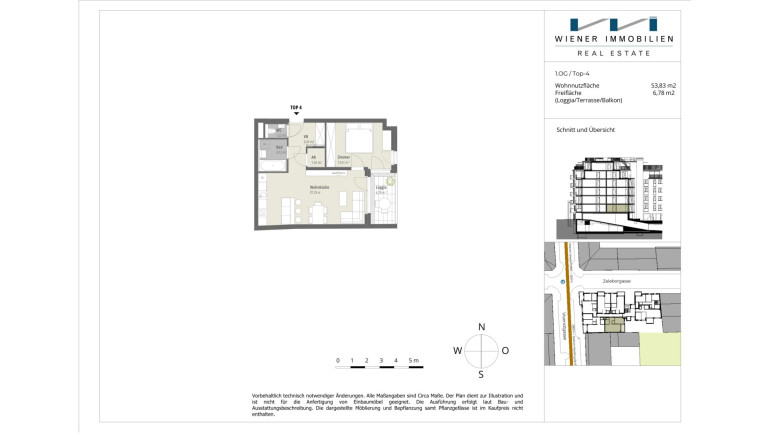
Die Wohnung verfügt über ein Vorzimmer, eine großzügige Wohnküche mit Ausgang auf die ca. 7 m² große Loggia, ein Schlafzimmer, ein Badezimmer, ein separates WC sowie einen Abstellraum. Große Fensterflächen sorgen für viel Tageslicht.



Ausstattung:
Eichenparkett, Fußbodenheizung, Holz-Alu-Fenster mit Dreifachverglasung, eigene Freifläche, hauseigene Garage, elegantes Stiegenhaus sowie großzügige Gemeinschaftsdachterrasse mit Blick über Wien.



Betriebskosten (monatlich): 



Die Kosten für Heizung, Kalt- und Warmwasser werden von der Hausverwaltung vorgeschrieben und betragen aktuell gesamt € 107,58 brutto, bestehend aus:



  • Heizkosten: € 49,09 zzgl. 20 % USt
  • Warmwasser: € 26,06 zzgl. 10 % USt
  • Kaltwasser: € 18,18 zzgl. 10 % USt



Wir weisen darauf hin, dass zwischen dem Vermittler und dem zu vermittelnden Dritten ein familiäres oder wirtschaftliches Naheverhältnis besteht.


Der Immobilienmakler erklärt, dass er – entgegen dem in der Immobilienwirtschaft üblichen Geschäftsgebrauch des Doppelmaklers – einseitig nur für den Vermieter tätig ist.

Infrastruktur / Entfernungen

Gesundheit
Arzt <500m
Apotheke <500m
Klinik <500m
Krankenhaus <1.500m

Kinder & Schulen
Schule <500m
Kindergarten <500m
Universität <1.000m
Höhere Schule <500m

Nahversorgung
Supermarkt <500m
Bäckerei <500m
Einkaufszentrum <500m

Sonstige
Geldautomat <500m
Bank <500m
Post <500m
Polizei <1.000m

Verkehr
Bus <500m
U-Bahn <500m
Straßenbahn <500m
Bahnhof <500m
Autobahnanschluss <2.500m

Angaben Entfernung Luftlinie / Quelle: OpenStreetMap

Eckdaten Objektnr. 5612/348

Art: Wohnung
Land: Österreich
Baujahr: 2018
Zustand: Neuwertig
Alter: Neubau
Gesamtmiete: 1.025,96
Kaltmiete (netto): 823,00 €
Kaltmiete: 932,69 €
Provision: Gemäß Erstauftraggeberprinzip bezahlt der Abgeber die Provision.
Betriebskosten: 109,69 €
MwSt Gesamt: 93,27 €
Wohnfläche: 53,83 m²
Zimmer: 2
Bäder: 2
WC: 1
Keller: 1,66 m²
Heizwärmebedarf:  B  32,05 kWh/m²a
fGEE:  B  0,87
Immobilie merken Exposé

Ausstattung

Fliesen, Parkett, Zentralheizung, Einbauküche, Wohnküche / offene Küche, Personenaufzug, Badewanne, Kabel/Satelliten-TV


Immobilie anfragen


Ihre persönliche Beratung

WI-RE Immobilienmakler

Mag. Pamela Zoidl, WIENER IMMOBILIEN Real Estate

WI-RE Immobilienmakler GmbH

T +43 1 512 22 27-10

H +43 664 8494580