Betriebsbereite Gastronomie- & Verkaufsfläche in Großbettlingen – Vielseitig & Sofort Startklar

Gastgewerbe - Gastronomie und Wohnung, 72663 Großbettlingen


Dieses Gewerbeobjekt in der Nürtinger Straße 52 in Großbettlingen vereint zentrale Lage, optimale Erreichbarkeit und ein attraktives Umfeld zu einem Standort mit echtem Mehrwert. Im Herzen des Landkreises Esslingen gelegen, befindet sich die Immobilie nur wenige Minuten von Nürtingen entfernt und bietet eine schnelle Anbindung an die Region Stuttgart – mit dem Auto in rund 25 bis 30 Minuten erreichbar. Dank der Nähe zu mehreren Buslinien, der guten Verbindung zur Autobahn A8 sowie ausreichend Parkmöglichkeiten vor Ort ist das Objekt sowohl für Kunden als auch Mitarbeitende ideal zu erreichen. In der direkten Umgebung finden sich zahlreiche Einrichtungen des täglichen Bedarfs: Ärzte, Zahnärzte, Apotheken, Bäckereien und Einkaufsmöglichkeiten liegen nur einen kurzen Spaziergang entfernt. Für Familien ist Großbettlingen besonders lebenswert und familienfreundlich – mit modernen Kindergärten, einer Grundschule und künftig auch einer Ganztagsbetreuung bietet der Ort eine hervorragende Infrastruktur für Mitarbeitende mit Kindern. Diese Kombination aus Nähe, Sicherheit und Lebensqualität macht den Standort zu einem echten Pluspunkt für Arbeitgeber und Arbeitnehmer gleichermaßen. Auch wirtschaftlich überzeugt die Lage: Die Nähe zu Städten wie Nürtingen, Kirchheim unter Teck, Metzingen und Reutlingen schafft vielfältige Möglichkeiten für Kooperationen, Kundenkontakte und geschäftliche Weiterentwicklung . Der Flughafen Stuttgart ist in etwa 25 Minuten erreichbar – ideal für Unternehmen mit internationalen Partnern oder regelmäßigem Reisebedarf. Insgesamt bietet dieses Gewerbeobjekt die perfekte Verbindung aus zentraler Lage, starker Infrastruktur, Metropolnähe und angenehmem Arbeitsumfeld. Sie profitieren hier von kurzen Wegen, hervorragender Sichtbarkeit und einem Umfeld, das sowohl geschäftlichen Erfolg als auch Mitarbeiterzufriedenheit fördert. Ein Standort mit Zukunft – modern, lebenswert und wirtschaftlich stark.

Beschreibung der Immobilie

Betriebsbereite Gastronomie- & Verkaufsfläche in Großbettlingen – Vielseitig & Sofort Startklar

Objektbeschreibung



Diese außergewöhnliche Einheit an der Nürtinger Straße 52 in Großbettlingen vereint professionelle Gastronomie, einen repräsentativen Festsaal mit Bühne und ein attraktives Ladenlokal in einem Objekt – perfekt für Gastronomen, Eventveranstalter, Caterer, Franchise-Konzepte oder Investoren.



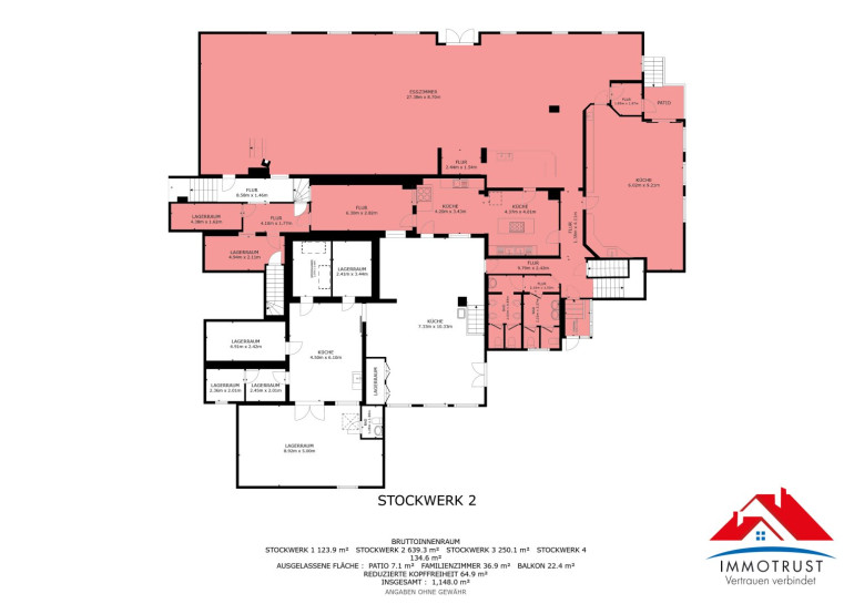
Mit ca. 350,1 m² Nutzfläche bietet die Immobilie eine seltene Kombination aus Tagesgastronomie, Eventbetrieb, kulturellen Veranstaltungen und professioneller Verkaufstheke, sofort bezugsfertig, hygienisch und renditestark. Große Fensterflächen, helle Räume und hochwertige Materialien schaffen eine einladende Atmosphäre, die Gäste und Kunden sofort anspricht.





Highlights & Ausstattung



Gastraum & Festsaal



  • Heller Gastraum (ca. 69,5 m²), flexibel für Restaurant, Lounge oder Bar
  • Repräsentativer Festsaal (ca. 144 m²) mit edlem Fischgrätparkett
  • Fest installierte Bühne für Konzerte, Theater, Vereins- oder Firmenveranstaltungen
  • Flexible Bestuhlung für intime Kulturabende oder große Gala-Events
  • Hervorragende Akustik und angenehme Tageslichtstimmung


Küche & Technik



  • Edelstahl-Küche auf 31,9 m² mit Gasherden, Spültischen, Spülmaschinen, Kühltischen und großzügigen Arbeitsflächen
  • Lagerräume (25,4 m²) und Kühlzelle (7,1 m²) für optimale Vorratshaltung


Sanitär & Infrastruktur



  • Getrennte Damen- und Herren-Sanitärbereiche (gesamt 14 m²), modern gestaltet
  • Durchdachte Verkehrs- und Servicewege zwischen Küche, Gastraum, Festsaal, Lager und Verkaufsladen
  • Kurze Wege für Personal, Lieferungen und Gäste


Verkaufsladen



  • Verkaufsfläche ca. 53,8 m², perfekt für Feinkost, Hofladen, Bäckerei, Metzgerei, Take-away oder Concept-Store
  • Helle Fliesen, Edelstahl- und Holzakzente, hochwertige Thekenanlage
  • Professionelle Präsentation Ihrer Produkte und optimale Kundenführung




Lage



  • Zentrale, frequentierte Lage in Großbettlingen, zwischen Nürtingen und Stuttgart
  • Hohe Sichtbarkeit, Parkmöglichkeiten, direkte Anbindung an den Nahverkehr
  • Attraktive Mischung aus lokaler Stammkundschaft und Gästen aus dem Umland (Nürtingen, Wendlingen, Kirchheim, Tübingen)
  • Perfekte Ausgangslage für Gastronomie, Events, Kulturveranstaltungen und Verkaufsflächen




Zielgruppen & Nutzungsmöglichkeiten



  • Gastronomen: Restaurant, Café, Bar, Tagesgastronomie, Abendbetrieb
  • Event- & Kulturveranstalter: Kleinkunst, Konzerte, Theater, Vereins- oder Firmenveranstaltungen
  • Catering-Unternehmen: Produktions- und Ausgabeort direkt vor Ort
  • Investoren / Kapitalanleger: Renditestark, sofort vermietbar
  • Franchise & Concept-Stores: Kombination aus Tagesbetrieb und Eventformat




Ihre Vorteile auf einen Blick



  • Sofort betriebsbereit, hygienisch, lebensmitteltauglich
  • Profi-Küche & Thekenanlage vollständig ausgestattet
  • Repräsentativer Festsaal & Bühne für Events aller Art
  • Flexible Nutzungsmöglichkeiten für Gastronomie, Verkauf und Events
  • Effiziente Logistik & kurze Wege für Personal und Waren
  • Frequentierte Lage mit hoher Sichtbarkeit und Parkmöglichkeiten
  • Kapitalanlegerfreundlich & renditestark

Hinweis gemäß Energieausweisvorlagegesetz: Ein Energieausweis wurde vom Eigentümer bzw. Verkäufer, nach unserer Aufklärung über die generell geltende Vorlagepflicht, sowie Aufforderung zu seiner Erstellung noch nicht vorgelegt. Daher gilt zumindest eine dem Alter und der Art des Gebäudes entsprechende Gesamtenergieeffizienz als vereinbart. Wir übernehmen keinerlei Gewähr oder Haftung für die tatsächliche Energieeffizienz der angebotenen Immobilie.


Der Vermittler ist als Doppelmakler tätig.


Eckdaten Objektnr. 703

Art: Gastgewerbe - Gastronomie und Wohnung
Land: Deutschland
Baujahr: 1936
Zustand: Gepflegt
Alter: Altbau
Nutzfläche: 350,10 m²
WC: 2
Immobilie merken Exposé

Ausstattung

Parkett, Fliesen, Öl, Zentralheizung, Angeschl. Bar, Garage, Parkplatz, Kantine/Cafeteria, Wasch/Trockenraum


Immobilie anfragen


Ihre persönliche Beratung

Immotrust Haber & Sabitzer Flex Co

Ing. Günther Haber

Immotrust

H +43 664 4539400