HOFRUHELAGE, HUMBOLDTGASSE, 80 m2 Neubau inkl. Loggia, 2 Zimmer, Komplettküche, Wannenbad, Parketten, U1-Nähe

Wohnung - Etage, 1100 Wien , Humboldtgasse


HUMBOLDTGASSE beim HUMBOLDTPLATZ mit bester Infrastruktur des 10. Bezirks wie Laxenburger Straße - Gudrunstraße und Fußgängerzone Favoritenstraße sowie perfekten Verkehrsverbindung wie die U1-Station Keplerplatz sowie die Linien O, 67, 14A + 69A sind in unmittelbarer Nähe

Beschreibung der Immobilie

HOFRUHELAGE, HUMBOLDTGASSE, 80 m2 Neubau inkl. Loggia, 2 Zimmer, Komplettküche, Wannenbad, Parketten, U1-Nähe

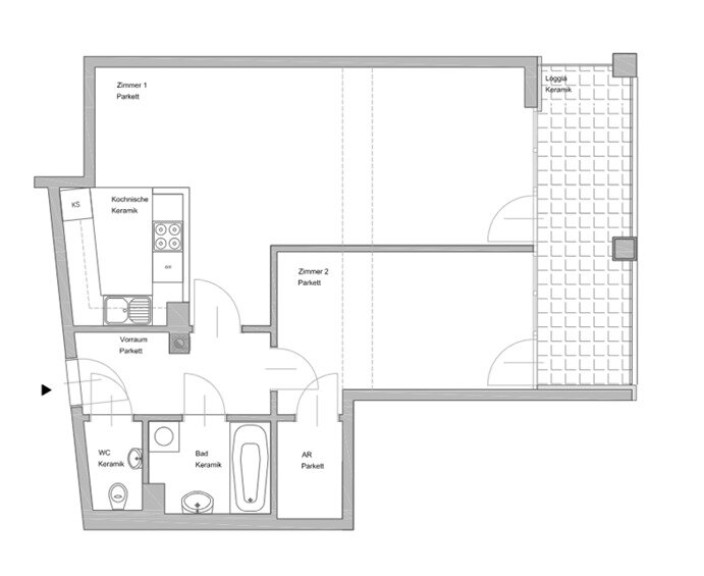
IN DER HUMBOLDTGASSE BEIM HUMBOLDPLATZ GELANGT DIESE 80,24 m2 NEUBAUWOHNUNG INKLUSIVE CA. 9 m2 LOGGIA IM 2. LIFTGESCHOSS ZUR BEFRISTETEN VERMIETUNG


Vorzimmer, Wohn/-Esszimmer mit offener Küche, Loggia, Schlafzimmer, Badezimmer, WC, Abstellraum + Kellerabteil



Ausstattung:


+ offene Küche mit Einbaugeräte

+ Badezimmer mit Badewanne, Waschtisch und Waschmaschinenanschluss

+ separates WC mit Waschgelegenheit

+ Parketten, Fliesen im Nassbereich

+ Telekabelanschluss, Gegensprechanlage

+ Hauszentralheizung (Fernwärme)

+ Kellerabteil

+ Fahrradabstellmöglichkeit im Haus

+ HBW 49,00 kWh/m2a



Lage



HUMBOLDTGASSE beim HUMBOLDTPLATZ mit bester Infrastruktur des 10. Bezirks wie Laxenburger Straße - Gudrunstraße und Fußgängerzone Favoritenstraße sowie perfekten Verkehrsverbindung wie U1-Station Keplerplatz sowie die Linien O, 67, 14A + 69A sind in unmittelbarer Nähe



Sonstiges



Gesamtmiete: € 1.280,96 inkl. Betriebskosten, Aufzug, 10 % MwSt.

zzgl. Heizung- und Warmwasser-Akonto: € 218,26 inkl. 10/20 % MwSt.



Kaution: € 4.500,00 per Überweisung

auf 5 Jahre befristete Hauptmiete, ablösefrei, Sofortbezug möglich!
1 Jahr Kündiungsverzicht, 3 Monate Kündigungsfrist



Anbindung öffentlicher Verkehr



U1-Station Keplerplatz sowie die Linien O, 67, 14A + 69A sind in unmittelbarer Nähe



Ansprechpartner: ALEXANDER ROS

Tel.: +43-664-466 52 02

E-Mail: alexander.ros@ros-real.at 


Der Immobilienmakler erklärt, dass er – entgegen dem in der Immobilienwirtschaft üblichen Geschäftsgebrauch des Doppelmaklers – einseitig nur für den Vermieter tätig ist.

Infrastruktur / Entfernungen

Gesundheit
Arzt <250m
Apotheke <250m
Klinik <500m
Krankenhaus <1.750m

Kinder & Schulen
Schule <250m
Kindergarten <250m
Universität <1.000m
Höhere Schule <2.000m

Nahversorgung
Supermarkt <250m
Bäckerei <250m
Einkaufszentrum <500m

Sonstige
Geldautomat <250m
Bank <250m
Post <250m
Polizei <250m

Verkehr
Bus <250m
U-Bahn <250m
Straßenbahn <500m
Bahnhof <250m
Autobahnanschluss <1.750m

Angaben Entfernung Luftlinie / Quelle: OpenStreetMap

Eckdaten Objektnr. 2349

Art: Wohnung - Etage
Land: Österreich
Zustand: Gepflegt
Alter: Neubau
Gesamtmiete: 1.280,96
Kaltmiete (netto): 927,00 €
Kaltmiete: 1.164,51 €
Provision: Gemäß Erstauftraggeberprinzip bezahlt der Abgeber die Provision.
Betriebskosten: 208,62 €
MwSt Gesamt: 116,45 €
Nutzfläche: 80,24 m²
Zimmer: 2
Bäder: 1
WC: 1
Keller: 2,00 m²
Heizwärmebedarf:  C  49,00 kWh/m²a
fGEE:  C  1,03
Immobilie merken Exposé

Ausstattung

Fliesen, Parkett, Zentralheizung, Einbauküche, Wohnküche / offene Küche, Personenaufzug, Ostbalkon, Badewanne, Kabel/Satelliten-TV


Immobilie anfragen


Ihre persönliche Beratung

ROS REALITÄTEN OG

Alexander Ros

ROS REALITÄTEN VERMITTLUNG OG - TESTACCOUNT

T +43 1 526 70 60 - 12

H +43 664 466 52 02

F +43 1 526 70 60 33